King Street, High Ongar, Ongar

Guide Price
£595,000
SSTC
This property listing is now SSTC

3 Bedroom Semi-Detached House for sale in Ongar

2 3 2
  • THREE BEDROOMS SEMI-DETACHED COTTAGE
  • FURTHER LAND AND OUTBUILDING AVAILABLE BY SEPARATE NEGOTIATION
  • SEMI-RURAL LOCATION
  • COMPLETELY REFURBISHED THROUGHOUT
  • FAR REACHING VIEWS
  • SEPARATE DINING ROOM
  • SHORT DRIVE TO ONGAR HIGH STREET
  • OFF STREET PARKING BEHIND FIVE-BAR GATES

Having been completely refurbished to a high standard, we are delighted to bring to market this three-bedroom semi-detached cottage on a semi-rural plot which benefits from having wonderful views to all elevations. 'Paslow Hall Cottages' are perfectly situated, with Ongar and its vibrant High Street being just a 2-minute drive from the property. There are excellent transport links with the A414, A12 and M11 roads all being within easy reach, and Chelmsford City and Brentwood Town Centre with mainline train services into London both around a 20-minute drive. Viewers will note that there is excellent potential for extension at the side (stpp).

** Viewers should note that the whole plot (including outbuilding) is also available for sale via a separate listing **

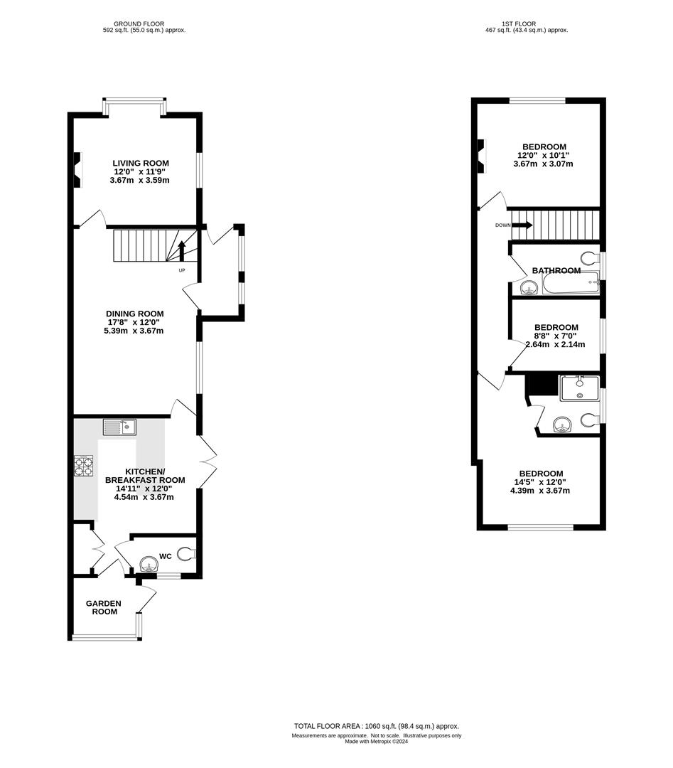
An entrance hall to the side of the property gives direct access into a bright dining room with herringbone effect flooring and stairs rising to the first floor. The fireplace had been blocked off, but the surround remains and is a nice feature of this room. From the dining room there is access into the lounge and into the kitchen / breakfast room. The lounge has a double aspect and overlooks the front and side of the property. The Herringbone effect flooring continues into the lounge and into the kitchen/breakfast room. Beautifully styled, the kitchen/breakfast room is fitted in a lovely range of white wall and base units with wooden work surfaces over. There is a 'Butler' sink, and integrated appliances include oven, hob with extractor above and a fridge/freezer. There is a breakfast bar with seating for two to one side. Off the kitchen is a ground floor cloakroom with space saver wash hand basin, w.c. and wall mounted towel rail. Finally, to the rear, there is a bright garden room/conservatory with a door leading out to the exterior.

Rising to the first floor, you will find three bedrooms all good size and proportions. The master bedroom is a lovely room with high beamed ceiling and a feature window to the rear aspect. This room has the benefit of an en-suite shower room with double shower, close coupled w.c. and wash hand basin set into a modern unit. Furthermore, on this level there is a family bathroom with brick effect tiled walls, panelled bath with both handheld and overhead shower attachments, wash hand basin and close coupled w.c.

Entrance Hall - Door into :

Dining Room - 5.38m x 3.66m (17'8 x 12') - Stairs rising to first floor. Doors into Lounge and Kitchen / breakfast room.

Lounge - 3.66m x 3.58m (12' x 11'9) - Double aspect, windows to front and side.

Kitchen / Breakfast Room - 4.55m x 3.76m (14'11 x 12'4) - Fitted in a range of white wall and base units with wooden work surface over. French doors into the garden.

Ground Floor Cloakroom - 1.93m x 1.17m (6'4 x 3'10) - WC and wash hand basin.

Garden Room - 1.96m x 1.75m (6'5 x 5'9) - Door to garden.

First Floor Landing - Doors to all rooms.

Bedroom One - 4.39m x 3.66m (14'5 x 12') - Window to rear aspect and further teature window. High beamed ceiling. Door to :

En-Suite Shower Room - 1.98m x 1.83m (6'6 x 6') - Double shower, wash hand basin and close coupled w.c.

Bedroom Two - 3.66m x 3.07m (12' x 10'1) - Window to front aspect. Storage cupboard.

Bedroom Three - 2.64m x 2.13m (8'8 x 7'0) - Window to side.

Exterior - Good sized plot set behind wooden five-bar gates. Excellent parking for several vehicles. Central lawn.

Agents Note - Fee Disclosure - As part of the service we offer we may recommend ancillary services to you which we believe may help you with your property transaction. We wish to make you aware, that should you decide to use these services we will receive a referral fee. For full and detailed information please visit 'terms and conditions' on our website www.keithashton.co.uk

Property Ref: 59223_33536475

Share:

Similar Properties

Ongar Road, Kelvedon Hatch, Brentwood

3 Bedroom Semi-Detached House | Offers in excess of £595,000

Beautifully styled and well-maintained throughout and with a lovely, landscaped garden which is un-overlooked from the r...

Wyatts Green Road, Wyatts Green, Brentwood

3 Bedroom Semi-Detached House | Offers in excess of £588,000

The aptly named 'Wisteria House' with trailing wisteria over the front porch is a lovely bright and airy, three-bedroom...

Parsonage Field, Doddinghurst, Brentwood

4 Bedroom Detached House | Guide Price £588,000

Deceptively spacious and with a well-maintained, unoverlooked garden to the rear, we are delighted to bring to market th...

The Gardens, Doddinghurst, Brentwood

4 Bedroom Semi-Detached House | Guide Price £600,000

We are delighted to bring to market this extended, semi-detached, four-bedroom family home. The property has been extend...

Lyndale, Kelvedon Hatch, Brentwood

5 Bedroom Detached House | Offers in excess of £600,000

Situated in a quiet cul-de-sac in the popular village of Kelvedon Hatch is this immaculate and beautifully styled four /...

Blackmore Road, Kelvedon Hatch, Brentwood

4 Bedroom Semi-Detached House | Guide Price £600,000

Having been extended to the side and the rear, this well-maintained semi-detached family home now provides around 1718 s...

Keith Ashton Estates - Village Office (Kelvedon Hatch)

38 Blackmore Road, Kelvedon Hatch, Essex, CM15 0AT

01277 375757

How much is your home worth?

Use our short form to request a valuation of your property.

Request a Valuation

Mortgage Calculator

Amount Borrowed: £
Total Amount Repayable: £
Total Monthly Payment: £
©2026 The Guild of Property Professionals. All rights reserved. Terms and Conditions | Privacy Policy | Cookie Policy | Complaints Policy | Members Login
The Guild of Property Professionals Trading Address: 121 Park Lane, London W1K 7AG. GPEA Limited. Registered in England & Wales.  Company No: 02819824.  Registered Office Address: 2 St. Stephen's Court, St. Stephen's Road, Bournemouth, Dorset, England, BH2 6LA.  VAT Registration No: 576 8795 61
Book a Property Valuation Update Cookies Preferences