Stanley Place, Ongar

Guide Price
£560,000

5 Bedroom Detached House for sale in Ongar

2 5 2
  • FOUR / FIVE BEDROOMS
  • SPACIOUS DETACHED FAMILY HOME
  • EN-SUITE TO MASTER BEDROOM
  • FAMILY BATHROOM
  • KITCHEN / DINER
  • LIVING ROOM & SEPARATE SITTING ROOM
  • STUDY / BEDROOM FIVE
  • GARAGE / PLAYROOM

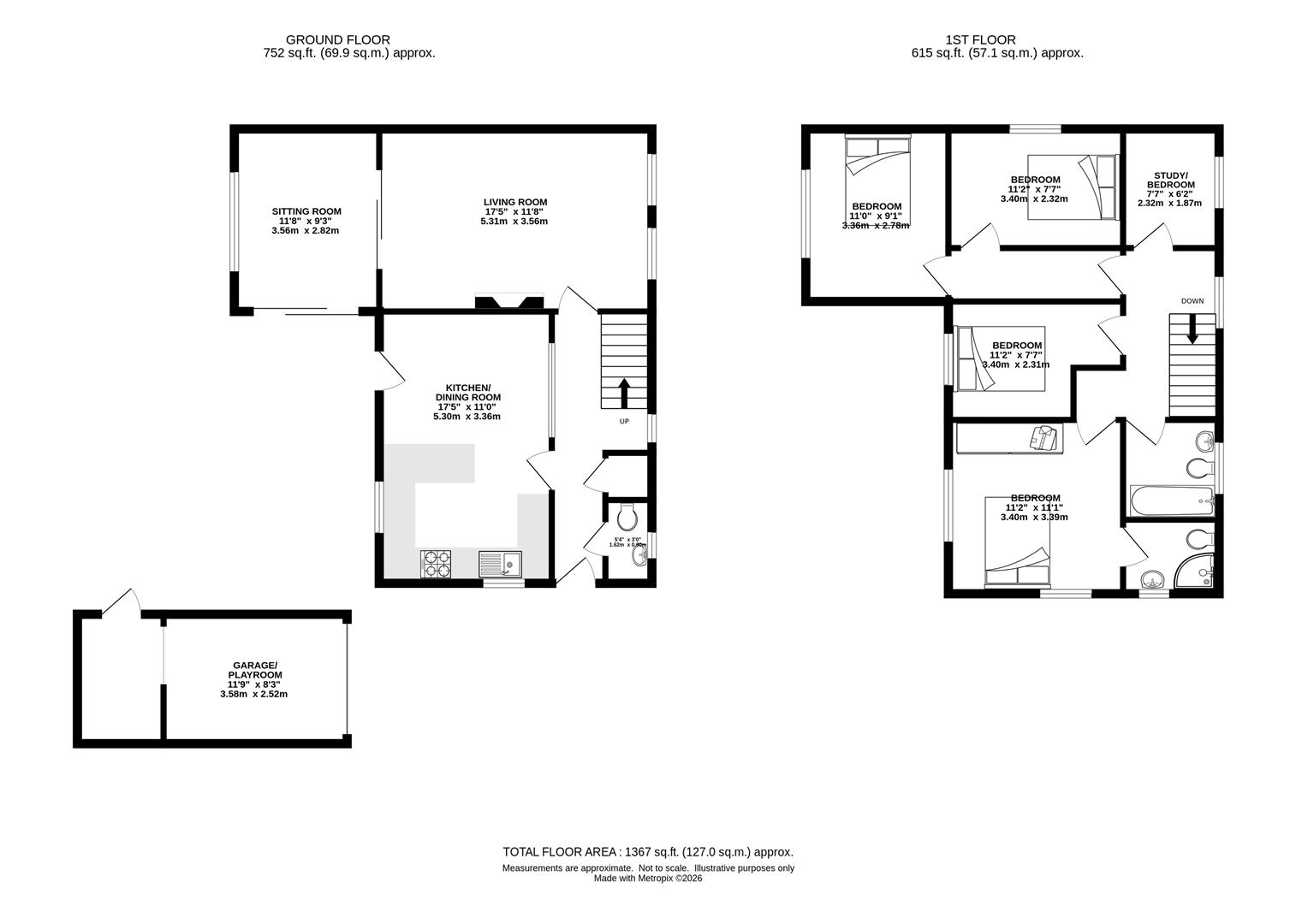
Located in a quiet residential turning just off Ongar High Street and being within easy reach of local amenities, including well-regarded schooling and the Ongar leisure centre/swimming pool is this spacious detached family home. The property offers five bedrooms, consisting of four doubles and a single which doubles as a home office/study, whilst to the ground floor there are two reception rooms and a large kitchen/diner. To the rear is an easy to maintain garden, and there is plenty of off-street parking along with a garage (currently in use as a games/playroom). Stanley Place has excellent transport links for both road and rail users with convenient access into central London being just a short drive away.

Entering the property a bright hallway has doors into the kitchen/dining room, lounge and into a modern ground floor cloakroom with white suite. There are stairs which rise to the first floor and there is a spacious cloaks cupboard. The kitchen/dining room is a large room which has been fitted with modern wall and base units with contrasting work surface over, and there is also a peninsular breakfast bar. Integrated appliances include a double oven, gas hob with extractor above and fridge/freezer, with further space available for additional appliances. The property features two reception rooms, the first of which is a good-sized living room, which has sliding patio doors through to the sitting room, where a further set of patio doors open onto the garden.

In total there are five bedrooms located on the first floor, there are four double rooms and a further single bedroom which is currently in use as a home office / study. The master bedroom benefits from having use of its own en-suite shower room and there is an additional family bathroom on this level.

A tidy, low maintenance garden has a brick paved pathway surrounding the lawn and there is a further brick paved patio area providing a lovely space to sit and relax in the garden. There is pedestrian access through to the front of the property where a block paved driveway to the front of the garage provides off street parking for two vehicles. The garage is detached and is currently being used as a games / playroom with storage room to the rear.

Entrance Hall - Doors to into Kitchen / Diner, living room and ground floor cloakroom. Stairs to first floor. Spacious storage cupboard.

Ground Floor Cloakroom - Fitted in a white suite, comprising w.c. and wash hand basin

Kitchen / Dining Room - 5.31m x 3.35m (17'5 x 11') - Windows to front and side aspects and feature, glass block borrowed light window to hallway. Kitchen is fitted in a range of modern wall and base units with contrasting work surface over. Integrated appliances include double oven and fridge/freezer and there is ample space for further appliances. Door to rear garden.

Living Room - 5.31m x 3.56m (17'5 x 11'8) - Two windows to front aspect. Laminate flooring and feature fireplace. Patio doors into :

Sitting Room - 3.56m x 2.82m (11'8 x 9'3) - Window to rear and patio doors giving access into the rear garden.

First Floor Landing - Spacious landing with doors to all rooms.

Bedroom - 3.40m x 3.38m (11'2 x 11'1) - Double aspect windows to side and front. Door to :

En-Suite Shower Room - Corner shower cubicle, wash hand basin and w.c.

Bedroom - 3.40m x 2.31m (11'2 x 7'7) - Window to side aspect.

Bedroom / Study - 2.31m x 1.88m (7'7 x 6'2) - Window to side aspect.

Family Bathroom - Fitted in a white suite, comprising of a panelled bath with hand held shower attachment, w.c. and wash hand basin.

Bedroom - 3.40m x 2.31m (11'2 x 7'7) - Window to rear aspect.

Bedroom - 3.35m x 2.77m (11' x 9'1) - Window to side aspect

Exterior - Rear Garden - Side access. Door into garage/playroom. Brick paved pathway surrounding the lawn and there is a brick paved patio area. Sleeper edged flower beds.

Exterior - Front Garden - Block paved driveway allowing off street parking for two vehicles.

Detached Garage - 3.58m x 2.51m (11'9 x 8'3) - The garage has been converted into a games/playroom with the section to the rear being used for storage. Door to garden.

Agents Note - Fee Disclosure - As part of the service we offer we may recommend ancillary services to you which we believe may help you with your property transaction. We wish to make you aware, that should you decide to use these services we will receive a referral fee. For full and detailed information please visit 'terms and conditions' on our website www.keithashton.co.uk

Property Ref: 34466311

Share:

Similar Properties

Kelvedon Green, Kelvedon Hatch, Brentwood

3 Bedroom Semi-Detached House | Guide Price £550,000

We are delighted to bring to market this extended, three double bedroom semi-detached family home which is situated on t...

Appletree Crescent, Doddinghurst, Brentwood

4 Bedroom Semi-Detached House | Offers in excess of £550,000

Situated in one of Doddinghurst's most sought after cul-de-sacs of just 20 properties, just off the Doddinghurst Road is...

Shortcroft, Kelvedon Hatch, Brentwood

4 Bedroom Detached House | Offers in excess of £550,000

Situated in the pleasant and quiet turning of Shortcroft, Kelvedon Hatch is this well-maintained, three/four-bedroom det...

Elm Gardens, Mountnessing, Brentwood

4 Bedroom Semi-Detached House | Offers in excess of £570,000

Constructed in 2018 and having an attractive kerb appeal with stylish dark wood cladding and red brickwork to the exteri...

Kelvedon Hatch, School Road, Brentwood

5 Bedroom Link Detached House | Offers in excess of £570,000

Coming to the market for just the second time since being built and sitting on a good-sized corner plot is this spacious...

Mores Lane, Bentley, Brentwood

3 Bedroom Cottage | Guide Price £575,000

*No Onward Chain* Full of character features throughout including beamed walls and ceilings, flagstone flooring and expo...

Keith Ashton Estates - Village Office (Kelvedon Hatch)

38 Blackmore Road, Kelvedon Hatch, Essex, CM15 0AT

01277 375757

How much is your home worth?

Use our short form to request a valuation of your property.

Request a Valuation

Mortgage Calculator

Amount Borrowed: £
Total Amount Repayable: £
Total Monthly Payment: £
©2026 The Guild of Property Professionals. All rights reserved. Terms and Conditions | Privacy Policy | Cookie Policy | Complaints Policy | Members Login
The Guild of Property Professionals Trading Address: 121 Park Lane, London W1K 7AG. GPEA Limited. Registered in England & Wales.  Company No: 02819824.  Registered Office Address: 2 St. Stephen's Court, St. Stephen's Road, Bournemouth, Dorset, England, BH2 6LA.  VAT Registration No: 576 8795 61
Book a Property Valuation Update Cookies Preferences