St. Merryn, PL28

£182,000

2 Bedroom End of Terrace House for sale in Padstow

1 2 2
  • AFFORDABLE HOME
  • LOUNGE WITH FRENCH DOORS TO REAR GARDEN
  • KITCHEN
  • GROUND FLOOR CLOAKROOM
  • TWO BEDROOMS
  • BATHROOM
  • MAINS GAS CENTRAL HEATING
  • UPVC DOUBLE GLAZING
  • PRIVATE COURTYARD GARDEN BACKING ONTO OPEN FIELDS
  • ALLOCATED PARKING

No. 8 Ivy Close is an affordable home which is being offered for sale based on a 70% share of it's open market value. The property is specifically designed for those purchasers who cannot afford to buy on the open market and in the first instance priority will be given to residents with a local connection to the parishes of Padstow, St Merryn, St Eval and St Ervan demonstrated by one of the following criteria set out in the Section 106 Agreement:- 


  • Being permanently resident in the locality for a continuous period of at least three years or a continuous period of 5 years at some time in the past


OR

  • Person is employed in the locality on a permanent basis within the last three years and a need to live close to their employment


OR 

  • Persons who have moved away but have lived locally for a continuous period of five years in the past and who have strong local connections within the local locality by reason of birth or family ties in that their parents, grandparents or children have lived in the locality for the last 10 years. 


The remaining 30% share is owned by the housing association LiveWest and any successful purchaser will be required to complete an online application form with LiveWest to establish that they comply with the terms of the Section 106 Agreement which is a planning condition specifically designed to provide housing for local buyers. Further details of the local connection criteria together with key information about shared ownership and the application process to purchase is available on request from our Padstow Office.  
 

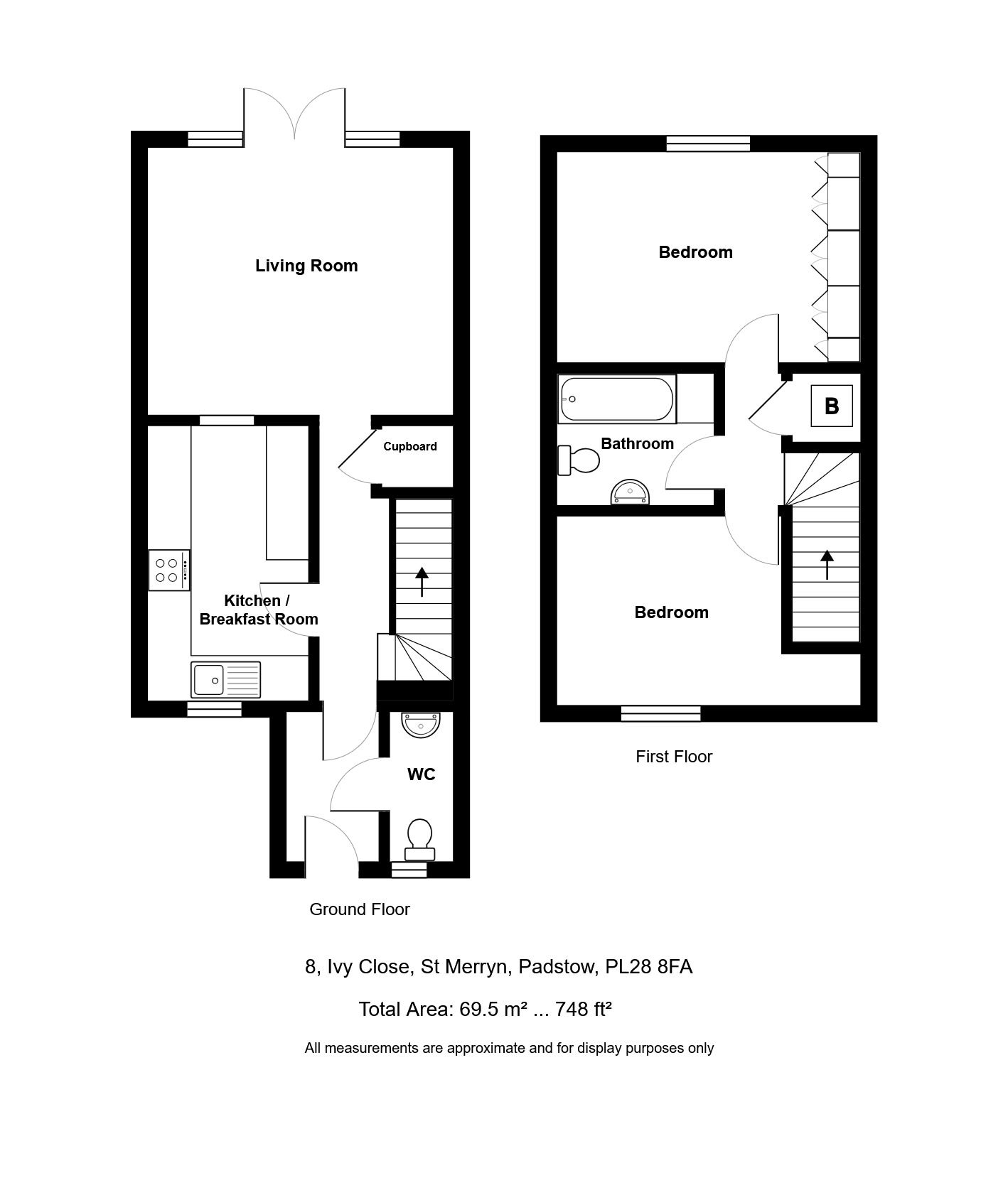
A two bedroom semi-detached modern home which is offered for sale with no onward chain and is ready for immediate occupation. Benefitting from mains gas fired central heating to radiators and uPVC double glazing, the property could benefit from a degree of cosmetic improvement however offers a great modern home in a small cul-de-sac setting. 
 
Featuring a lounge/dining room with French doors to the garden from where one can enjoy some lovely rural views. There is also a cloakroom and kitchen on the ground floor together with two bedrooms and bathroom at first floor. 
 
At the rear there is a private courtyard garden backing onto open countryside with the property also having the benefit of a parking space immediately outside at the front together with a further allocated space. 

St Merryn's village motto is 7 Bays for 7 Days bearing testament to the excellent beaches located within a 1-3 mile radius and include Harlyn Bay, Trevone Bay, Mother Ivey's, Constantine Bay, Booby's Bay, Treyarnon and Porthcothan Bay.


St Merryn offers an excellent range of amenities including Convenience Store, Bakers/Delicatessen, range of restaurants, garage, veterinary surgery, excellent Primary School and two public houses including Rick Stein's gastro pub The Cornish Arms.


Sailing and Watersports: The Camel Estuary is a well-established centre for watersports, including sailing and waterskiing. Boat charters are available from Padstow and craft can be moored in Padstow or launched from the Padstow Harbour Commissioners' Slipway.


Important Information

  • This is a Leasehold property.

Property Ref: 192_1126438

Share:

Similar Properties

St Columb, TR9

3 Bedroom Detached House | £175,000

A unique and unusual attached three bedroom home with generous gardens enjoying rural views.  EPC - G

St. Merryn, PL28

2 Bedroom Semi-Detached House | £170,000

Well presented two bedroom semi detached holiday home situated in a sought after cul-de-sac location.  EPC - C

St. Merryn, PL28

2 Bedroom Semi-Detached House | £170,000

Well presented two bedroom semi detached holiday home situated in a sought after cul-de-sac location.  EPC - C

St Issey, PL27

2 Bedroom Apartment | £199,000

Immaculately presented two bedroom ground floor apartment finished to exacting specifications benefitting from mains gas...

Trevone, PL28

3 Bedroom End of Terrace House | £208,000

A rare opportunity to buy a three bedroom end terrace affordable home near the sea.  EPC - B

St Issey, PL27

2 Bedroom End of Terrace House | £225,000

A picturesque 2 bedroom stone character cottage, together with a 5.4m garage and off road parking.  EPC: E

Cole Rayment & White (Padstow)

Padstow, Cornwall, PL28 8AB

01841 533386

How much is your home worth?

Use our short form to request a valuation of your property.

Request a Valuation

Mortgage Calculator

Amount Borrowed: £
Total Amount Repayable: £
Total Monthly Payment: £
©2025 The Guild of Property Professionals. All rights reserved. Terms and Conditions | Privacy Policy | Cookie Policy | Complaints Policy | Members Login
The Guild of Property Professionals Trading Address: 121 Park Lane, London W1K 7AG. GPEA Limited. Registered in England & Wales.  Company No: 02819824.  Registered Office Address: 2 St. Stephen's Court, St. Stephen's Road, Bournemouth, Dorset, England, BH2 6LA.  VAT Registration No: 576 8795 61
Book a Property Valuation Update Cookies Preferences