Padstow, PL28

£359,000
Under Offer
This property listing is now Under Offer

3 Bedroom Semi-Detached House for sale in Padstow

1 3 1
  • BRICK PAVED PARKING FOR FOUR VEHICLES
  • LANDSCAPED SOUTH FACING GARDENS AT REAR
  • UPVC DOUBLE GLAZING
  • MAINS GAS FIRED CENTRAL HEATING
  • BATHROOM AT FIRST FLOOR
  • THREE BEDROOMS AT FIRST FLOOR
  • FRENCH DOORS TO GARDEN
  • GENEROUS OPEN PLAN KITCHEN/DINING ROOM
  • LOUNGE WITH FEATURE WOOD BURNER
  • IMMACULATELY PRESENTED THREE BEDROOM HOME

Located on the immediate outskirts of town No.3 Hawkins Road has been considerably improved by the present owners now offering immaculately presented living accommodation. 
 
Featuring a super lounge with wood burner there is a generous kitchen/dining room with built in appliances and French doors opening to the south facing garden at the rear. Benefitting from mains gas fired central heating and uPVC double glazing the property offers three bedrooms at first floor and family bathroom. 
 
At the front the property has the advantage of brick paved driveway providing parking for four vehicles with the gardens at the rear being a particular feature enjoying a wonder south facing aspect. 
 
For those purchasers seeking a home that's very much ready to move into, No.3 Hawkins Road should be considered ideal and an early viewing appointment is thoroughly recommended. 
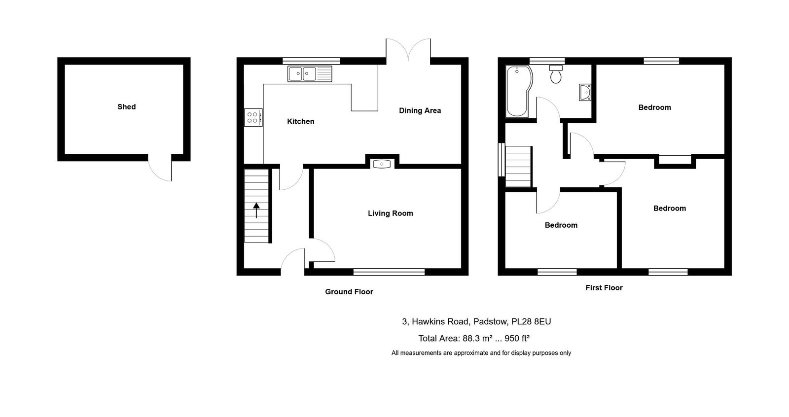
ACCOMMODATION WITH ALL MEASUREMENTS BEING APPROXIMATE:-

DOUBLE GLAZED FRONT DOOR IN UPVC FRAME OPENING TO

ENTRANCE HALL
Stairs to first floor, radiator, tiled floor. 
LOUNGE - 4.7m x 3.2m (15'5" x 10'5")
Double glazed window in uPVC frame to front, feature wood burner set on slate hearth with timber over mantle, radiator, TV point. 
KITCHEN/DINING ROOM - 6.9m x 3.2m (22'7" x 10'5")
Double glazed window in uPVC frame and French doors opening to south facing rear gardens, the kitchen is fitted with a superb range of modern units comprising base cupboards with timber worktops over and wall cupboards above. Integral electric double oven and four ring hob with extractor hood over, one and a half bowl stainless steel sink unit and mixer tap, space and power for washing machine and tumble dryer, space for American style fridge/freezer. Tall radiator, tiled floor. 
FIRST FLOOR

LANDING
Double glazed window in uPVC frame to side. 
BEDROOM ONE - 4m x 2.9m (13'1" x 9'6")
Double glazed window in uPVC frame to rear, radiator, shelved recess. 
BEDROOM TWO - 3.3m x 3.1m (10'9" x 10'2")
Double glazed window in uPVC frame to front, radiator. 
BEDROOM THREE - 3.6m x 2.4m (11'9" x 7'10")
Double glazed window in uPVC frame to front, radiator, built in cabin bed. 
BATHROOM
Suite comprising panel bath with overhead shower, low flush WC and wash hand basin with vanity cupboard, heated towel rail, opaque pattered double glazed window in uPVC frame to rear. 
OUTSIDE

PARKING
No. 3 Hawkins Road has a generous brick paved parking area at the front with off road parking for four vehicles. 
GARDEN
The garden at the rear is a particular feature comprising a large level patio with steps up to a lawned garden enclosed with timber fence boundaries. Raised bed with inset water feature. 
TIMBER GARDEN SHED - 2.9m x 2.6m (9'6" x 8'6")
Providing useful storage. 
COUNCIL TAX BAND
A
TENURE
Freehold
WHAT THREE WORDS
///nightcap.wages.spelling

Important Information

  • This is a Freehold property.

Property Ref: 850129

Share:

Similar Properties

Little Petherick, PL27

2 Bedroom End of Terrace House | £350,000

A delightfully presented end terraced two bedroom cottage with detached Summer House/Store and timber decked patio overl...

Rainyfields Close, Padstow, PL28 8RF

2 Bedroom Semi-Detached House | £325,000

A beautifully presented two double bedroom semi detached modern home with conservatory and garage enjoying Estuary views...

13 Sarahs View, Padstow, PL28 8DU

2 Bedroom End of Terrace House | £310,000

A superbly presented 2 bedroom end terrace modern home with private gardens and garage.  EPC - E

Penrose, Wadebridge, PL27 7

3 Bedroom End of Terrace House | £359,950

A picturesque three bedroom end terraced character cottage enjoying quiet edge of village location. EPC: E

Padstow, PL28

3 Bedroom Semi-Detached House | £365,000

Well presented three bedroom family home with kitchen/breakfast room and two reception rooms enjoying views to Rock, the...

Padstow, PL28

2 Bedroom Semi-Detached House | £375,000

A beautifully presented two double bedroom two bathroom semi-detached modern home with a wonderful open plan living room...

Cole Rayment & White (Padstow)

Padstow, Cornwall, PL28 8AB

01841 533386

How much is your home worth?

Use our short form to request a valuation of your property.

Request a Valuation

Mortgage Calculator

Amount Borrowed: £
Total Amount Repayable: £
Total Monthly Payment: £
©2026 The Guild of Property Professionals. All rights reserved. Terms and Conditions | Privacy Policy | Cookie Policy | Complaints Policy | Members Login
The Guild of Property Professionals Trading Address: 121 Park Lane, London W1K 7AG. GPEA Limited. Registered in England & Wales.  Company No: 02819824.  Registered Office Address: 2 St. Stephen's Court, St. Stephen's Road, Bournemouth, Dorset, England, BH2 6LA.  VAT Registration No: 576 8795 61
Book a Property Valuation Update Cookies Preferences