Penrose, Wadebridge, PL27 7

£359,950

3 Bedroom End of Terrace House for sale in Wadebridge

2 3 1
  • GARDEN
  • 3 BEDROOMS AND BATHROOM AT FIRST FLOOR
  • KITCHEN AND UTILITY ROOM
  • SEPARATE DINING ROOM
  • CONSERVATORY ENJOYING PRETTY RURAL OUTLOOK
  • 6.2m LOUNGE WITH FEATURE WOODBURNER

Uphill Cottage is a pretty stone built character cottage which has been extended at the front with the addition of a conservatory which enjoys a pretty rural outlook.  
 
Also offering a 6.2m lounge with feature woodburner, there is also a separate dining room and kitchen with built-in oven and hob, together with a separate utility room.
 
At first floor the property has 3 bedrooms and bathroom with some windows having been replaced with modern UPVC double glazed units.
 
Currently run as a successful holiday let by the present owners over a number of years, the property would equally make a fine permanent home for those purchasing who are seeking a real character cottage in a pretty edge of village setting.

Penrose is an idyllic rural village located approximately two miles from St Merryn and five miles from Padstow. Within a one and a half - five miles are many of North Cornwall's finest sandy beaches.

Merlin golf course is approximately two miles distance with the championship links golf course of Trevose just four miles away. Many of North Cornwall's finest surfing bays are within four miles as is Newquay airport with regular flights to London.

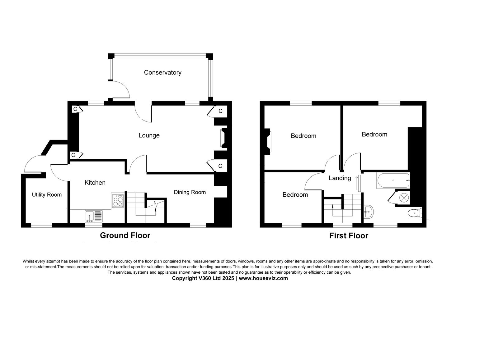
ACCOMMODATION WITH ALL MEASUREMENTS BEING APPROXIMATE:-

DOUBLE GLAZED FRONT DOOR IN UPVC FRAME OPENING TO:

CONSERVATORY - 4.2m x 2m (13'9" x 6'6")
Double glazed on three side in UPVC frame enjoying a wonderful rural outlook, quarry tiled floor, half glazed timber door to:
LOUNGE - 6.2m x 3m (20'4" x 9'10")
Two sash windows to front, feature woodburner set on raised hearth with built-in cupboards to each side, slate hearth, built-in crockery cupboard, beamed ceilings, electric night storage heater.
DINING ROOM - 3.7m x 2.1m (12'1" x 6'10")
Sash window to rear, feature fireplace with clone oven (not in use), slate flagged floor, beamed ceiling, stairs to first floor with cupboard understore.
KITCHEN - 2.6m x 2.4m (8'6" x 7'10")
Window to rear, kitchen with base cupboards with worktops over, stainless steel sink unit and mixer tap, built-in electric oven and four ring hob, electric night storage heater, quarry tiled floor, beamed ceiling, timber stable door to:
UTILITY ROOM - 3.5m x 1.9m (11'5" x 6'2")
Opaque patterned window to rear, space and plumbing for washing machine and space and power for fridge, built-in base cupboard, door to outside, quarry tiled floor.
FIRST FLOOR

LANDING

BEDROOM ONE - 3.3m x 2.9m (10'9" x 9'6")
Double glazed sash window in UPVC frame to front, feature fireplace with dog basket grate and timber surround (not in use), stripped timber floor, electric night storage heater.
BEDROOM TWO - 3.18m x 3m (10'5" x 9'10")
Double glazed sash window in UPVC frame to front, stripped timber floor, electric night storage heater.
BEDROOM THREE - 2.5m x 2.4m (8'2" x 7'10")
Sash window to rear, stripped timber floor, electric night storage heater.
BATHROOM
Panelled bath with electric shower over, low flush WC, wash hand basin, stripped timber floor, airing cupboard.
OUTSIDE

GARDEN
There is a small enclosed front garden with a further open plan lawned garden at the rear over which the neighbouring cottage has a vehicular right of access.
LOG SHED
Adjoining a double garage there is a log shed.
AGENTS NOTE
There is an option to purchase the brick built double garage located at the rear.
TENURE
Freehold
COUNCIL TAX BAND
B
WHAT 3 WORDS
minimums.paddock.afford

Important Information

  • This is a Freehold property.

Property Ref: 1226207

Share:

Similar Properties

Padstow, PL28

3 Bedroom Semi-Detached House | £359,000

An immaculately presented and much improved three bedroom semi-detached family home with south facing rear gardens and e...

Little Petherick, PL27

2 Bedroom End of Terrace House | £350,000

A delightfully presented end terraced two bedroom cottage with detached Summer House/Store and timber decked patio overl...

Rainyfields Close, Padstow, PL28 8RF

2 Bedroom Semi-Detached House | £325,000

A beautifully presented two double bedroom semi detached modern home with conservatory and garage enjoying Estuary views...

Padstow, PL28

3 Bedroom Semi-Detached House | £365,000

Well presented three bedroom family home with kitchen/breakfast room and two reception rooms enjoying views to Rock, the...

Padstow, PL28

2 Bedroom Semi-Detached House | £375,000

A beautifully presented two double bedroom two bathroom semi-detached modern home with a wonderful open plan living room...

Padstow, PL28 8

2 Bedroom Terraced House | £375,000

Delightfully presented mid-terraced 2 bedroom, Grade II listed cottage located in the heart of the conservation area and...

Cole Rayment & White (Padstow)

Padstow, Cornwall, PL28 8AB

01841 533386

How much is your home worth?

Use our short form to request a valuation of your property.

Request a Valuation

Mortgage Calculator

Amount Borrowed: £
Total Amount Repayable: £
Total Monthly Payment: £
©2026 The Guild of Property Professionals. All rights reserved. Terms and Conditions | Privacy Policy | Cookie Policy | Complaints Policy | Members Login
The Guild of Property Professionals Trading Address: 121 Park Lane, London W1K 7AG. GPEA Limited. Registered in England & Wales.  Company No: 02819824.  Registered Office Address: 2 St. Stephen's Court, St. Stephen's Road, Bournemouth, Dorset, England, BH2 6LA.  VAT Registration No: 576 8795 61
Book a Property Valuation Update Cookies Preferences