Pennsylvania, Exeter

Guide Price
£525,000

4 Bedroom Detached House for sale in Pennsylvania

2 4 2

Directions

From Exeter city centre proceed along Longbrook Street and across the mini roundabout onto Pennsylvania Road. At the junction go straight across, continuing along Pennsylvania Road. Go over the brow of the hill and after a short distance turn right onto Stoke Valley Road and first right onto Florida Drive. As you go down over the road, the property can be found on the left.

What3Words: ///bared.daily.watch

Situation

Florida Drive enjoys a lovely location within the highly desirable Pennsylvania area of the city and enjoying stunning views across the city and to the countryside beyond. The location offers excellent access to the city centre and University Campus, a frequent bus service to the centre and excellent road links to the M5 motorway, ‘A’ road intersection and coastal routes. There are both primary and secondary schools nearby, Sylvania community store and The Secret Garden outdoor Cafe with its wonderful views.

Description

This modern three storey detached house is quietly situated in the popular Pennsylvania district of Exeter, ideally positioned for access to the city centre and Exeter University.

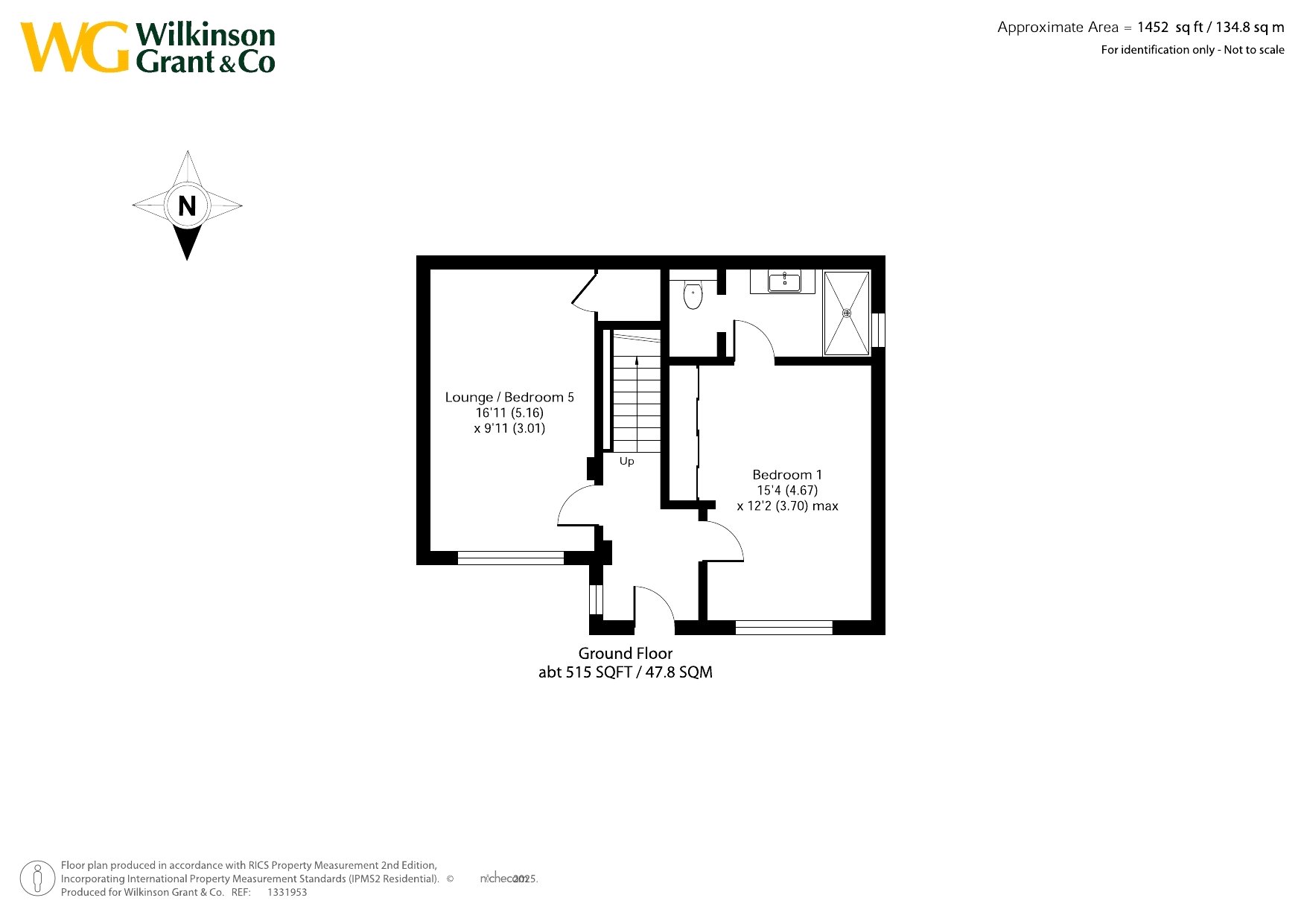
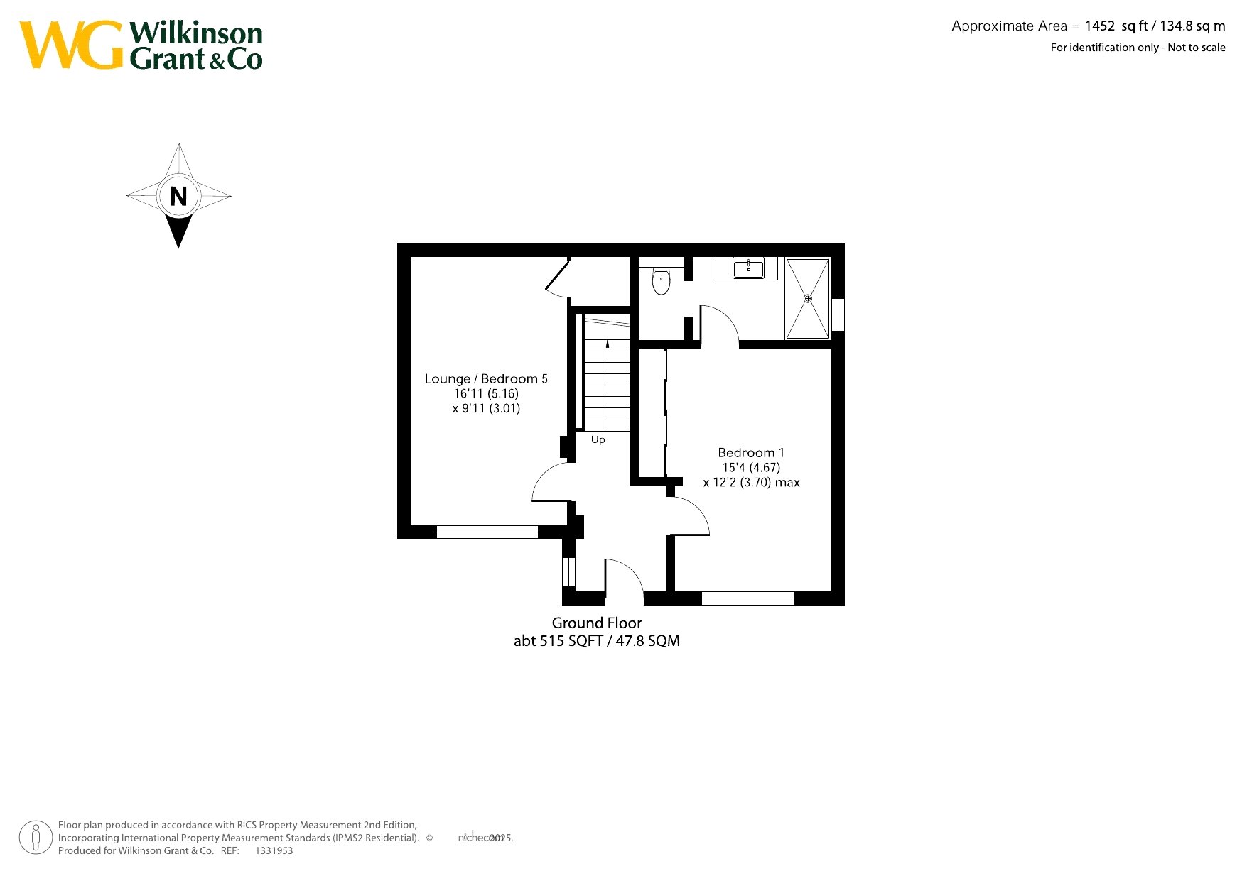
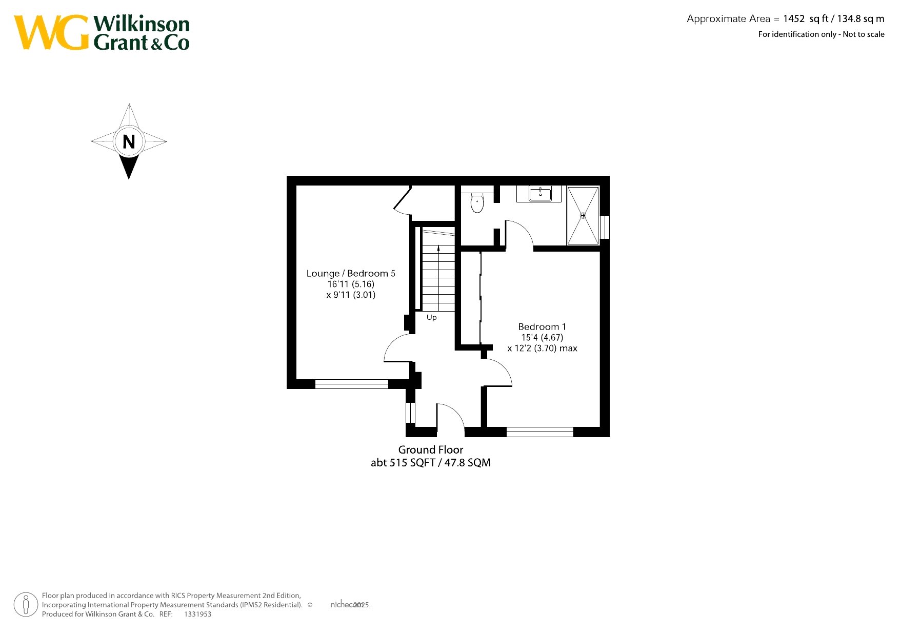
The well-presented accommodation features a composite front door opening to an entrance hall with tiled flooring and stairs rising to the first floor. The ground floor could be arranged as a self-contained suite for a relative if desired, comprising a useful reception room/additional bedroom alongside a double bedroom with wardrobes and a modern ensuite shower room with a large walk-in rainfall shower, screen, vanity unit and WC.

On the first-floor landing, there are stairs to the second floor and a double-glazed door providing access out to the rear garden. There is a separate WC whilst the kitchen is a generous size, dual aspect room leading through to the dining room and dual aspect sitting room with double glazed doors out to the rear garden.

The second-floor landing window has superb far-reaching views. On this floor are three bedrooms and a bathroom, one spacious dual aspect bedroom has lovely views whilst the modern fitted bathroom has a white suite.

Outside to the front of the property is off-road parking for two to three cars whilst the rear garden is westerly facing with a paved patio ideal for dining out. There is a raised level lawn and a second patio area at the rear of the garden, where a summer house - fully powered and ideal for use as a home office - can be found. A gate provides side access.

SERVICES:    The vendors have advised the following: Mains gas serving the central heating and hot water, mains electricity, water (metered) and drainage. Telephone landline is connected but not currently under Contract. Broadband: (Cable) Currently under Contract with Virgin, Download speed - 100 Mbps and Upload speed – 10 Mbps. Mobile signal: Several networks currently showing as available at the property including 02, EE, Three and Vodafone.

AGENTS NOTE:    The vendor advises that there is a covenant on the property preventing running a business from the property. The vendor also advises that there is Artex in the principal bedroom, WC, hall, staircase, third and fourth bedrooms and the bathroom.

50.744354 -3.524263

Important Information

  • This is a Freehold property.

Property Ref: sou_SOU250559

Share:

Similar Properties

Pennsylvania, Exeter

4 Bedroom Detached House | Guide Price £525,000

**OPEN HOUSE - SATURDAY 25TH OCTOBER**An attractive 4 BEDROOM DETACHED HOUSE with a private drive/off road parking and L...

Exeter, Devon

3 Bedroom Detached House | Guide Price £525,000

A SUPERBLY-PRESENTED 3 BEDROOM DETACHED HOUSE in a favoured residential address on the outskirts of the city close to SC...

Westclyst, Exeter, Devon

3 Bedroom Detached House | Guide Price £525,000

A superb DETACHED HOME situated on the FRINGES OF PINHOE VILLAGE. FOUR DOUBLE BEDROOMS, fabulous 25ft x 16ft OPEN PLAN K...

St Thomas, Exeter, Devon

4 Bedroom Detached House | Guide Price £540,000

A spacious and characterful FOUR BEDROOM DETACHED period home in the heart of St Thomas. Offering generous living space,...

Exeter, Devon

3 Bedroom Terraced House | Guide Price £545,000

An IMMACULATE CITY CENTRE townhouse with THREE DOUBLE BEDROOMS, large living room and STYLISH MODERN KITCHEN. SOLD WITH...

Thorverton, Exeter

5 Bedroom Terraced House | Offers in excess of £545,000

This beautifully proportioned home combines period character with VERSATILE ACCOMODATION in the heart of Thorverton. Wit...

Wilkinson Grant & Co (Exeter)

Castle Street, Southernhay West, Exeter, Devon, EX4 3PT

01392 427500

How much is your home worth?

Use our short form to request a valuation of your property.

Request a Valuation

Mortgage Calculator

Amount Borrowed: £
Total Amount Repayable: £
Total Monthly Payment: £
©2025 The Guild of Property Professionals. All rights reserved. Terms and Conditions | Privacy Policy | Cookie Policy | Complaints Policy | Members Login
The Guild of Property Professionals Trading Address: 121 Park Lane, London W1K 7AG. GPEA Limited. Registered in England & Wales.  Company No: 02819824.  Registered Office Address: 2 St. Stephen's Court, St. Stephen's Road, Bournemouth, Dorset, England, BH2 6LA.  VAT Registration No: 576 8795 61
Book a Property Valuation Update Cookies Preferences