Land for Work-Live Unit, Pensham, Pershore

Asking Price
£150,000
SSTC
This property listing is now SSTC

Not Specified for sale in Pershore

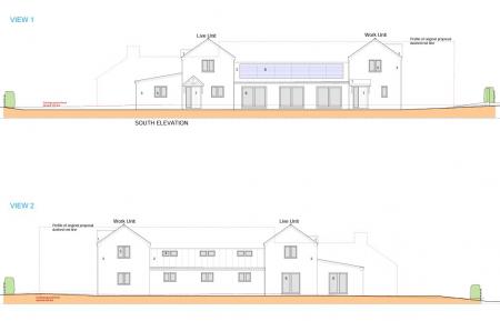
  • 0.57 acre of land with planning permission for a work-live unit (three bedrooms)
  • Wychavon W/22/01976/FUL dated 10 October 2024
  • Plot has access to sewerage and water
  • An application has been submitted to Severn Trent for a new water supply and foul drainage connection
  • Power is available from a three phase transformer
  • Further plot of land is available by separate negotiation to the west of the site (approx. 0.5-acre) - £100,000
  • Land registry WR157143 (previously part of WR151497)

**ANOTHER PROPERTY SOLD (stc) BY NIGEL POOLE & PARTNERS. FOR A FREE MARKET APPRAISAL CALL 01386 556506** **LAND WITH PLANNING PERMISSION GRANTED FOR A WORK/LIVE UNIT - W/22/01976/FUL** Land of approximately 0.57 acre with an additional piece of land (approx. 0.5 acre) available by separate negotiation. The plot has access to sewerage and water. An application has been made to Severn Trent for a new water supply and foul drainage connection. Power is available from a three-phase transformer in the additional land on the western side of the plot.

Additional Information

The further plot of land is available by separate negotiation to the west of the site. Further details can be given.
There will be a wayleave registered for the Manor Farm water pipe which runs along the northern boundary of the site.
Power to the three-phase transformer on the additional plot of land - if the additional land is not required a wayleave will be granted.
Planning application - W/22/01976/FUL dated 10th October 2024.

Additional Land

Price for the additional plot of land - £100,000

Identity Checks

Estate Agents are required by law to conduct anti-money laundering checks on all those buying a property. We have partnered with a third part supplier to undertake these, and a buyer will be sent a link to the supplier’s portal. The cost of these checks is £30 per person including VAT and is non-refundable. The charge covers the cost of obtaining relevant data, any manual checks and monitoring which may be required. This fee will need to be paid and checks completed in advance of the issuing of a memorandum of sale.

Disclaimer

All measurements are approximate and for general guidance only. Whilst every attempt has been made to ensure accuracy, they must not be relied on.

The fixtures, fittings and appliances referred to have not been tested and therefore no guarantee can be given and that they are in working order.

Internal photographs are reproduced for general information and it must not be inferred that any item shown is included with the property.

Whilst we carry out due diligence before launching a property to the market and endeavour to provide accurate information, buyers are advised to conduct their own due diligence.

Our information is presented to the best of our knowledge and should not solely be relied upon when making purchasing decisions. The responsibility for verifying aspects such as flood risk, easements, covenants and other property related details rests with the buyer.

Important Information

  • This is a Freehold property.

Property Ref: 00004234

Share:

Similar Properties

Rushers Close, Pershore

2 Bedroom Terraced Bungalow | Shared Ownership £140,000

**TWO BEDROOM MID TERRACE RETIREMENT BUNGALOW** £140,000 representing 70% of open market value. The property will always...

Owletts End, Pinvin

Not Specified | Asking Price £135,000

**BUILDING PLOT WITH PLANNING PERMISSION FOR A FOUR BEDROOM DETACHED HOUSE** Wychavon District Council Planning W/24/024...

Rushers Close, Pershore

2 Bedroom Retirement Property | Asking Price £90,000

**TWO BEDROOM RETIREMENT APARTMENT** £90,000 representing 70% of open market value. The property will always have to be...

Meadow Walk, Pershore

3 Bedroom Terraced House | Asking Price £190,000

**THREE BEDROOM MID-TERRACED HOUSE WITH WESTERLY FACING GARDEN** Entrance hall; dual aspect living room; dining room; ki...

Worcester Road, Pershore

3 Bedroom Cottage | Offers in excess of £210,000

**THREE BEDROOM MID TERRACE CHARACTER COTTAGE WITH ORIGINAL FEATURES THROUGHOUT, VIEWS TO BREDON HILL AND PARKING** Entr...

Meadow Walk, Pershore

3 Bedroom Terraced House | Asking Price £215,000

**THREE BEDROOM MID-TERRACE HOUSE WITH OPEN VIEWS TO THE RIVER AVON AND BREDON HILL** Entrance Hall; living room with sl...

Nigel Poole & Partners (Pershore)

Pershore, Worcestershire, WR10 1AA

01386 556506

How much is your home worth?

Use our short form to request a valuation of your property.

Request a Valuation

Mortgage Calculator

Amount Borrowed: £
Total Amount Repayable: £
Total Monthly Payment: £
©2026 The Guild of Property Professionals. All rights reserved. Terms and Conditions | Privacy Policy | Cookie Policy | Complaints Policy | Members Login
The Guild of Property Professionals Trading Address: 121 Park Lane, London W1K 7AG. GPEA Limited. Registered in England & Wales.  Company No: 02819824.  Registered Office Address: 2 St. Stephen's Court, St. Stephen's Road, Bournemouth, Dorset, England, BH2 6LA.  VAT Registration No: 576 8795 61
Book a Property Valuation Update Cookies Preferences