Cornfield Garth, Peterlee, Durham, SR8 5TN

Offers in region of
£275,000
SSTC
This property listing is now SSTC

4 Bedroom Detached House for sale in Peterlee

2 4 2
  • Nestled beside Castle Eden Dene Nature Reserve with excellent commuter links via the A19 to Hartlepool, Sunderland, and Durham.
  • Features a grand entrance hall, full-depth extended lounge, modern kitchen diner with bifold doors to conservatory, and four double bedrooms including a master suite with dressing area and en-suit...
  • Includes a large integral garage with electric door, two block-paved driveways for ample parking, and a contemporary family bathroom.
  • : Landscaped west-facing garden with artificial lawn, raised planters, seating areas, raised patio terrace, plus planning permission for a two-storey rear extension.
  • EPC Rating: C
  • NO CHAIN

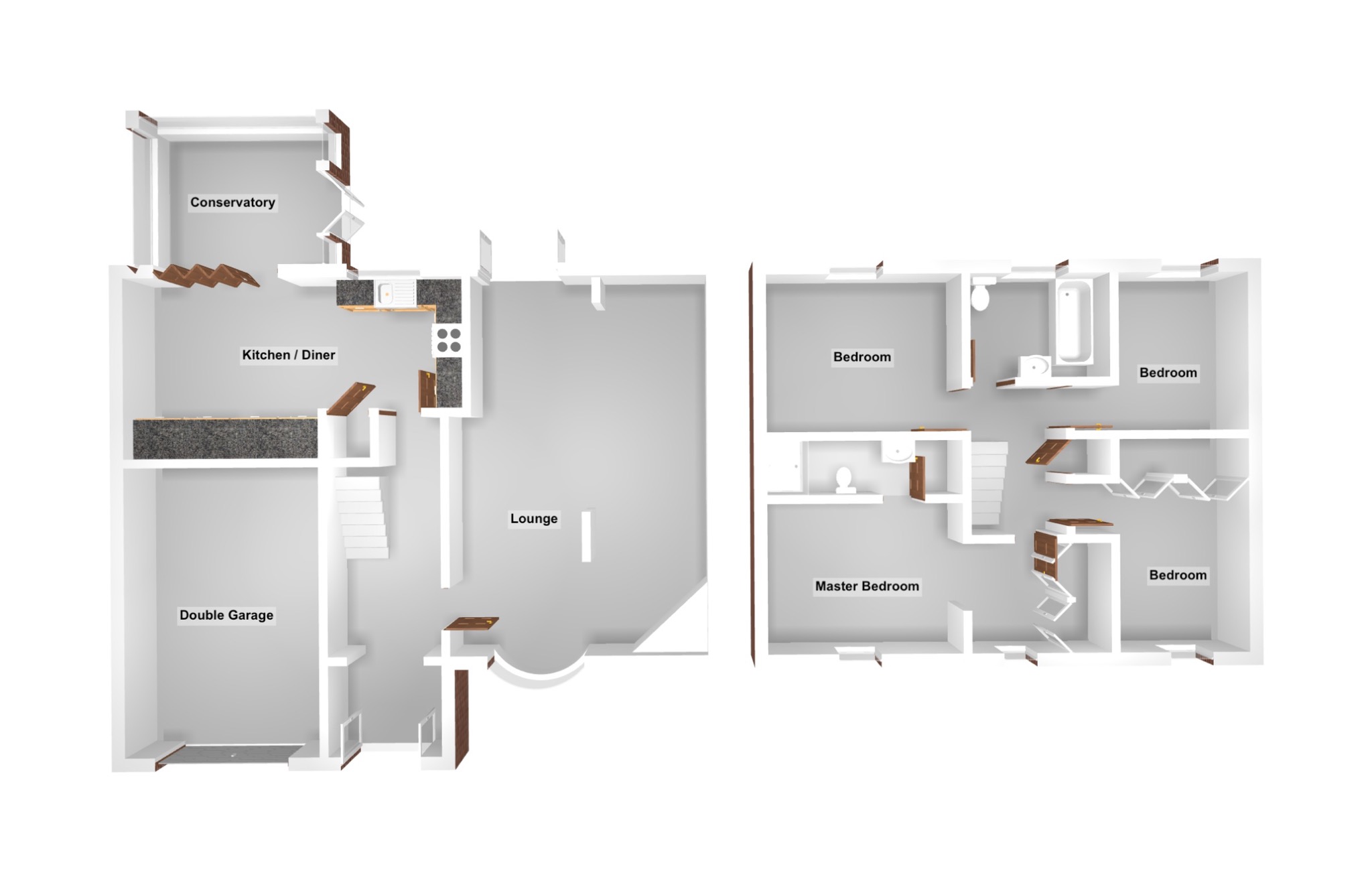
Tucked away on the edge of the breathtaking Castle Eden Dene Nature Reserve, this home combines a picturesque setting with excellent connectivity. The nearby A19 ensures easy travel to Hartlepool, Sunderland, and Durham City via the A690, making it ideal for commuters. Stepping inside, you are greeted by a generous entrance hall with elegant double doors. The extended lounge spans the full depth of the property, offering a bright and airy living space. A sleek, fully fitted kitchen diner flows seamlessly into the rear conservatory through frameless glass bifold doors, creating an open and welcoming atmosphere. The first floor is home to a luxurious master suite, complete with a private dressing area and a stylish shower en-suite. Three further well-proportioned double bedrooms are served by a contemporary family bathroom with a three-piece suite. Outside, the property features a larger-than-average integral garage with an electric main door, complemented by two block-paved driveways offering generous off-street parking. A raised patio terrace with steps leads to the front entrance. To the rear, the fully enclosed, west-facing garden has been beautifully landscaped with artificial lawn, raised planters, and multiple seating areas—perfect for relaxation or entertaining. The owners have also planning permission granted for a double storey, full length rear extension - plans available on request! This outstanding property truly needs to be viewed to be fully appreciated. NO CHAIN
Entrance Hallway 
Lounge 7.7m x 5.56m
Kitchen Diner 5.47m x 3.51m
Conservatory 3.22m x 4.11m
FIRST FLOOR 
Landing 
Master Bedroom 3.13m x 5.45m
Master En-Suite 
Bedroom Two 3.74m x 2.97m
Bedroom Three 3.04m x 3.11m
Bedroom Four 2.47m x 2.85m
MATERIAL INFORMATION The following information should be read and considered by any potential buyers prior to making a transactional decision: Services We are advised by the seller that the property has mains provided gas, electricity, water and drainage. Water MeterYes/No Parking Arrangements Driveway / Garage Broadband Speed The maximum speed for broadband in this area is shown by imputing the postcode at the following link here > https://propertychecker.co.uk/broadband-speed-check/ Electric Car Charger No Mobile Phone Signal No known issues at the property / Some limited issues in certain areas of the property / Mobile phone signal is not available at the property. Northeast of England – Mining Area We operate in an ex-mining area. This property may have been built on an ex-mining site. Further information can/will be clarified by the solicitors prior to completion. The information above has been provided by the seller and has not yet been verified at this point of producing this material. There may be more information related to the sale of this property that can be made available to any potential buyer. Please contact us for a full list of information.

Important Information

  • This is a Freehold property.

Property Ref: 452549

Share:

Similar Properties

Seaton Seaham, Durham, SR7

3 Bedroom Semi-Detached House | Offers in region of £275,000

Rarely available 3-bed semi-detached home in prime cul-de-sac location. Features spacious lounge, dining room, extended...

Tudor Grange, Easington Village, Peterlee, Durham, SR8 3DF

3 Bedroom Detached House | Offers in region of £275,000

Well-maintained 3-bed detached home in a quiet Tudor Grange cul-de-sac, Easington Village. Spacious, light-filled living...

Broadoaks, Murton, Seaham, Durham, SR7 9DL

4 Bedroom Detached House | Offers in region of £270,000

This immaculate four-bedroom detached family home is perfect for a growing family, featuring a lounge, dining room, kitc...

Flamborough Walk, Seaham, Durham, SR7 7WS

4 Bedroom End of Terrace House | Offers in region of £279,950

Spacious 4-bed end-terrace townhouse over 3 floors with open plan living, sunny garden, master en suite, and modern deco...

Aldeburgh Way, Seaham, Durham, SR7 7WQ

3 Bedroom Detached House | Offers in region of £280,000

Updated 3-bed detached home in sought-after East Shore Village featuring open-plan lounge/diner, conservatory, stunning...

Avoncroft Close, Seaham, Durham, SR7 0LL

3 Bedroom Semi-Detached House | Offers in region of £280,000

!!! REDUCED !!! Improved 3-bed semi-detached home in Seaton Village, offering spacious family living. Features include a...

Kimmitt & Roberts Estate Agents (Seaham)

16 North Terrace, Seaham, County Durham, SR7 7EU

0191 5813213

How much is your home worth?

Use our short form to request a valuation of your property.

Request a Valuation

Mortgage Calculator

Amount Borrowed: £
Total Amount Repayable: £
Total Monthly Payment: £
©2026 The Guild of Property Professionals. All rights reserved. Terms and Conditions | Privacy Policy | Cookie Policy | Complaints Policy | Members Login
The Guild of Property Professionals Trading Address: 121 Park Lane, London W1K 7AG. GPEA Limited. Registered in England & Wales.  Company No: 02819824.  Registered Office Address: 2 St. Stephen's Court, St. Stephen's Road, Bournemouth, Dorset, England, BH2 6LA.  VAT Registration No: 576 8795 61
Book a Property Valuation Update Cookies Preferences