Plympton, Plymouth

Offers Over
£220,000
SSTC
This property listing is now SSTC

3 Bedroom Semi-Detached House for sale in Plymouth

1 3 1
  • Semi-detached family home
  • Lounge/diner
  • Kitchen
  • 3 bedroooms
  • Shower room
  • Shared driveway & garage
  • Front & rear gardens
  • In need of some updating but partially re-decorated
  • Close to local amenities, schools & Saltram
  • No onward chain

An ideal starter home, this semi-detached property is close to local amenities, schools & the Saltram estate, comprising an entrance hall, lounge/diner, kitchen, 3 bedrooms & a shower room. Outside there is a shared driveway leading to a garage with parking in front & gardens to both front & rear. In need of further updating, the property has been partially re-decorated & is offered with no onward chain.

Dudley Road, Plympton, Plymouth Pl7 1Ry -

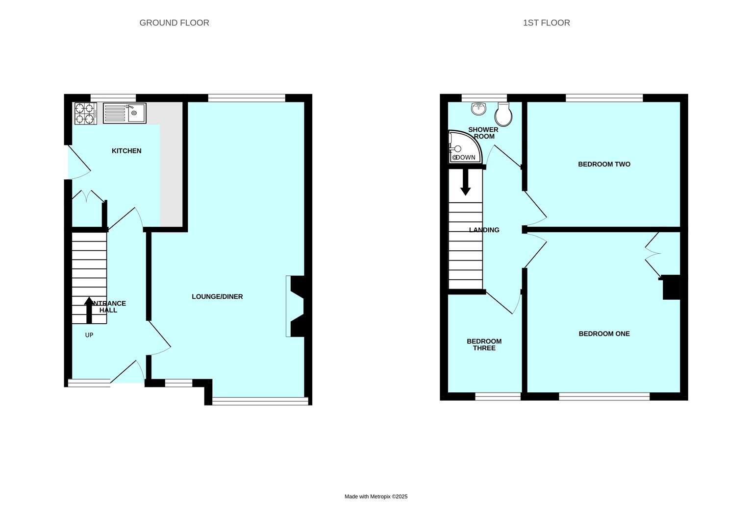
Accommodation - Obscured uPVC double-glazed door opening into the entrance hall.

Entrance Hall - 3.28 x 1.57 (10'9" x 5'1") - Doors opening to the ground floor accommodation. Stairs ascending to the first floor landing with storage cupboard beneath.

Lounge/Diner - 6.26 x 3.51 narr to 2.66 (20'6" x 11'6" narr to 8' - Dual aspect with uPVC double-glazed windows to the front and rear elevation. Wall-mounted electric fire. Serving hatch to the kitchen.

Kitchen - 2.86 x 2.44 (9'4" x 8'0") - Fitted with a matching range of base and wall-mounted units incorporating a roll-edged wood-effect laminate worktop with inset stainless-steel sink. Spaces for cooker, washing machine, tumble dryer, under-counter fridge and under-counter freezer. Wall-mounted boiler. uPVC double-glazed window to the rear elevation. Obscured uPVC double-glazed door to the side opening to the driveway.

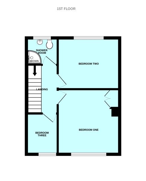
First Floor Landing - 2.57 x 1.81 (8'5" x 5'11") - Doors providing access to the first floor accommodation. Drop-down access hatch to partially-boarded loft with power. Obscured uPVC double-glazed window to the side elevation.

Bedroom One - 3.63 x 3.29 (11'10" x 10'9") - Built-in storage cupboard housing the immersion tank. uPVC double-glazed window to the front elevation.

Bedroom Two - 3.29 x 2.87 (10'9" x 9'4") - uPVC double-glazed window to the rear elevation.

Bedroom Three - 2.28 x 1.80 (7'5" x 5'10") - uPVC double-glazed window to the front elevation.

Shower Room - 1.78 x 1.54 (5'10" x 5'0") - Corner shower unit with electric shower, pedestal wash handbasin and low-level wc. Obscured uPVC double-glazed window to the rear elevation.

Garage - Up-&-over door.

Outside - The property is approached via a shared driveway, bordered by an area laid to lawn and mature shrubs, leading to a parking space in front of the garage. The driveway provides access to the rear garden which is mainly laid to lawn with a slabbed patio area and smaller trees to the rear providing a natural boundary.

Council Tax - Plymouth City Council
Council Tax Band: B

Services - The property is connected to all the mains services: gas, electricity, water and drainage.

What3words - ///hill.just.punks

Property Ref: 11002701_33749305

Share:

Similar Properties

Plympton, Plymouth

3 Bedroom End of Terrace House | Offers Over £220,000

Well-presented end-terraced family home, situated close to local schools & amenities, comprising lounge & modern kitchen...

Plympton, Plymouth

2 Bedroom Semi-Detached Bungalow | £220,000

Very well-presented bungalow in the heart of Plympton, close to a main bus route & local amenities, briefly comprising a...

Plympton, Plymouth

3 Bedroom Terraced House | Offers Over £220,000

Wonderfully-presented family home situated in the popular Westfield area, briefly comprising an entrance hall, lounge, s...

Plympton, Plymouth

3 Bedroom Terraced House | £230,000

Well-presented family home, conveniently located in a central part of Plympton, with easy access to schools & local amen...

Whitleigh, Plymouth

3 Bedroom Semi-Detached House | Offers Over £240,000

Well presented family home with accommodation briefly comprising an entrance porch & hall, lounge, kitchen/diner & conse...

Plympton, Plymouth

3 Bedroom Terraced House | £240,000

Centrally-located terraced home - ideally situated, with easy access to local amenities, schools & bus routes. It briefl...

Julian Marks Estate Agents (Plympton)

Plympton, Plymouth, PL7 2AA

01752 301002

How much is your home worth?

Use our short form to request a valuation of your property.

Request a Valuation

Mortgage Calculator

Amount Borrowed: £
Total Amount Repayable: £
Total Monthly Payment: £
©2026 The Guild of Property Professionals. All rights reserved. Terms and Conditions | Privacy Policy | Cookie Policy | Complaints Policy | Members Login
The Guild of Property Professionals Trading Address: 121 Park Lane, London W1K 7AG. GPEA Limited. Registered in England & Wales.  Company No: 02819824.  Registered Office Address: 2 St. Stephen's Court, St. Stephen's Road, Bournemouth, Dorset, England, BH2 6LA.  VAT Registration No: 576 8795 61
Book a Property Valuation Update Cookies Preferences