Plymstock, Plymouth

£335,000
SSTC
This property listing is now SSTC

3 Bedroom Semi-Detached Bungalow for sale in Plymouth

2 3 1
  • Semi-detached bungalow
  • Extended accommodation
  • Entrance & inner hallway
  • Lounge & separate dining room
  • Kitchen
  • Conservatory & additional garden room
  • 3 bedrooms, two on the ground floor & one in the roof space
  • Bathroom
  • Driveway, car port, garage, front & rear gardens
  • Double-glazing & central heating

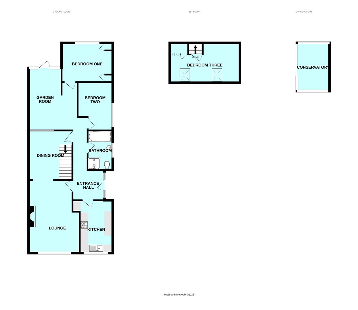
Superb & spacious semi-detached bungalow in a highly popular position. The accommodation has been extended & briefly comprises an entrance & inner hallway, lounge with separate dining room, kitchen, garden room overlooking & opening onto the rear garden, 2 bedrooms & bathroom on the ground floor. Within the converted roof space is a generous double bedroom. Outside is a conservatory, garage, driveway & car port. There are gardens to the front & rear. Double-glazing & central heating.

Shute Park Road, Plymstock, Pl9 8Rb -

Accommodation - Front door opening into the entrance hall.

Entrance Hall - 2.03m x 1.96m (6'8 x 6'5) - Providing access to the accommodation and the inner hallway.

Inner Hallway - Providing access to the remaining accommodation. Inset ceiling spotlights.

Lounge - 5.08m x 3.66m (16'8 x 12') - Chimney breast. Wall-mounted 'flame-effect' electric fire. Window with fitted blind to the front elevation. Archway opening into the dining room.

Dining Room - 3.51m x 3.23m (11'6 x 10'7) - A spacious dining room with ample space for table and chairs. Staircase ascending to the converted roof space. Further doorway leading back into the inner hallway.

Kitchen - 3.68m x 2.31m (12'1 x 7'7) - Range of base and wall-mounted cabinets with oak fascias, work surfaces and tiled splash-backs. Matching breakfast bar. Inset stainless-steel single drainer sink unit. Built-in oven. Inset 4-burner gas hob with a cooker hood above. Space for free-standing fridge-freezer. Space and plumbing for washing machine. Alcove with cupboard housing the electric meter and consumer unit with shelving above. Wall-mounted Worcester gas boiler. Window with fitted blind to the front elevation.

Bedroom One - 3.18m x 2.69m (10'5 x 8'10) - Situated to the rear of the bungalow with a window with a fitted blind overlooking the garden. Range of built-in bedroom furniture.

Bedroom Two - 3.48m x 2.13m (11'5 x 7') - Window with fitted blinds to the side elevation.

Garden Room - 4.42m x 2.29m (14'6 x 7'6) - uPVC double-glazed French doors with full-height windows either side overlooking and opening onto the garden. Inset ceiling spotlights.

Bathroom - 2.74m x 1.65m (9' x 5'5) - Comprising a bath, separate walk-in shower, basin with a cupboard beneath and wc. Mirrored bathroom cabinet. Fully-tiled walls. Obscured window to the side elevation.

Bedroom Three - 4.93m x 2.67m (16'2 x 8'9) - Situated within the converted roof space. 2 velux windows to the front elevation. Built-in wardrobe with hanging rail. Walk-in loft with lighting providing useful storage including some shelving and hanging rail.

Conservatory - 3.35m x 2.26m (11' x 7'5) - Constructed in uPVC double-glazing and sliding aluminium double-glazed door. Stone tiled floor. Fitted blinds.

Garage - 4.95m x 2.46m (16'3 x 8'1) - Up-&-over door to the front elevation. Window to the rear elevation. Power and lighting.

Outside - Gates open onto a driveway providing ample off-road parking leading to a car port and the garage. Next to the garage a timber gate provides external access into the rear garden. Also to the front is an outside tap, sub floor access hatch. The front garden is hard landscaped for ease of maintenance being laid to chippings. The rear garden has a stone patio laid adjacent to the bungalow and conservatory. There is a pond with water feature beyond which the garden is mainly laid to lawn with bordering shrub and flower beds. There are pathways, 2 sheds and a greenhouse.

Council Tax - Plymouth City Council
Council tax band D

Services - The property is connected to all the mains services: gas, electricity, water and drainage.

Property Ref: 33890422

Share:

Similar Properties

Oreston, Plymouth

3 Bedroom Semi-Detached House | £330,000

Located in the very popular district of Oreston is this older-style 3-bedroom semi-detached property which enjoys spacio...

Elburton, Plymouth

3 Bedroom Semi-Detached House | Offers Over £325,000

A beautifully-presented older-style extended semi-detached house in a lovely position close to Elburton village. The pro...

Plymstock, Plymouth

2 Bedroom Detached Bungalow | £325,000

Superbly-presented older-style double bay-fronted detached bungalow in a lovely tucked-away position in a highly sought-...

Plymstock, Plymouth

4 Bedroom Semi-Detached House | £339,950

This is a fabulous opportunity to purchase a great-sized family home convenient to central Plymstock. The property has g...

Plymstock, Plymouth

4 Bedroom Semi-Detached House | £340,000

Nicely-presented semi-detached family home in this highly popular position with accommodation briefly comprising an entr...

Hooe, Plymouth

4 Bedroom House | £345,000

A superb opportunity to acquire this link-detached property offering generous accommodation including a large rear garde...

Julian Marks Estate Agents (Plymstock)

2 The Broadway, Plymstock, Plymstock, Devon, PL9 7AW

01752 401128

How much is your home worth?

Use our short form to request a valuation of your property.

Request a Valuation

Mortgage Calculator

Amount Borrowed: £
Total Amount Repayable: £
Total Monthly Payment: £
©2026 The Guild of Property Professionals. All rights reserved. Terms and Conditions | Privacy Policy | Cookie Policy | Complaints Policy | Members Login
The Guild of Property Professionals Trading Address: 121 Park Lane, London W1K 7AG. GPEA Limited. Registered in England & Wales.  Company No: 02819824.  Registered Office Address: 2 St. Stephen's Court, St. Stephen's Road, Bournemouth, Dorset, England, BH2 6LA.  VAT Registration No: 576 8795 61
Book a Property Valuation Update Cookies Preferences