Plymstock, Plymouth

£375,000
SSTC
This property listing is now SSTC

4 Bedroom Detached Bungalow for sale in Plymouth

1 4 2
  • Older-style detached bungalow being sold with no onward chain
  • Stunning position with a south-west facing garden backing onto Radford Park
  • Open-plan lounge/dining room
  • Kitchen
  • 2 ground floor double bedrooms & bathroom
  • 2 further first floor rooms, one with an ensuite wc
  • Conservatory
  • Drive & garage
  • Superb rear garden with a decked balcony providing fantastic views over Radford Park towards Plymouth & views towards Staddon Heights
  • In need of updating

Superbly-positioned older-style detached bungalow enjoying a lovely south-facing rear garden with lovely views from Staddon Heights across to Plymouth. Briefly, the accommodation comprises an open-plan lounge/dining room, kitchen, inner hallway and conservatory. There are 2 ground floor double bedrooms plus a bathroom and within the roof space, 2 further rooms, one with an ensuite wc. Externally there is a drive & garage. Double-glazing & central heating. Being sold with no onward chain.

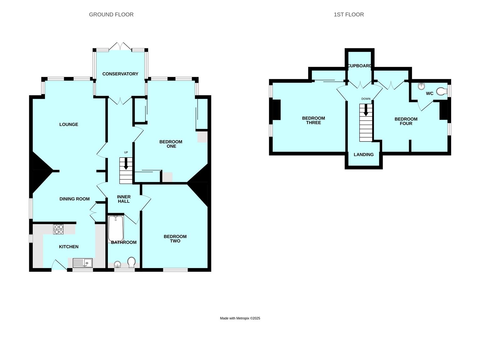
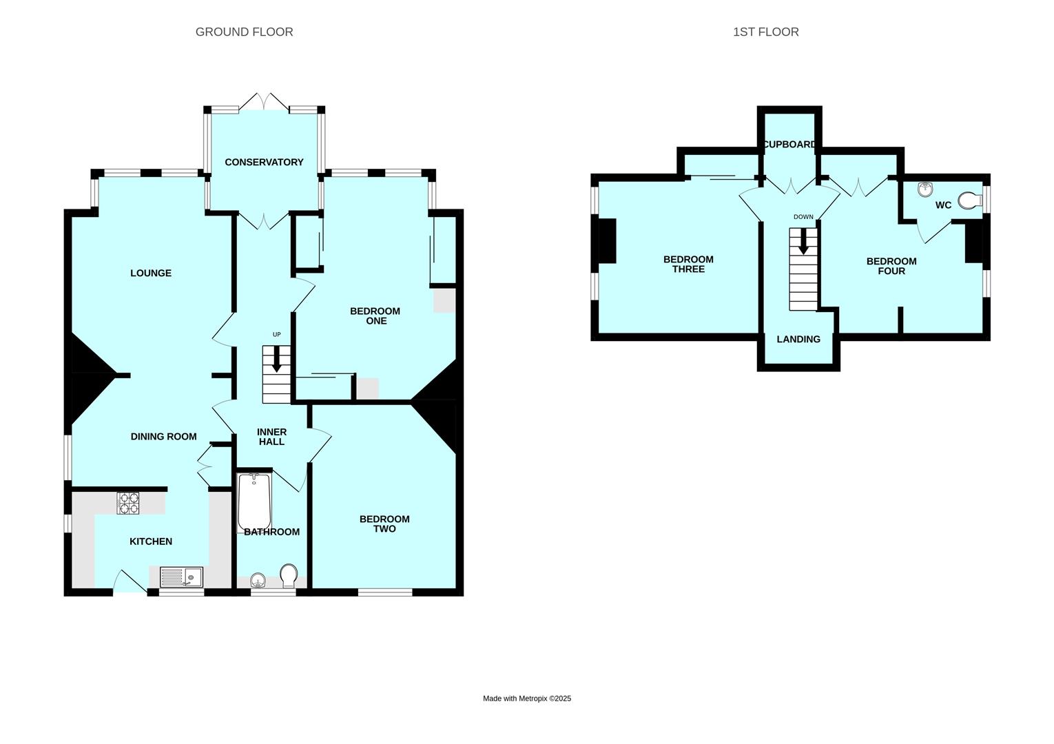
Radford Park Road, Plymstock, Pl9 9Dx -

Accommodation -

Entrance Porch - 2.01m x 1.24m (6'7 x 4'1) - Doorway opening into the kitchen.

Kitchen - 3.66m x 2.31m (12' x 7'7) - Range of base and wall-mounted cabinets with matching fascias, work surfaces and tiled splash-backs. Inset one-&-a-half bowl single drainer sink unit. Space for free-standing cooker, fridge-freezer and washing machine. Wall-mounted Vaillant gas boiler. Over-head cupboard housing the fuse box and electric meter. Windows to 2 elevations. Archway leading through into the lounge/dining room.

Lounge/Dining Room - 7.11m x 3.66m (23'4 x 12') - An open-plan room providing ample space for seating and dining. Within the dining area there is a window with a fitted blind to the side elevation. Doorway opening into the inner hallway. The lounge is situated to the with a superb walk-in bay window with fitted blinds with lovely views over the garden towards Radford Park and Staddon Heights. Further door opening into the hall.

Inner Hall - 5.92m x 1.24m (19'5 x 4'1) - Staircase ascending to the converted roof space. Doors providing access to the remaining ground floor accommodation. Glazed double doors to the rear opening into the conservatory.

Conservatory - 2.51m x 2.26m (8'3 x 7'5) - Windows to 3 sides. Double-glazed roof. Doorway to the side providing access to outside. Double doors opening onto the decked balcony, providing stunning views over the garden towards Radford Park, towards Staddon Heights and across to Plymouth.

Bedroom One - 5.16m x 3.66m (16'11 x 12') - Walk-in bay window with fabulous views. Range of built-in wardrobes.

Bedroom Two - 4.29m x 3.38m (14'1 x 11'1) - Currently used as an additional dining room. Window to the front elevation.

Bathroom - 2.67m x 1.52m (8'9 x 5') - Comprising a seated bath with an electric shower system over, wc and basin. Partly-tiled walls. Obscured window to the front elevation.

First Floor Landing - 3.91m x 1.22m (12'10 x 4') - Providing access to the loft rooms. Storage cupboard. Velux skylight window to the rear elevation.

Bedroom Three - 3.66m x 3.33m (12' x 10'11) - 2 windows to the side elevation. Eaves storage.

Bedroom Four - 3.63m x 3.25m (11'11 x 10'8) - Window to the side elevation. Eaves storage. Doorway opening into the ensuite wc.

Ensuite Wc - 1.57m x 0.91m (5'2 x 3') - Fitted with a wc and a pedestal basin with a tiled splash-back. Obscured window to the side elevation.

Garage - 6.76m x 3.15m max dimensions (22'2 x 10'4 max dime - Up-&-over door to the front elevation. Power and lighting. Storage cupboard and shelving. Windows to 2 elevations. Partly-glazed rear access door opening into the garden.

Outside - To the front, a driveway provides parking and access to the garage and a covered carport. Also, to the front is an outside tap, a brick-paved parking area plus additional driveway access onto Radford Park Road. A gravelled pathway leads around the side of the bungalow accessing the rear garden. The rear garden, which enjoys a south-west aspect, is mainly laid to lawn together with a variety of mature shrub and flower beds. There is a paved patio area, sub-floor access to the bungalow for storage etc. and built onto the rear is a timber decked balcony with a balustrade providing a fabulous place to sit and enjoy the views. A gateway opens onto Radford Park.

Property Ref: 34199288

Share:

Similar Properties

Saltram Meadow, Plymouth

4 Bedroom Semi-Detached House | £375,000

Superbly-presented semi-detached house with accommodation arranged over 3 storeys. Briefly, the accommodation comprises...

Down Thomas, Plymouth

2 Bedroom Semi-Detached House | £375,000

Superbly-situated individual property in a lovely location with generous gardens to 3 sides including a garage & carport...

Turnchapel, Plymouth

2 Bedroom Detached Bungalow | Guide Price £375,000

Superbly-positioned link detached bungalow situated within this highly sought-after location close to Turnchapel and Mou...

Elburton, Plymouth

4 Bedroom Semi-Detached House | £385,000

Individual semi-detached house situated in this highly sought-after enclave within Elburton. The accommodation is superb...

Wembury, Plymouth

4 Bedroom Detached Bungalow | £385,000

Detached bungalow situated in this highly popular cul-de-sac within the coastal village. There is a superb rear garden,...

Hooe, Plymouth

4 Bedroom Detached House | Offers Over £385,000

Quietly located 4-bedroom detached family home within easy reach of local shops & primary school as well as Hooe Park &...

Julian Marks Estate Agents (Plymstock)

2 The Broadway, Plymstock, Plymstock, Devon, PL9 7AW

01752 401128

How much is your home worth?

Use our short form to request a valuation of your property.

Request a Valuation

Mortgage Calculator

Amount Borrowed: £
Total Amount Repayable: £
Total Monthly Payment: £
©2026 The Guild of Property Professionals. All rights reserved. Terms and Conditions | Privacy Policy | Cookie Policy | Complaints Policy | Members Login
The Guild of Property Professionals Trading Address: 121 Park Lane, London W1K 7AG. GPEA Limited. Registered in England & Wales.  Company No: 02819824.  Registered Office Address: 2 St. Stephen's Court, St. Stephen's Road, Bournemouth, Dorset, England, BH2 6LA.  VAT Registration No: 576 8795 61
Book a Property Valuation Update Cookies Preferences