Plymstock, Plymouth

£895,000

6 Bedroom House for sale in Plymouth

2 6 4
  • Substantial detached house with self-contained annexe & 'man cave'
  • Stunning plot with south-facing garden & views
  • Entrance & inner hallways
  • Large open plan kitchen/dining/family room
  • Separate utility & downstairs wc
  • First floor lounge
  • 5 bedrooms, 2 ensuites & large family bathroom
  • Annexe includes a bedroom, wet room & open plan living room/kitchen
  • Integral garage & plentiful off-road parking
  • Double-glazing, central heating & owned solar panels

COMING SOON, PLEASE CALL TO REGISTER YOUR INTEREST. A rare opportunity to acquire this substantial detached property, in a highly regarded position, enjoying fantastic views with a south-facing landscaped rear garden. The accommodation briefly comprises entrance & inner hallways, large open plan kitchen/dining/family room with a separate utility & downstairs wc. On the first floor there is a formal lounge with lovely views, 5 bedrooms - 2 with ensuites - & family bathroom. On the ground floor there is a self-contained annexe with a bedroom, a wet room, open plan living room & kitchen. Other features include plentiful off-road parking, an integral garage, gardens & a man cave/bar with patio. Double-glazing, central heating & owned solar panels.

Underlane, Plymstock, Pl9 9La -

Summary - A rare opportunity to acquire this substantial detached property, in a highly regarded position, enjoying fantastic views with a south-facing landscaped rear garden. The accommodation briefly comprises entrance & inner hallways, large open plan kitchen/dining/family room with a separate utility & downstairs wc. On the first floor there is a formal lounge with lovely views, 5 bedrooms - 2 with ensuites - & family bathroom. On the ground floor there is a self-contained annexe with a bedroom, a wet room, open plan living room & kitchen. Other features include plentiful off-road parking, an integral garage, gardens & a man cave/bar with patio. Double-glazing, central heating & owned solar panels.

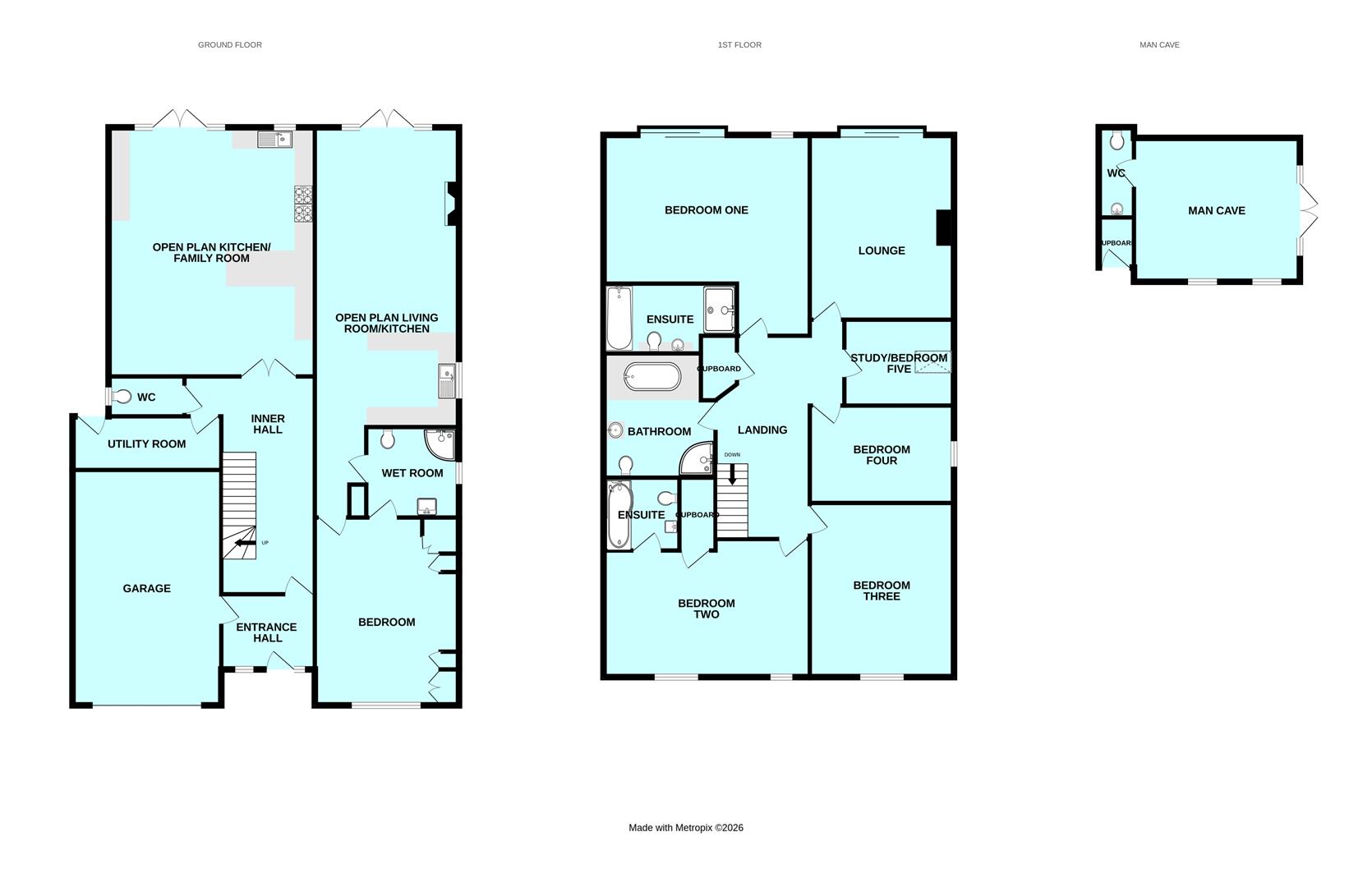
Accommodation - Front door opening into the entrance hall.

Entrance Hall - 2.64m x 2.13m (8'8 x 7') - Hardwood flooring. Integral access to the garage. Inset ceiling spotlights. Doorway opening into the annexe. Separate door opening into the inner hall.

Inner Hall - 5.97m x 2.64m (19'7 x 8'8) - Providing a spacious approach to the ground floor accommodation with a staircase rising to the first floor. Under-floor heating. Double doors opening into the kitchen/dining/family room.

Open-Plan Kitchen/Family Room - 6.83m x 5.74m (22'5 x 18'10) - A superb open-plan room to the rear of the property with windows and French doors overlooking the garden and beyond. Ample space for dining and seating including a built-in table and breakfast bar. Range of cabinets with matching fascias, work surfaces and splash-backs. Range-style cooker. Inset one-&-a-half bowl single-drainer sink unit. Built-in fridge and freezer. Integral dishwasher. Space for a wine fridge. Inset ceiling spotlights.

Utility Room - 4.11m x 1.57m (13'6 x 5'2) - Obscured glazed door to the rear leading to outside. Currently used as a salon.

Downstairs Cloakroom/Wc - 1.65m x 1.07m (5'5 x 3'6) - Comprising a wc & pedestal basin with tiled splash-back. Tiled floor. Obscured window with a fitted blind to the side elevation.

First Floor Landing - 5.74m x 2.64m (18'10 x 8'8) - Providing access to the first floor accommodation. Linen cupboard with shelving. Inset ceiling spotlights.

Lounge - 4.98m x 3.94m (16'4 x 12'11) - Sliding double-glazed doors opening onto a stainless-steel & glass Juliette balcony with fabulous views over the garden and beyond, towards Staddon Heights. Chimney breast with an inset glass-fronted fire.

Bedroom One - 5.74m x 5.38m (18'10 x 17'8) - A large master bedroom with a window to the rear. Sliding double-glazed patio doors opening onto a stainless-steel & glass Juliette balcony with lovely views over the garden and beyond. Doorway to the ensuite bathroom.

Ensuite Bathroom - 3.45m x 1.78m (11'4 x 5'10) - Comprising a bath with a tiled surround, separate double-sized tiled shower, basin and wc with concealed cistern and push-button set into a cabinet providing storage. Wall-mounted cabinets above with mirror and lighting. Velux-style window to the side elevation.

Bedroom Two - 5.74m x 3.56m (18'10 x 11'8) - 2 windows to the front elevation. Storage cupboard. Doorway opening into the ensuite bathroom.

Ensuite Bathroom - 2.18m x 1.68m (7'2 x 5'6) - Comprising bath with shower system over and glass screen, wc and basin with drawer storage. Towel rail/radiator. Illuminated, heated mirror. Velux-style window to the side elevation.

Bedroom Three - 4.70m x 3.94m (15'5 x 12'11) - Window to the front elevation.

Bedroom Four - 3.94m x 2.64m (12'11 x 8'8) - Window to the side elevation.

Study/Bedroom Five - 2.87m x 2.21m (9'5 x 7'3) - Currently used as an office with a Velux-style window to the side elevation.

Family Bathroom - 3.48m x 3.00m (11'5 x 9'10) - Comprising Jacuzzi-style double-ended bath with a tiled surround, large separate walk-in shower, wc and circular basin set onto a plinth. Chrome towel rail/radiator. Hardwood flooring. Inset ceiling spotlights. 2 Velux-style windows to the side elevation.

Annexe -

Bedroom - 5.18m x 3.94m (17' x 12'11) - Window with fitted blind to the front elevation. Range of built-in wardrobes and cupboards with matching bedside cabinets. Doorway opening into the wet room. Separate door opening into the hall.

Inner Hall - 2.87m x 1.50m (9'5 x 4'11) - Inset ceiling spotlights. Built-in cupboard. Doorway providing additional access into the wet room.

Open-Plan Living Room/Kitchen - 7.87m x 3.91m (25'10 x 12'10) - Ample space for seating and dining. To the rear French doors with windows either side, providing lovely views and leading to outside. The kitchen area includes a small breakfast bar and has matching work surfaces, tiled splash-backs and matching cabinets. Stainless-steel single-drainer sink unit. Inset hob. Microwave shelf. Space for free-standing appliances to include plumbing for washing machine. Additional window to the side elevation.

Wet Room - 2.69m x 2.26m (8'10 x 7'5) - Built-in shower, wc and basin with plinth to side and storage shelving. Chrome towel rail/radiator. Waterproof floor and panelling around the shower area. Obscured window with a fitted blind to the side elevation.

Garage - 5.84m x 3.94m (19'2 x 12'11) - Integrally accessed from the property with a remote door to the front elevation. To the rear there are storage cabinets and a work surface with a stainless-steel circular inset sink. Space for tumble dryer. Wall-mounted gas boiler. Hot water cylinder. Consumer unit. Solar panel inverter.

Man Cave - Fitted out with a bar. Timber panelling to the walls. Wall-mounted electric heater. 2 windows overlooking the garden. French doors opening onto an adjacent patio. Doorway opening into the wc, which is fitted with a basin with drawer storage, wc with concealed cistern and push-button flush. Illuminated mirror. Panelling to the walls.

Outside - To the front there is a parking area providing ample parking spaces for numerous vehicles. The rear garden, which enjoys a southerly aspect, has been landscaped. There is a paved terrace adjacent to the property, enclosed by a glass and stainless-steel balustrade. Beyond this the remaining garden is laid to lawn with a patio surround and pathway. At the bottom of the garden, adjacent to the man cave, is a further patio area. Behind the man cave is a large, insulated timber shed.

Council Tax - Plymouth City Council
Council tax band F

Property Ref: 34482093

Share:

Similar Properties

Wembury, Plymouth

6 Bedroom Detached House | £895,000

A unique & exceptional once in a lifetime opportunity to acquire The Woodlands- an extended detached property situated i...

Wembury Point, Plymouth

5 Bedroom House | £895,000

A stunning coastal property situated within this highly desirable position enjoying panoramic sea views stretching from...

Mount Batten, Plymouth

3 Bedroom Town House | £800,000

Lord Louis Crescent is an exclusive development of townhouses, occupying an exceptional position, overlooking Plymouth S...

Mount Batten, Plymouth

4 Bedroom Town House | £950,000

Lord Louis Crescent is an exclusive development of townhouses in an exceptional position overlooking Plymouth Sound & Dr...

Mount Wise, Plymouth

2 Bedroom Penthouse | Offers Over £1,000,000

Beautifully-presented penthouse apartment with arguably the best views from any property in Plymouth. The accommodation...

Wembury, Plymouth

4 Bedroom House | £1,150,000

An incredibly rare opportunity to acquire this detached home on the open market for the first time in over half a centur...

Julian Marks Estate Agents (Plymstock)

2 The Broadway, Plymstock, Plymstock, Devon, PL9 7AW

01752 401128

How much is your home worth?

Use our short form to request a valuation of your property.

Request a Valuation

Mortgage Calculator

Amount Borrowed: £
Total Amount Repayable: £
Total Monthly Payment: £
©2026 The Guild of Property Professionals. All rights reserved. Terms and Conditions | Privacy Policy | Cookie Policy | Complaints Policy | Members Login
The Guild of Property Professionals Trading Address: 121 Park Lane, London W1K 7AG. GPEA Limited. Registered in England & Wales.  Company No: 02819824.  Registered Office Address: 2 St. Stephen's Court, St. Stephen's Road, Bournemouth, Dorset, England, BH2 6LA.  VAT Registration No: 576 8795 61
Book a Property Valuation Update Cookies Preferences