Saltram Meadow, Plymouth

£300,000

3 Bedroom Semi-Detached House for sale in Plymouth

1 3 2
  • Semi-detached house
  • Lovely location within the development
  • Entrance hall with downstairs cloakroom/wc
  • Lounge
  • Kitchen/dining room
  • 3 bedrooms
  • Family bathroom & master ensuite shower room
  • Gardens & parking
  • Double-glazing & central heating
  • Solar panels

Nicely-located semi-detached house occupying a level site with 2 parking spaces to the front & a garden to the rear. The accommodation briefly comprises an entrance with downstairs cloakroom/wc, lounge, kitchen/dining room opening onto the garden, 3 bedrooms, family bathroom & master ensuite shower room. Double-glazing, central heating and solar panels.

Haycroft Mews, Saltram Meadow, Pl9 7Gq -

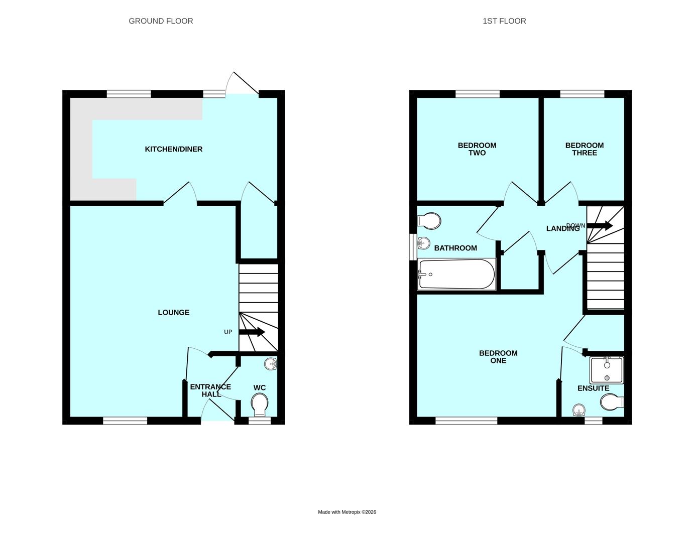
Accommodation - Front door opening into the entrance hall.

Entrance Hall - 1.35m x 1.07m (4'5 x 3'6) - Providing access to the ground floor accommodation. Laminate flooring.

Downstairs Cloakroom/Wc - 1.50m x 0.84m (4'11 x 2'9) - Fitted with a wc and a pedestal basin with a tiled splash-back. Consumer unit. Obscured window to the front elevation.

Lounge - 4.90m x 4.90m (16'1 x 16'1) - Staircase rising to the first floor. Laminate flooring. Window to the front elevation. Doorway opening into the kitchen/dining room.

Kitchen/Dining Room - 4.85m x 2.51m (15'11 x 8'3) - Ample space for dining table and chairs. Range of kitchen cabinets with matching fascias, work surfaces and tiles splash-backs. Stainless-steel one-&-a-half bowl single drainer sink unit. Built-in oven. 4-burner gas hob with a glass splash-back and a cooker hood above. Space and plumbing for a washing machine and dishwasher. Space for free-standing fridge-freezer. Under-stairs storage cupboard. Laminate flooring throughout. French doors with fitted blinds to the rear opening onto the garden. Additional window to the rear elevation.

First Floor Landing - Providing access to the first floor accommodation. Built-in cupboard. Loft hatch.

Bedroom One - 3.89m x 2.72m (12'9 x 8'11) - Situated to the front elevation. Built-in over-stairs cupboard fitted with a hanging rail and shelving. Laminate flooring. Window with fitted blinds to the front elevation. Doorway opening into the ensuite shower room.

Ensuite Shower Room - 1.65m x 1.50m (5'5 x 4'11) - Comprising an enclosed tiled shower, wc and pedestal basin. Mirrored medicine cabinet. Wall-mounted towel rail/radiator. Obscured window to the front elevation.

Bedroom Two - 2.90m x 2.54m (9'6 x 8'4) - Window with a fitted blind to the rear elevation. Laminate flooring.

Bedroom Three - 2.54m x 1.91m (8'4 x 6'3) - Window to the rear elevation. Laminate flooring.

Bathroom - 2.08m x 1.83m (6'10 x 6') - Comprising a bath with a shower system over, tiled area surround and a glass shower screen, pedestal basin and wc. Wall-mounted towel rail/radiator. Partly-tiled walls. Obscured window to the side elevation.

Outside - To the front there are 2 parking spaces, side by side. The rear garden is laid to lawn with bordering shrubs. There is also a paved patio area.

Council Tax - Plymouth City Council
Council tax band C

Agent's Note - There is an annual management charge of approximately ?202.

Property Ref: 34491341

Share:

Similar Properties

Sherford, Plymouth

3 Bedroom Terraced House | £300,000

Spend time in viewing this delightful 3-storey terraced property which enjoys good-sized accommodation over 3 levels. On...

Staddiscombe, Plymouth

3 Bedroom Semi-Detached House | £300,000

Superbly-presented semi-detached house in a lovely position with accommodation briefly comprising an entrance hall with...

Hooe, Plymouth

3 Bedroom Semi-Detached House | £300,000

A superb semi-detached house which has been extended & being sold with no onward chain. Situated in a quiet tucked away...

Oreston, Plymouth

3 Bedroom Semi-Detached House | £305,000

Older-style bay-fronted semi-detached house situated in this highly sought-after location. The property enjoys a large l...

Oreston, Plymouth

4 Bedroom Semi-Detached House | £305,750

Being sold with no onward chain is this superb older-style semi-detached house situated in the heart of the waterside vi...

Plymstock, Plymouth

4 Bedroom Town House | £310,000

Ideally-situated modern townhouse within this very popular development enjoying a desirable position close to the Plym e...

Julian Marks Estate Agents (Plymstock)

2 The Broadway, Plymstock, Plymstock, Devon, PL9 7AW

01752 401128

How much is your home worth?

Use our short form to request a valuation of your property.

Request a Valuation

Mortgage Calculator

Amount Borrowed: £
Total Amount Repayable: £
Total Monthly Payment: £
©2026 The Guild of Property Professionals. All rights reserved. Terms and Conditions | Privacy Policy | Cookie Policy | Complaints Policy | Members Login
The Guild of Property Professionals Trading Address: 121 Park Lane, London W1K 7AG. GPEA Limited. Registered in England & Wales.  Company No: 02819824.  Registered Office Address: 2 St. Stephen's Court, St. Stephen's Road, Bournemouth, Dorset, England, BH2 6LA.  VAT Registration No: 576 8795 61
Book a Property Valuation Update Cookies Preferences