Oreston, Plymouth

£305,750
SSTC
This property listing is now SSTC

4 Bedroom Semi-Detached House for sale in Plymouth

3 4 2
  • Older-style semi-detached house
  • Spacious & characterful accommodation throughout
  • Entrance hall & dining room
  • Open-plan kitchen/living room with adjacent conservatory
  • Bay-fronted sitting room currently used as a ground floor bedroom with ensuite shower room
  • 4 further bedrooms
  • Luxury fitted bathroom
  • Fabulous views towards Plymouth Hoe
  • Front & rear gardens
  • No onward chain

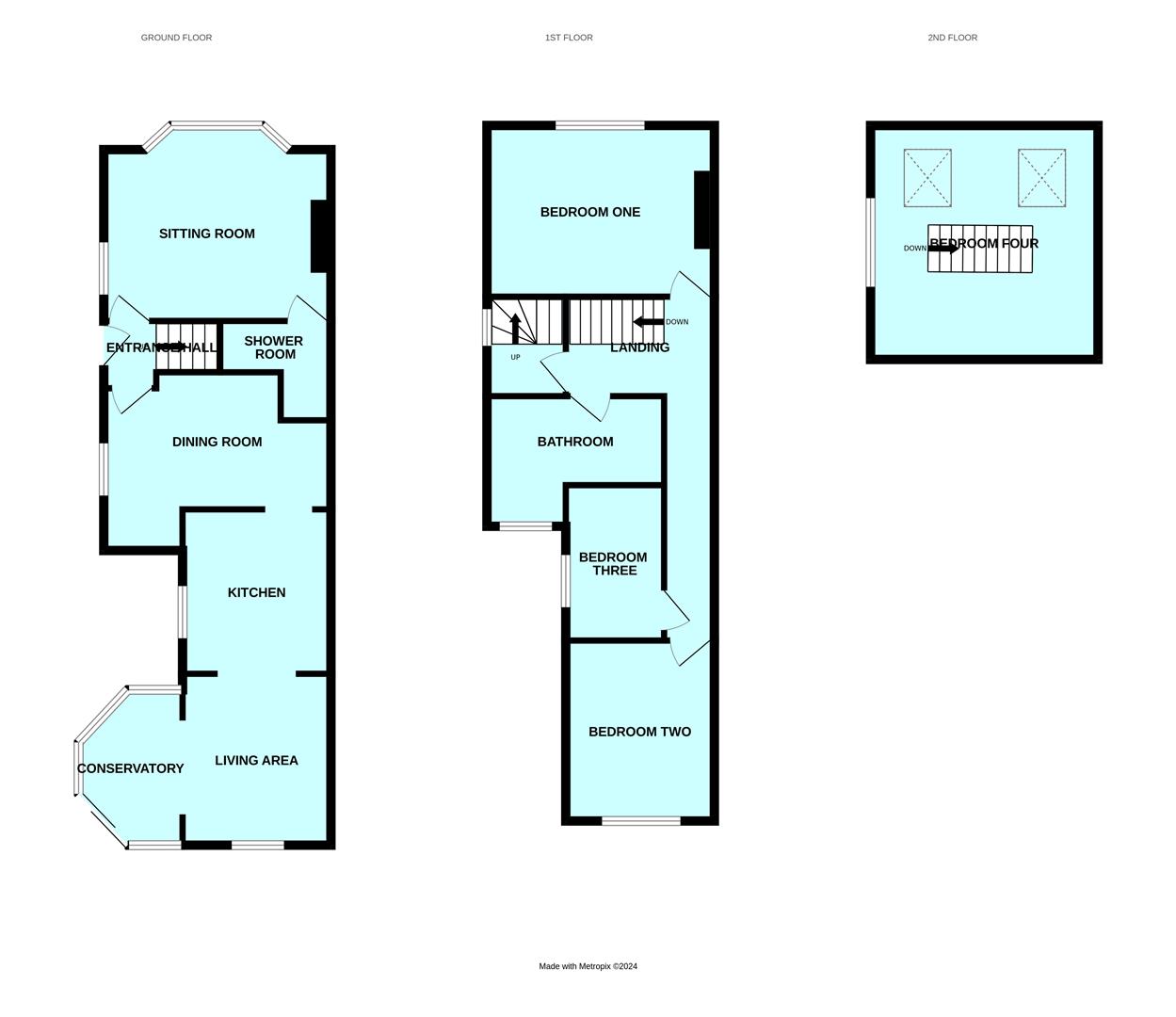
Being sold with no onward chain is this superb older-style semi-detached house situated in the heart of the waterside village of Oreston. The accommodation is characterful & comprehensive, briefly comprising an entrance hall, dining room, open-plan kitchen/living room with an adjacent conservatory & bay-fronted sitting room, currently used as a ground floor bedroom with an ensuite shower room. The upper floors host 4 further bedrooms & luxury fitted bathroom. Front & rear gardens. Lovely views of the Cattewater & the Hoe beyond as well the bonus of a live feed of the views from the top floor which can be streamed to the TV downstairs. Double-glazing & central heating.

Plymstock Road, Oreston, Pl9 7Lj -

Accommodation - Front door opening into the entrance hall.

Entrance Hall - Providing access to the ground floor accommodation. Staircase ascending to the top floor.

Dining Room - 4.34m x 3.45m at widest points (14'3 x 11'4 at wid - Dual aspect with fitted blinds. Feature exposed floorboards. Doorway opening into the living room/kitchen.

Kitchen/Living Area - 6.53m x 2.77m (21'5 x 9'1) - The kitchen area has a range of base and wall-mounted cabinets with matching fascias and work surfaces. Built-in oven. 4-burner gas hob with a stainless-steel splash-back and cooker hood above. Inset stainless-steel one-&-a-half bowl single drainer sink unit. Space for free-standing fridge-freezer. Space and plumbing for washing machine. Feature exposed floorboards. Window with fitted blind. Open-plan access through into the living area. The living area has a tiled floor. Window. Access through to the conservatory.

Conservatory - 2.03m x 2.97m (6'8 x 9'9) - Stone filed floor. Pitched polycarbonate glazed roof. Sliding door leading to the garden.

Sitting Room - 4.72m x 3.89m into bay (15'6 x 12'9 into bay) - This room is currently being used as an additional ground floor 5th bedroom. 3-sided bay window with fitted blinds. Additional window with fitted blinds. Picture rail. Chimney breast with inset pebble-style gas fire. Doorway opening into the ensuite shower room.

Ensuite Shower Room - 2.08m x 1.91m into shower (6'10 x 6'3 into shower) - Comprising an enclosed shower, wc, and pedestal basin. Bathroom cabinet. Partly-tiled walls.

First Floor Landing - Providing access to the first floor accommodation. Doorway concealing the staircase which ascends to the converted roof space. Cupboard housing the Ideal Logic gas boiler and a wall-mounted chrome radiator. Window providing views towards Plymouth Hoe.

Bedroom One - 4.72m x 3.28m (15'6 x 10'9) - A generous double bedroom. Window to the front elevation.

Bedroom Two - 3.45m x 2.82m (11'4 x 9'3) - Window to the rear elevation.

Bedroom Three - 2.59m x 1.78m (8'6 x 5'10) - Window with views towards Plymouth.

Family Bathroom - 3.40m x 2.34m (11'2 x 7'8) - Superbly-fitted bathroom comprising a bath, enclosed shower with built-in shower system with a fixed head, additional rinsing attachment and a curved glass screen, pedestal basin and wc. Bathroom cabinet with integral lighting and shelving. Contemporary radiator featuring a mirror. Fully-tiled walls. Tiled floor.

Bedroom Four - 4.52m x 4.47m (14'10 x 14'8) - Occupying the converted roof space. Central staircase. Eaves storage and shelving. Dual aspect with Velux skylights. Window providing fabulous views over the Cattewater towards Mount Batten and the Hoe beyond. There is a live video feed set up to be streamed to the TV providing the opportunity to enjoy wonderful views of Plymouth Sound.

Outside - The front garden is laid to chippings for ease of maintenance. A path leads around the side of the house through a gateway accessing the rear garden. The rear garden is paved over 2 levels with steps providing access. A timber gateway opens onto the driveway leading to Park Crescent.

Council Tax - Plymouth City Council
Council tax band D

Services - The property is connected to all the mains services: gas, electricity, water and drainage.

Property Ref: 34070671

Share:

Similar Properties

Oreston, Plymouth

3 Bedroom Semi-Detached House | £305,000

Older-style bay-fronted semi-detached house situated in this highly sought-after location. The property enjoys a large l...

Sherford, Plymouth

3 Bedroom Terraced House | £300,000

Spend time in viewing this delightful 3-storey terraced property which enjoys good-sized accommodation over 3 levels. On...

Staddiscombe, Plymouth

3 Bedroom Semi-Detached House | £300,000

Superbly-presented semi-detached house in a lovely position with accommodation briefly comprising an entrance hall with...

Plymstock, Plymouth

4 Bedroom Town House | £310,000

Ideally-situated modern townhouse within this very popular development enjoying a desirable position close to the Plym e...

Elburton, Plymouth

3 Bedroom Semi-Detached House | £310,000

An excellent opportunity to acquire this semi-detached property situated in a highly sought-after location within Elburt...

Saltram Meadow, Plymouth

4 Bedroom Terraced House | £315,000

Superbly-presented 3-storey townhouse situated in this very popular position. The accommodation briefly comprises an ent...

Julian Marks Estate Agents (Plymstock)

2 The Broadway, Plymstock, Plymstock, Devon, PL9 7AW

01752 401128

How much is your home worth?

Use our short form to request a valuation of your property.

Request a Valuation

Mortgage Calculator

Amount Borrowed: £
Total Amount Repayable: £
Total Monthly Payment: £
©2026 The Guild of Property Professionals. All rights reserved. Terms and Conditions | Privacy Policy | Cookie Policy | Complaints Policy | Members Login
The Guild of Property Professionals Trading Address: 121 Park Lane, London W1K 7AG. GPEA Limited. Registered in England & Wales.  Company No: 02819824.  Registered Office Address: 2 St. Stephen's Court, St. Stephen's Road, Bournemouth, Dorset, England, BH2 6LA.  VAT Registration No: 576 8795 61
Book a Property Valuation Update Cookies Preferences