Sherford, Plymouth

£475,000
SSTC
This property listing is now SSTC

5 Bedroom Detached House for sale in Plymouth

2 5 3
  • Detached house
  • Lovely position with views
  • Entrance hall & downstairs wc/utility
  • Lounge
  • Kitchen/dining room & extended orangery with lantern
  • 5 double bedrooms
  • Family bathroom & 2 ensuite shower rooms
  • Summer house/hot tub building (hot tub included)
  • Garage & garden
  • Double-glazing & central heating

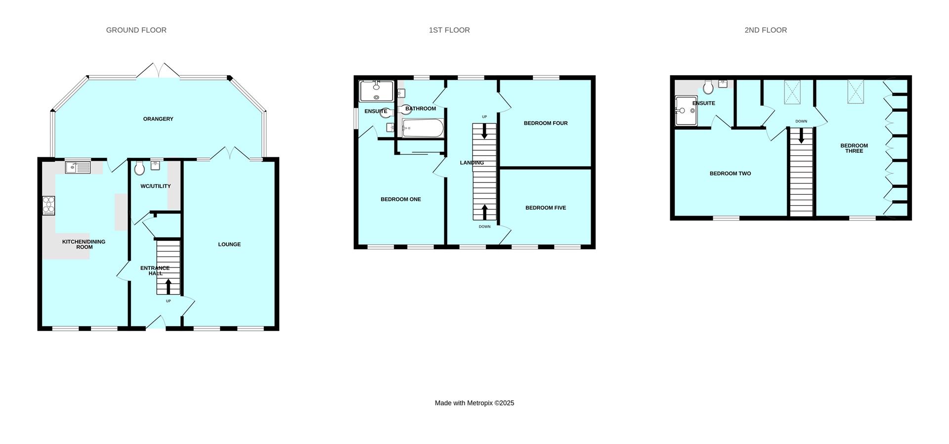
Detached house in a lovely position within Sherford with views over the park towards woodland. The accommodation is arranged over 3 levels. On the ground floor there is an entrance hall together with a lounge, kitchen/dining room plus a superb extended orangery & a downstairs wc/utility. The upper 2 floors host 5 double bedrooms, 2 of which have ensuite facilities & a family bathroom. There is also a spacious dual aspect first floor landing. Timber summer house/hot tub building (hot tub included). Garden & garage. Double-glazing & central heating.

Aquarius Drive, Sherford, Pl9 8Fh -

Accommodation - Front door opening into the entrance hall.

Entrance Hall - 4.50m x 1.96m (14'9 x 6'5) - Staircase ascending to the first floor. Under-stairs storage cupboard. Doors providing access to the ground floor accommodation.

Lounge - 6.35m x 3.56m (20'10 x 11'8) - 2 windows to the front elevation. French internal doors with windows either side opening to the orangery.

Kitchen/Dining Room - 6.38m x 3.35m (20'11 x 11') - An open-plan room with 2 windows to the front elevation. Ample space for dining table and chairs. Range of matching kitchen cabinets with work surfaces and splash-backs. Inset stainless-steel one-&-a-half bowl single drainer sink unit. Stainless-steel 5-burner gas hob with a splash-back and a cooker hood above. Built-in double oven and grill. Space for free-standing fridge-freezer. Integral dishwasher.

Orangery - 8.15m x 3.12m (26'9 x 10'3) - A superb extended room with a large lantern. Windows overlooking the garden. French doors leading to outside.

Downstairs Wc/Utility Room - 1.96m x 1.78m (6'5 x 5'10) - Fitted with a wc with a push-button flush and wall-mounted basin. Storage cupboards. Wall-mounted gas boiler concealed by a matching cabinet. Space and plumbing for washing machine. Obscured window to the rear elevation.

First Floor Landing - A generous first floor landing which is dual aspect with windows to the front and rear elevations. Views from the front. Staircase ascending to the top floor.

Bedroom One - 3.99m x 3.51m (13'1 x 11'6) - 2 windows to the front elevation with views over the park. Built-in wardrobe with sliding mirrored doors. Doorway opening into the ensuite shower room.

Ensuite Shower Room - 2.06m x 1.52m (6'9 x 5') - Comprising an enclosed double-sized tiled shower, wall-mounted basin and a wc with a push-button flush. Tiled floor. Partly-tiled walls. Inset ceiling spotlights. Obscured window to the side elevation.

Bedroom Four - 3.58m x 3.40m (11'9 x 11'2) - Window to the rear elevation.

Bedroom Five - 3.61m x 2.84m (11'10 x 9'4) - 2 windows to the front elevation with views over the park.

Family Bathroom - 2.31m x 1.91m (7'7 x 6'3) - Comprising a bath with wall-mounted controls, tiled area surround and shower system over and a glass screen, wc with push-button flush and basin. Wall-mounted towel rail/radiator. Tiled floor. Partly-tiled walls. Inset ceiling spotlights. Obscured window to the rear elevation.

Top Floor Landing - Providing access to the remaining bedrooms. Velux-style skylight to the rear elevation. Airing cupboard housing the hot water cylinder.

Bedroom Two - 4.47m x 3.25m (14'8 x 10'8) - Window to the front elevation with views. Doorway opening into the ensuite shower room.

Ensuite Shower Room - 2.41m x 1.57m (7'11 x 5'2) - Comprising an enclosed double-sized tiled shower, basin and a wc with a push-button flush. Wall-mounted towel rail/radiator. Tiled floor. Partly-tiled walls. Inset ceiling spotlights. Skylight to the rear elevation.

Bedroom Three - 5.18m x 3.63m (17' x 11'11) - Dual aspect with a window to the front elevation and a skylight to the rear. Range of built-in wardrobes.

Summer House/Hot Tub House - 5.16m x 2.64m at widest points (16'11 x 8'8 at wid - Constructed in timber. 3 skylights. Power and lighting. Feature inset LED lighting.

Garage - 5.84m x 2.97m (19'2 x 9'9) - Up-&-over style door to the front elevation. Power and lighting. Pitched roof providing some over-head storage. Rear access door.

Outside - The front garden is enclosed by railings and is laid to decking, shrubs and flowers including rose beds. There is an outside light. From the front garden there are pleasant views over the parkland towards woodland. To the rear, the garden has been landscaped with areas laid to chippings, decking and artificial grass. There is a rockery together with shrub and flower beds, a timber shed and a rear access gate.

Council Tax - Plymouth City Council
Council tax band F

Services - The property is connected to all the mains services: gas, electricity, water and drainage.

Agent's Note - There is an annual service charge of approximately �300 for the maintenance of the communal areas.

Property Ref: 11002660_34452884

Share:

Similar Properties

Elburton, Plymouth

3 Bedroom Barn Conversion | £475,000

Superbly-crafted barn conversion situated in this highly popular position close to Elburton Village. The accommodation i...

Sherford, Plymouth

5 Bedroom Townhouse | £475,000

Superbly-presented mid-terraced townhouse with spacious & comprehensive accommodation throughout. Briefly, the accommoda...

Wembury, Plymouth

3 Bedroom Detached Bungalow | £475,000

Detached bungalow set in a generous secluded plot in the heart of Wembury village, offering excellent potential with lov...

Down Thomas, Plymouth

4 Bedroom Detached House | £485,000

Wonderful detached residence located in the ever popular South Hams village of Down Thomas. It enjoys a private position...

Mount Batten, Plymouth

4 Bedroom House | £490,000

Most delightful property being sold with no onward chain located in the ever popular waterside development of Spinnaker...

Oreston, Plymouth

3 Bedroom Detached Bungalow | £495,000

A beautifully presented detached bungalow situated in a fantastic position within this highly sought after road in Orest...

Julian Marks Estate Agents (Plymstock)

2 The Broadway, Plymstock, Plymstock, Devon, PL9 7AW

01752 401128

How much is your home worth?

Use our short form to request a valuation of your property.

Request a Valuation

Mortgage Calculator

Amount Borrowed: £
Total Amount Repayable: £
Total Monthly Payment: £
©2026 The Guild of Property Professionals. All rights reserved. Terms and Conditions | Privacy Policy | Cookie Policy | Complaints Policy | Members Login
The Guild of Property Professionals Trading Address: 121 Park Lane, London W1K 7AG. GPEA Limited. Registered in England & Wales.  Company No: 02819824.  Registered Office Address: 2 St. Stephen's Court, St. Stephen's Road, Bournemouth, Dorset, England, BH2 6LA.  VAT Registration No: 576 8795 61
Book a Property Valuation Update Cookies Preferences