Sherford, Plymouth

£375,000
SSTC
This property listing is now SSTC

4 Bedroom Semi-Detached House for sale in Plymouth

2 4 3
  • Semi-detached house
  • Superbly-presented accommodation throughout
  • Entrance hall with downstairs cloakroom/wc
  • Large open-plan kitchen/dining/family room with a high ceiling
  • Additional first floor lounge
  • 4 bedrooms
  • Family bathroom, family shower room & ensuite shower room
  • Separate utility
  • Garage, parking & landscaped gardens
  • Double-glazing & central heating

Superbly-presented 3-storey semi-detached house with spacious accommodation. Briefly, the accommodation comprises an entrance hall with downstairs cloakroom/wc, open-plan kitchen/dining/family room with feature high ceilings, separate utility, first floor lounge, 4 bedrooms, family bathroom, family shower room & ensuite shower room to bedroom one. Landscaped gardens. Garage & parking. Double-glazing & central heating.

Aquila Drive, Sherford, Pl9 8Gw -

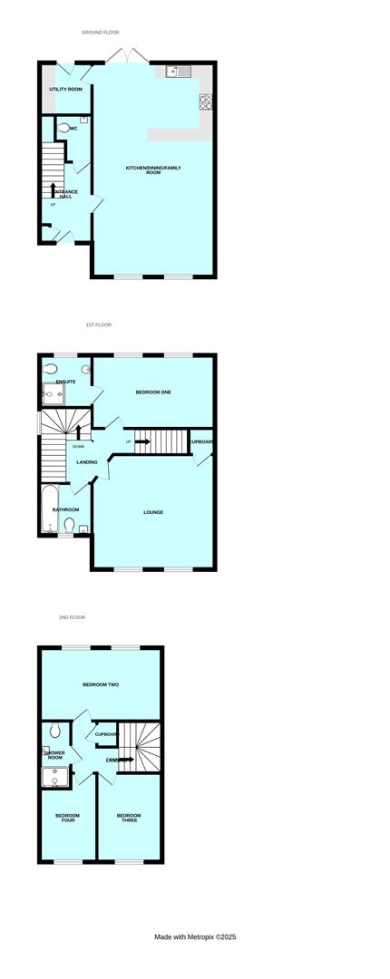
Accommodation - Front door opening into the entrance hall.

Entrance Hall. - 2.64m x 2.08m (8'8 x 6'10) - Providing access to the ground floor accommodation. Staircase ascending to the first floor. Cupboard housing the electric meter and consumer unit.

Open-Plan Kitchen/Dining/Family Room - 8.23m x 4.72m (27' x 15'6) - A superb feature ground floor room running from front to rear with feature high ceilings. 2 windows to the front elevation and French doors to the rear. Ample space for seating and dining. Kitchen cabinets with matching fascias and work surfaces. Breakfast bar. Stainless-steel one-&-a-half bowl single drainer sink unit. Built-in double oven and grill. Stainless-steel 4-burner gas hob with a stainless-steel splash-back and cooker hood. Integral fridge and freezer. Integral dishwasher.

Utility Room - 2.08m x 1.80m (6'10 x 5'11) - Matching base and wall-mounted cabinets and work surface. Space for 2 appliances. Shelving. Wall-mounted gas boiler concealed by a matching cabinet. Feature high ceiling. Obscured glazed door leading to outside.

Downstairs Cloakroom/Wc - Comprising a wc and a pedestal basin.

First Floor Landing - Providing access to the first floor accommodation. Staircase continuing to the top floor.

Lounge - 4.72m x 4.17m (15'6 x 13'8) - A spacious first floor sitting room with 2 windows to the front elevation. Under-stairs storage cupboard.

Bedroom One - 4.70m x 2.79m (15'5 x 9'2) - 2 windows to the rear elevation. Doorway opening into the ensuite shower room.

Ensuite Shower Room - 1.88m x 1.78m (6'2 x 5'10) - Comprising a shower, wall-mounted basin and wc with a concealed cistern and a push-button flush. Chrome towel rail/radiator. Fully-tiled walls. Obscured window to the rear elevation.

Family Bathroom - 2.08m x 1.75m (6'10 x 5'9) - Comprising a bath with a tiled area surround, shower system over and a glass shower screen, wall-mounted basin and wc with a concealed cistern and a push-button flush. Wall-mounted towel rail/radiator. Partly-tiled walls. Window to the front elevation.

Top Floor Landing - Providing access to the top floor accommodation. Loft hatch. Cupboard housing the hot water cylinder.

Bedroom Two - 4.72m x 2.79m (15'6 x 9'2) - 2 windows to the rear elevation.

Bedroom Three - 3.30m x 2.41m (10'10 x 7'11) - Window to the front elevation.

Bedroom Four - 2.34m x 2.21m (7'8 x 7'3) - Window to the front elevation.

Family Shower Room - 2.57m x 1.14m (8'5 x 3'9) - Comprising a large walk-in shower with bi-folding glass door, wall-mounted basin and wc with a concealed cistern and a push-button flush. Wall-mounted chrome towel rail/radiator. Fully-tiled walls.

Garage - 6.10m x 3.10m (20' x 10'2) - Up-&-over door to the front elevation.

Outside - To the front, the property is set back from the road with a small garden laid to chippings and shrubs. The rear garden has been landscaped with areas laid to paving, composite decking and artificial grass. A rear gate leads to a pathway providing access to the garage and parking. Outside power. Outside tap.

Council Tax - South Hams District Council
Council tax band E

Services - The property is connected to all the mains services: gas, electricity, water and drainage.

Property Ref: 11002660_34304654

Share:

Similar Properties

Saltram Meadow, Plymouth

4 Bedroom Semi-Detached House | £375,000

Superbly-presented semi-detached house with accommodation arranged over 3 storeys. Briefly, the accommodation comprises...

Down Thomas, Plymouth

2 Bedroom Semi-Detached House | £375,000

Superbly-situated individual property in a lovely location with generous gardens to 3 sides including a garage & carport...

Turnchapel, Plymouth

2 Bedroom Detached Bungalow | Guide Price £375,000

Superbly-positioned link detached bungalow situated within this highly sought-after location close to Turnchapel and Mou...

Hooe, Plymouth

4 Bedroom Detached House | £380,000

Spend time in viewing this lovely detached family home which enjoys spacious accommodation. The property is located in a...

Sherford, Plymouth

4 Bedroom Semi-Detached House | Guide Price £385,000

A superbly presented semi-detached house situated in this popular position. The accommodation briefly comprises of an en...

Down Thomas, Plymouth

4 Bedroom Semi-Detached House | £385,000

Superb cottage-style semi-detached property set within the heart of the South Hams village of Down Thomas. A fantastic l...

Julian Marks Estate Agents (Plymstock)

2 The Broadway, Plymstock, Plymstock, Devon, PL9 7AW

01752 401128

How much is your home worth?

Use our short form to request a valuation of your property.

Request a Valuation

Mortgage Calculator

Amount Borrowed: £
Total Amount Repayable: £
Total Monthly Payment: £
©2026 The Guild of Property Professionals. All rights reserved. Terms and Conditions | Privacy Policy | Cookie Policy | Complaints Policy | Members Login
The Guild of Property Professionals Trading Address: 121 Park Lane, London W1K 7AG. GPEA Limited. Registered in England & Wales.  Company No: 02819824.  Registered Office Address: 2 St. Stephen's Court, St. Stephen's Road, Bournemouth, Dorset, England, BH2 6LA.  VAT Registration No: 576 8795 61
Book a Property Valuation Update Cookies Preferences