De Lacy Way, Pontefract

Asking Price
£455,000

4 Bedroom Detached House for sale in Pontefract

1 4 1
  • Four Bedroom Detached
  • £12,750 Stamp Duty Paid Part Exchange Available
  • 25ft Open Plan Kitchen/Diner with French doors
  • Your Choice of Symphony Kitchen Units
  • Bosch Integrated Appliances
  • Separate Utility Room
  • Four Spacious Double Bedrooms
  • Private Master Bedroom with En-Suite
  • Detached Garage & Driveway Parking
  • Close to Local Amenities and Public Transport

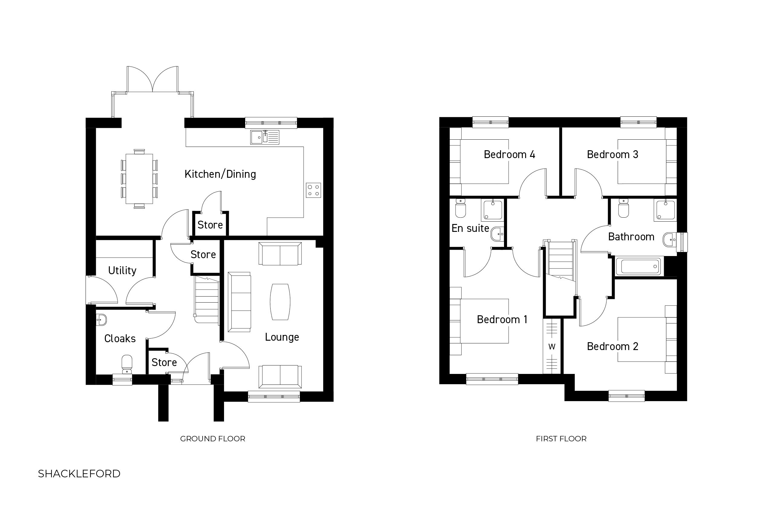
The Shackleford is a stunning four-bedroom detached home designed for those who want both space and style. Perfectly suited to growing families or those who love to entertain, this home offers an exceptional layout and a range of premium finishes.

At the heart of the home is the show stopping 25ft open-plan kitchen and dining area.

This light filled space is perfect for everyday family living and special occasions alike. Choose from a range of Symphony kitchen units to personalise your kitchen to your taste, complete with high quality Bosch appliances. French doors open onto the generous rear garden, seamlessly blending indoor and outdoor living. A separate utility room keeps everything neat and practical, while the spacious lounge offers a cosy retreat for relaxing evenings.
Upstairs, you’ll find four generously sized double bedrooms, providing comfort and flexibility for the whole family.

The highlight is the private master suite, complete with an elegant En-Suite bathroom. With Hammonds fitted wardrobes* available as part of your choice, you can create a truly bespoke bedroom space. The family bathroom serves the additional bedrooms, designed with both practicality and style in mind.

Outside, the home continues to impress with a detached garage and private driveway, offering both security and convenience. Energy Performance Rating TBC: Council Tax Band TBC. For further information regarding this property please contact Pontefract Estate Agents, Enfields.

Important Information

  • This is a Freehold property.

Property Ref: 00006507

Share:

Similar Properties

Ninevah Cottages, Badsworth

3 Bedroom Terraced House | Asking Price £450,000

Nestled in the heart of Badsworth, this charming home has been lovingly updated to an exceptional standard, blending tra...

De Lacy Way, Pontefract

4 Bedroom Detached House | Asking Price £440,000

The Shelford is an impressive four-bedroom detached home, combining modern open-plan living with practical features and...

Cavendish Avenue, Pontefract

4 Bedroom Detached House | Offers in excess of £375,000

Enfields are delighted to offer for sale this impressive four bedroom, detached property situated within a popular resid...

Field View, Byram

6 Bedroom Detached House | Offers in excess of £500,000

Enfields are delighted to offer for sale this impressive six bedroom, detached property situated within the popular semi...

Bracken Hill, Ackworth

4 Bedroom Detached House | Asking Price £500,000

Enfields are delighted to offer for sale this modern and expansive four/five bedroom detached property situated within a...

Lowfield Road, Hemsworth

3 Bedroom Semi-Detached House | Asking Price £500,000

Enfields are delighted to offer for sale Bullenshaw Villas, located within the popular town of Hemsworth. Surrounded by...

Enfields Pontefract (Pontefract)

Pontefract, West Yorkshire, WF8 1DB

01977 233124

How much is your home worth?

Use our short form to request a valuation of your property.

Request a Valuation

Mortgage Calculator

Amount Borrowed: £
Total Amount Repayable: £
Total Monthly Payment: £
©2026 The Guild of Property Professionals. All rights reserved. Terms and Conditions | Privacy Policy | Cookie Policy | Complaints Policy | Members Login
The Guild of Property Professionals Trading Address: 121 Park Lane, London W1K 7AG. GPEA Limited. Registered in England & Wales.  Company No: 02819824.  Registered Office Address: 2 St. Stephen's Court, St. Stephen's Road, Bournemouth, Dorset, England, BH2 6LA.  VAT Registration No: 576 8795 61
Book a Property Valuation Update Cookies Preferences