2 Bedroom Semi-Detached Bungalow for sale in Port Isaac

1 2 1
  • Parking for upto 4 vehicles
  • Low Maintenance Dormer Bungalow
  • Electric Boiler Central Heating with Solar Thermal and Solar Voltaic panels
  • Good Condition and Location
  • Sea Views

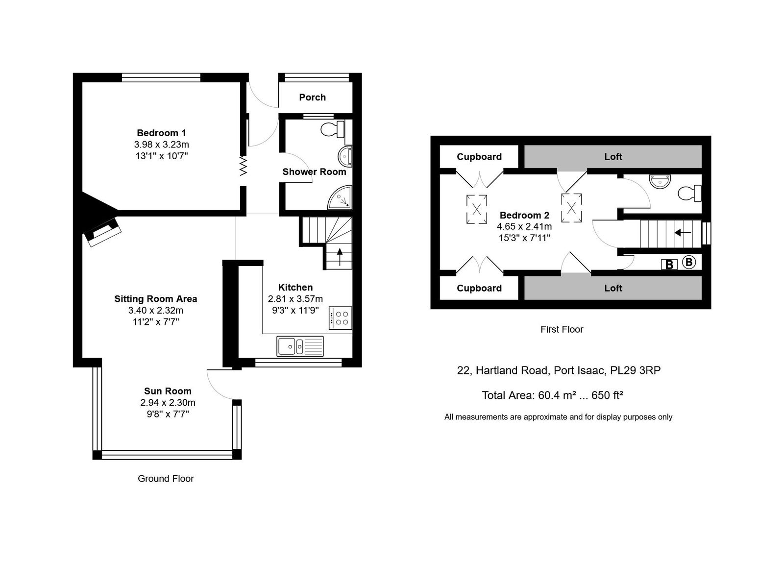
22 Hartland road is a much loved 2 bedroom bungalow at the top of Tintagel Terrace, in the historic Fishing village of Port Isaac. Unusually for Port Isaac the property has driveway parking for up to 4 cars. Leasehold 95 years remaining, Council Tax Band A, £10 a year Ground Rent. EPC band E


 


The bungalow has a path from the driveway to the front door which opens into a porch. Then a secondary door brings you into the actual bungalow. Here to the right is a double bedroom . This room looks down to the attractive properties opposite and there are sea glimpses between them.
To the left of the hallway is a large shower room with walk in shower, vanity unit ,wc and two towel rails. To the rear of the property is a kitchen dining room which has white units under a black granite work top and a tiled floor. There is an external door out to the side of the property. The kitchen comes with a range cooker which has a gas hob and electric oven. There are spaces for a washing machine, tumble dryer and room for a fridge and freezer under the open staircase. Also to the rear is the sitting room which has been extended into the rear garden with a sunroom and this has a door out to the rear courtyard garden which has a storage shed to the rear. While the property was originally one bedroom it now has a staircase up to a door to an attic bedroom with its own little ensuite wc and hand basin and two velux windows which have a great sea view, if you are tall enough! There are three built in wardrobes in the eaves and the pressurised hot water cylinder, electric boiler and solar panel controls are situated here. The electric boiler runs the central heating and the hot water is boosted by the solar panel. The photo voltaic panels bring in an income as well. 
The property would make an ideal retirement home and was originally owned by the local authority so is not considered suitable for holiday letting. 


Port Isaac is the perfect location to enjoy the North Coast of Cornwall with easy access out onto the coastal road to explore nearby Polzeath for surfing or Rock for sailing water sports and also the world renowned St Enodoc Golf Club.
The neighbouring property has a pedestrian right of way over the driveway to access their property.
The property is vacant with no onward chain and Probate has been granted.

Important Information

  • This is a Leasehold property.
  • This Council Tax band for this property is: A

Property Ref: 3607_1140482

Share:

Similar Properties

Rock

1 Bedroom Apartment | £250,000

Bryher is a top floor apartment in a block of five situated off Rock Road in Rock on the North Coast of Cornwall. The pr...

Pityme, St Minver

2 Bedroom Terraced House | £219,375

Set at the top of Rock Village on the North Coast is this 2 bedroom mid terraced Sec.106 Affordable Home with parking an...

Windmill Courtyard, St. Minver, Wadebridge, PL27 6RT

2 Bedroom Terraced Bungalow | £325,000

Kellan is a lovely 2 bedroom 2 bathroom freehold bungalow with panoramic outlook over open countryside towards the coast...

Trelights, Port Isaac

3 Bedroom Bungalow | Offers in region of £400,000

No. 4 Furze Park is a detached 3 bedroom bungalow with a large garden on 3 sides, situated in a quiet cul-de-sac in the...

St Minver

3 Bedroom Semi-Detached House | £425,000

Large 3 bedroom semi detached house in St Minver village with open views towards Bodmin moor from the front and Polzeath...

Cole Rayment & White (Rock)

Rock Road, Rock, Cornwall, PL27 6NW

01208 863322

How much is your home worth?

Use our short form to request a valuation of your property.

Request a Valuation

Mortgage Calculator

Amount Borrowed: £
Total Amount Repayable: £
Total Monthly Payment: £
©2025 The Guild of Property Professionals. All rights reserved. Terms and Conditions | Privacy Policy | Cookie Policy | Complaints Policy | Members Login
The Guild of Property Professionals Trading Address: 121 Park Lane, London W1K 7AG. GPEA Limited. Registered in England & Wales.  Company No: 02819824.  Registered Office Address: 2 St. Stephen's Court, St. Stephen's Road, Bournemouth, Dorset, England, BH2 6LA.  VAT Registration No: 576 8795 61
Book a Property Valuation Update Cookies Preferences