Adames Road, Portsmouth

Offers Over
£150,000
SSTC
This property listing is now SSTC

2 Bedroom Flat for sale in Portsmouth

1 2 1
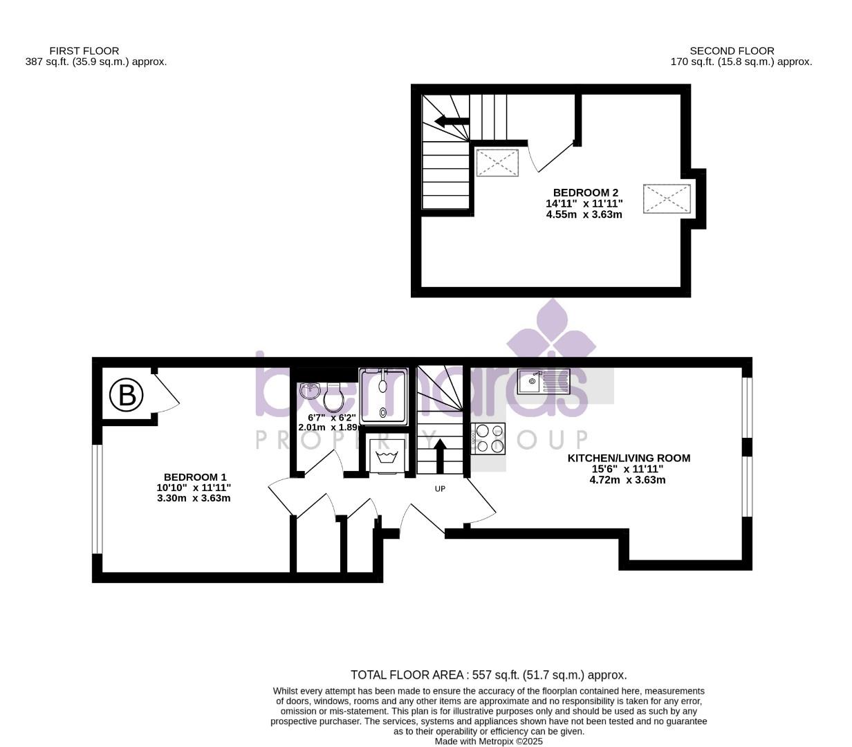
  • FIRST FLOOR FLAT
  • TWO BEDROOMS
  • MODERN FITTED KITCHEN
  • OPEN PLANNED KITCHEN/LIVING
  • NO ONWARD CHAIN
  • GREAT FIRST TIME PURCHASE
  • IDEAL BTL INVESTMENT
  • 96 YEAR LEASE REMAINING

We're delighted to present this spacious two-bedroom apartment, arranged over two floors and ideally located on Adames Road in Fratton.

The property is accessed on the first floor and offers a bright open-plan kitchen and living area, shower room, and the first double bedroom. Upstairs, you'll find the second bedroom, providing a flexible space perfect for guests, a home office, or additional storage.

Additional benefits include double glazing, central heating, and the property is offered with no onward chain.

Perfectly positioned within walking distance of local schools, parks, shops, and excellent transport links, this home is an ideal choice for first-time buyers, downsizers, or investors seeking a strong buy-to-let opportunity.

To arrange a viewing, please contact our Portsmouth branch today on 02392 728090.

Communal Entrance -

Flat Entrance -

Kitchen/Living Room - 4.72 x 3.63 (15'5" x 11'10") -

Bathroom - 2.01 x 1.89 (6'7" x 6'2") -

Bedroom One - 3.63 x 3.30 (11'10" x 10'9") -

Bedroom Two - 4.55 x 3.63 (14'11" x 11'10") -

Leasehold Information. - Lease Length: 96 Years remaining
Ground Rent: £200 PA
Service Charge: £1,539.75

Please note Bernard's Estate agents have not checked or verified the leases, the information provided is what we have been provided with from the sellers. Your solicitor will check all of the above during the conveyancing process.

Letting Information- Portsmouth - If you are considering buying this property for buy to let purposes, we would expect to achieve £1050 PCM. This would give you 8.4% gross return based on the current asking price. If you would like any further information about lettings, what services our in house teams can offer please call your local office on 02392 696811 or email portsmouth@bernardsestates.co.uk

Mortgage Advisor - We offer financial services here at Bernards. If you would like to review your current Agreement In Principle or are yet to source a lender, we have a number of experienced Financial Advisors who will be happy to help.

Conveyancing - Choosing the right conveyancing solicitor is extremely important to ensure that you obtain an effective yet cost-efficient solution. The lure of supposedly cheaper on-line "conveyancing warehouse" style services can be very difficult to ignore but this is a route fraught with problems that we strongly urge you to avoid. A local, established and experienced conveyance will safeguard your interests and get the job done in a timely manner. Bernards can recommend several local firms of solicitors who have the necessary local knowledge and will provide a personable service. Please ask a member of our sales team for further details.

Offer Check Procedure - If you are considering making an offer for this or any other property Bernards Estate Agents are marketing, please make contact with your local office so we can verify/check your financial/Mortgage situation.

Portsmouth Council Tax - The local authority is Portsmouth City Council.

BAND : TBC

Anti-Money Laundering - Bernards Estate agents have a legal obligation to complete anti-money laundering checks. The AML check should be completed in branch. Please call the office to book an AML check if you would like to make an offer on this property. Please note the AML check includes taking a copy of the two forms of identification for each purchaser. A proof of address and proof of name document is required. Please note we cannot put forward an offer without the AML check being completed

Property Ref: 901247_34171483

Share:

Similar Properties

Chichester Road, Portsmouth

1 Bedroom Flat | Guide Price £150,000

Nestled on Chichester Road in the vibrant city of Portsmouth, this charming one-bedroom flat offers a delightful living...

St. Marys Road, Portsmouth

1 Bedroom Flat | Offers in excess of £140,000

Nestled on St. Marys Road in the vibrant city of Portsmouth, this charming one-bedroom flat offers a delightful blend of...

Honeywood Close, Portsmouth

1 Bedroom Flat | Guide Price £135,000

Nestled in the desirable area of Honeywood Close, this first-floor flat offers a perfect blend of comfort and convenienc...

Northern Parade, Portsmouth

2 Bedroom Flat | £160,000

Nestled in the sought-after Northern Parade, this two bedroom, first-floor flat is ideal for first-time buyers, small fa...

Bettesworth Road, Portsmouth

2 Bedroom House | £165,000

Sold via Secure Sale online bidding. Terms & Conditions apply. Starting Bid £165,000Nestled on the charming Bettesworth...

Northern Parade, Portsmouth

2 Bedroom Flat | Guide Price £170,000

***VIEWS OVER ALEXANDRA PARK...TWO BEDROOM TOP FLOOR FLAT***We are delighted to introduce to the market, this charming t...

Bernards Estate and Lettings Agents (Portsmouth)

129 London Road, North End, Portsmouth, PO2 9AA

02392 728090

How much is your home worth?

Use our short form to request a valuation of your property.

Request a Valuation

Mortgage Calculator

Amount Borrowed: £
Total Amount Repayable: £
Total Monthly Payment: £
©2025 The Guild of Property Professionals. All rights reserved. Terms and Conditions | Privacy Policy | Cookie Policy | Complaints Policy | Members Login
The Guild of Property Professionals Trading Address: 121 Park Lane, London W1K 7AG. GPEA Limited. Registered in England & Wales.  Company No: 02819824.  Registered Office Address: 2 St. Stephen's Court, St. Stephen's Road, Bournemouth, Dorset, England, BH2 6LA.  VAT Registration No: 576 8795 61
Book a Property Valuation Update Cookies Preferences