Havant Road, Portsmouth

Guide Price
£250,000
SSTC
This property listing is now SSTC

3 Bedroom Terraced House for sale in Portsmouth

2 3 1
  • FULLY RENOVATED
  • THREE BEDROOMS
  • MODERN FITTED KITCHEN
  • FOUR PIECE BATHROOM
  • TWO RECEPTION ROOMS
  • WEST FACING GARDEN
  • PERFECT FIRST HOME
  • IDEAL INVESTMENT
  • NO FORWARD CHAIN
  • NEARBY LOCAL AMENITIES

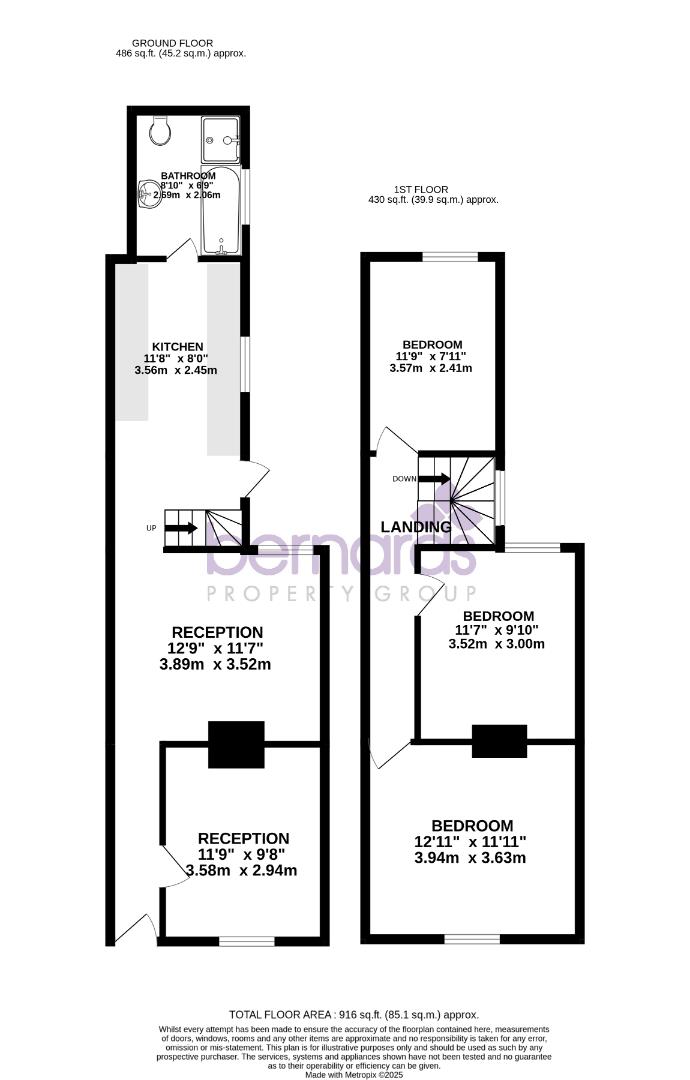
Located in Havant Road, this lovely terraced house presents an excellent opportunity for first-time buyers. Spanning 916 square feet, the property boasts three well-proportioned bedrooms, making it ideal for small families or those seeking extra space.

Upon entering, you are greeted by two reception rooms that offer versatility for both relaxation and entertaining. The modern kitchen is a highlight of the home, featuring contemporary fittings that cater to all your needs. The adjoining four piece bathroom ensures convenience and comfort for all residents.

One of the standout features of this property is the west-facing garden, which provides a delightful outdoor space to enjoy the afternoon sun.

This terraced house is not only a lovely home but also a fantastic investment in a sought-after area. With its blend of modern amenities and charming character, it is perfectly suited for those looking to step onto the property ladder. Don't miss the chance to make this delightful house your new home.

*new turf & internal snagging to follow*

Lounge - 3.58 x 2.94 (11'8" x 9'7") -

Dining Room - 3.89 x 3.52 (12'9" x 11'6") -

Kitchen - 3.56 x 2.45 (11'8" x 8'0") -

Bathroom - 2.69 x 2.06 (8'9" x 6'9") -

Bedroom One - 3.94 x 3.63 (12'11" x 11'10") -

Bedroom Two - 3.52 x 3 (11'6" x 9'10") -

Bedroom Three - 3.57 x 2.41 (11'8" x 7'10") -

Portsmouth Council Tax - The local authority is Portsmouth City Council.

BAND : B £1,696.27

Mortgage Advisor - We offer financial services here at Bernards. If you would like to review your current Agreement In Principle or are yet to source a lender, we have a number of experienced Financial Advisors who will be happy to help.

Offer Check Procedure - If you are considering making an offer for this or any other property Bernards Estate Agents are marketing, please make contact with your local office so we can verify/check your financial/Mortgage situation.

Conveyancing - Choosing the right conveyancing solicitor is extremely important to ensure that you obtain an effective yet cost-efficient solution. The lure of supposedly cheaper on-line "conveyancing warehouse" style services can be very difficult to ignore but this is a route fraught with problems that we strongly urge you to avoid. A local, established and experienced conveyance will safeguard your interests and get the job done in a timely manner. Bernards can recommend several local firms of solicitors who have the necessary local knowledge and will provide a personable service. Please ask a member of our sales team for further details.

Anti-Money Laundering - Bernards Estate agents have a legal obligation to complete anti-money laundering checks. The AML check should be completed in branch. Please call the office to book an AML check if you would like to make an offer on this property. Please note the AML check includes taking a copy of the two forms of identification for each purchaser. A proof of address and proof of name document is required. Please note we cannot put forward an offer without the AML check being completed

Property Ref: 901247_34026926

Share:

Similar Properties

Tokio Road, Portsmouth

2 Bedroom Terraced House | Offers in excess of £250,000

Situated in Tokio Road, Copnor, this lovely terraced house is just a short walk from local amenities, shops, and schools...

Copnor Road, Portsmouth

3 Bedroom House | Offers in excess of £250,000

Located on Copnor Road in Portsmouth, this house offers a delightful blend of modern living and comfort. With three spac...

Farlington Road, Portsmouth

3 Bedroom Terraced House | Offers Over £250,000

Nestled on Farlington Road in the vibrant city of Portsmouth, this charming terraced house presents an excellent opportu...

Tangier Road, Portsmouth

3 Bedroom Terraced House | £260,000

***THREE DOUBLE BEDROOMS...NO FORWARD CHAIN***We are are thrilled to welcome to the market this three bedroom property l...

Paulsgrove Road, Portsmouth

3 Bedroom House | Offers Over £260,000

Nestled on the desirable Paulsgrove Road in Portsmouth, this charming house presents an excellent opportunity for both f...

Belgravia Road, Portsmouth

3 Bedroom Terraced House | Guide Price £260,000

Located in Belgravia Road, this neutrally decorated mid-terrace house presents an excellent opportunity for both familie...

Bernards Estate and Lettings Agents (Portsmouth)

129 London Road, North End, Portsmouth, PO2 9AA

02392 728090

How much is your home worth?

Use our short form to request a valuation of your property.

Request a Valuation

Mortgage Calculator

Amount Borrowed: £
Total Amount Repayable: £
Total Monthly Payment: £
©2025 The Guild of Property Professionals. All rights reserved. Terms and Conditions | Privacy Policy | Cookie Policy | Complaints Policy | Members Login
The Guild of Property Professionals Trading Address: 121 Park Lane, London W1K 7AG. GPEA Limited. Registered in England & Wales.  Company No: 02819824.  Registered Office Address: 2 St. Stephen's Court, St. Stephen's Road, Bournemouth, Dorset, England, BH2 6LA.  VAT Registration No: 576 8795 61
Book a Property Valuation Update Cookies Preferences