Raymond Court, Potters Bar

Asking Price
£360,000

2 Bedroom Ground Floor Flat for sale in Potters Bar

1 2 1
  • Ground Floor
  • Two Bedrooms
  • Views over the gardens
  • Share of Freehold
  • Lease is 999 years from Oct 2009
  • Garage en bloc
  • Communal gated gardens
  • Gas central heating and double glazed
  • Ideal fo a starter home or downsizing
  • Within easy acess for the High Street

This spacious and bright Share of Freehold two-bedroom ground floor apartment enjoying a garden view is situated in this popular block and located within walking distance of the High Street yet pleasantly situated in its own grounds with pedestrian gates to the front and the rear. The property benefits from large spacious hallway, with storage space, double glazed windows, gas central heating and garage en-bloc. Early Viewings recommended. Approach From St Francis Close gated entrance, path leading to the block, communal entrance door on the right side with entry phone system, stairs leading to 1st & 2nd floor landings. Door to property located on the ground floor.



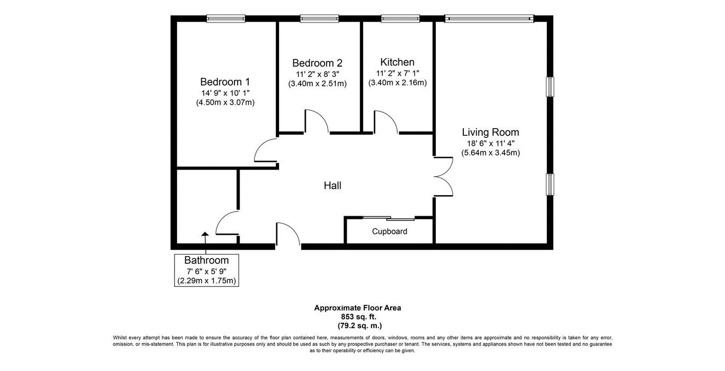
Property Entrance Hall

Very spacious hallway, covered radiator, power points, wood effect laminate flooring, Storage cupboards, door leading to all rooms.



Kitchen 11' 1'' x 7' 1'' (3.38m x 2.16m) approx Double glazed windows to the rear. Range of white fitted wall, base and draw units. Black granite effect work surfaces, White ceramic sink unit with mixer tap, ceramic hob with oven under and pull-out extractor above. Plumbed space for a dishwasher and washing machine, space for a tall fridge freezer, tiled splash backs, power points. Wall mounted Vaillant combination boiler.



Lounge/Diner 18' 6'' x 11' 4'' (5.63m x 3.45m) approx Double glazed windows to the side and floor to ceiling window to the rear overlooking the gardens. Coved ceiling, wood effect laminated flooring. T.V; power points, wall lights.



Bedroom 1 14' 9'' x 10' 1'' (4.49m x 3.07m) including the wardrobes approx Double glazed window to the rear, fitted sliding door wardrobes to one wall and corner wardrobe. Matching fitted draw unit with a central dressing table, mirror and headboard. Radiator, power points and coved ceiling.



Bedroom 2 11' 2'' x 8' 3'' (3.40m x 2.51m) approx Double glazed window overlooking the garden. Radiator, power points.



Bathroom 7' 8'' x 5' 9'' (2.34m x 1.75m) approx Double glazed frosted window to the side. Fully tiled walls and floor, panelled bath with mixer tap including wall mounted shower over and screen. Vanity hand basin with mono bloc tap and storage under. Mirror front cabinet above, low level W.C;



Communal Garden Well maintained communal gardens mainly laid to lawn with mature trees, shrubs and flower beds. Range of seating areas/benches, secluded drying area. Secure Pedestrian gated access to Southgate Road and gated from St Francis Close. En- Bloc Garage Situated at the end of St Francis Close,



Garage en-bloc with up and over door



Ground Rent: Peppercorn Service Charges: £1545.18 pa Buildings Insurance: Inclusive Lease length: 983 remaining 999 from 2009



Material Information



Council Tax Band: D Hertsmere



Parking arrangements: Garage en bloc on street parking

Mains Gas: Yes

Mains Electric: Yes

Mains Water/drainage: Yes

Heating Type: Gas central heating

Surface Water Flood Risk: Low Risk Rivers & Seas Flood Risk: Very Low Risk (source: )

Broadband Availability: Standard, Superfast & Ultrafast (Source: Ofcom & BT Broadband Availability Checker)

Mobile Availability: EE-O2 -Three- Good outdoor and in-home- Vodafone - Good outdoor, variable in-home (Source: Ofcom)



If you wish to opt out from receiving any marketing material/property details from Hobdays Estate Agents; Please telephone us on or email to advise us of your preferences. If you wish to view our privacy statement, please visit From June 2017, In line with The Money Laundering Regulations 2007‘ we are legally obliged to take formal identification from any person(s) wishing to purchase a property through Hobdays. We will require one form of photographic identification (passport, photocard driving licence, national identity card, firearms certificate, Northern Ireland identity card issued by the electoral office) together with a recent document identifying your postal address (utility bill, bank statement, mortgage statement, council tax letter) Alternatively, you can submit your identification to your solicitor for verification but they will need to confirm to us in writing that the identity checks have been carried out & provide us with certified copies. Viewing strictly by appointment via Hobdays Telephone; Unauthorised uses of the details, pictures or floor plans regarding this property is strictly forbidden & remain the property of Hobdays Estates Limited Whilst all reasonable care has been taken in the preparation of these details, their accuracy is not guaranteed; All measurements are approximate, and the descriptions are for general purposes only (A laser measure has been used); None of the statements contained in these particulars are to be relied upon as statements or representations of fact. Hobdays has not tested any apparatus, equipment, fixtures, fittings or services relating to this property and therefore cannot verify that they are in working order or fit for the purpose; Prospective purchasers are strongly advised to satisfy themselves, by inspection or otherwise, as to the correctness of any statement herein and to take appropriate precautions to check anything which may be critical to their interest in the property. All pictures are taken with the aid of a wide angled lens. Items shown are not necessarily included. *Tenure of the property has not been checked; therefore this need to be verified by the buyer's solicitor.

Approach

From St Francis Close gated entrance, path leading to the block, communal entrance door on the right side with entry phone system, stairs leading to 1st & 2nd floor landings. Door to property located on the ground floor.

Property Entrance Hall

Very spacious hallway, covered radiator, power points, wood effect laminate flooring, Storage cupboards, door leading to all rooms.

Kitchen
11' 1'' x 7' 1'' (3.38m x 2.16m)
Double glazed windows to the rear. Range of white fitted wall, base and draw units. Black granite effect work surfaces, White ceramic sink unit with mixer tap, ceramic hob with oven under and pull-out extractor above. Plumbed space for a dishwasher and washing machine, space for a tall fridge freezer, tiled splash backs, power points. Wall mounted Vaillant combination boiler.

Lounge/Diner
18' 6'' x 11' 4'' (5.63m x 3.45m)
Double glazed windows to the side and floor to ceiling window to the rear overlooking the gardens. Coved ceiling, wood effect laminated flooring. T.V; power points, wall lights.

Bedroom 1
14' 9'' x 10' 1'' (4.49m x 3.07m) including the wardrobes
Double glazed window to the rear, fitted sliding door wardrobes to one wall and corner wardrobe. Matching fitted draw unit with a central dressing table, mirror and headboard. Radiator, power points and coved ceiling.

Bedroom 2
11' 2'' x 8' 3'' (3.40m x 2.51m)
Double glazed window overlooking the garden. Radiator, power points.

Bathroom
7' 8'' x 5' 9'' (2.34m x 1.75m)
Double glazed frosted window to the side. Fully tiled walls and floor, panelled bath with mixer tap including wall mounted shower over and screen. Vanity hand basin with mono bloc tap and storage under. Mirror front cabinet above, low level W.C;

Communal Garden

Well maintained communal gardens mainly laid to lawn with mature trees, shrubs and flower beds. Range of seating areas/benches, secluded drying area. Secure Pedestrian gated access to Southgate Road and gated from St Francis Close.

En- Bloc Garage

Situated at the end of St Francis Close ,Garage with up and over door

Important Information

  • This is a Share of Freehold property.

Property Ref: EAXML14349_12593273

Share:

Similar Properties

Station Close, Brookmans Park, AL9

2 Bedroom Flat | Asking Price £349,950

This two bedroom first floor maisonette is conveniently located for Brookmans Park Village shops as well as Brookmans Pa...

Heathfield Close, Potters Bar

2 Bedroom Flat | Asking Price £335,000

CHAIN FREE - SHARE OF FREEHOLD. This well-presented Two Double Bedroom second floor flat(top), located in this sought-af...

Heathfield Close, Potters Bar

2 Bedroom Flat | Asking Price £335,000

CHAIN FREE - SHARE OF FREEHOLD. This well-presented Two Double Bedroom second floor flat(top), located in this sought-af...

Weston Close, Potters Bar

2 Bedroom Maisonette | Asking Price £370,000

This two double bedroom ground floor maisonette is conveniently located for access to Darkes Lane amenities including Po...

Bushey Ley, Welwyn Garden City

3 Bedroom House | Asking Price £389,950

This three bedroom terraced family home is located in the poplar Panshanger area of Welwyn Garden City. The property ben...

Norfolk Close, Barnet

2 Bedroom Ground Floor Flat | Asking Price £395,000

This two double bedroom ground floor maisonette is located in a small cul-de-sac within reach to Cockfosters Station & C...

Hobdays Estate Agents (Potters Bar)

Potters Bar, Hertfordshire, EN6 1BJ

01707 663330

How much is your home worth?

Use our short form to request a valuation of your property.

Request a Valuation

Mortgage Calculator

Amount Borrowed: £
Total Amount Repayable: £
Total Monthly Payment: £
©2025 The Guild of Property Professionals. All rights reserved. Terms and Conditions | Privacy Policy | Cookie Policy | Complaints Policy | Members Login
The Guild of Property Professionals Trading Address: 121 Park Lane, London W1K 7AG. GPEA Limited. Registered in England & Wales.  Company No: 02819824.  Registered Office Address: 2 St. Stephen's Court, St. Stephen's Road, Bournemouth, Dorset, England, BH2 6LA.  VAT Registration No: 576 8795 61
Book a Property Valuation Update Cookies Preferences