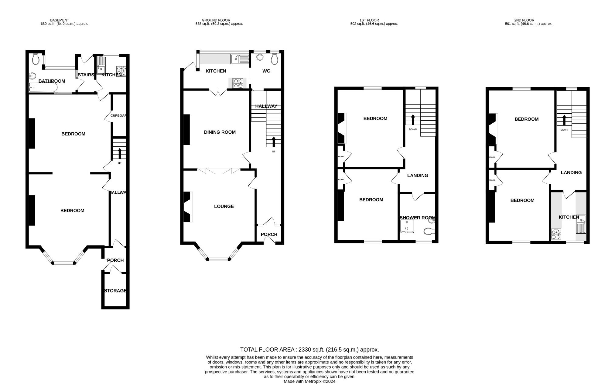
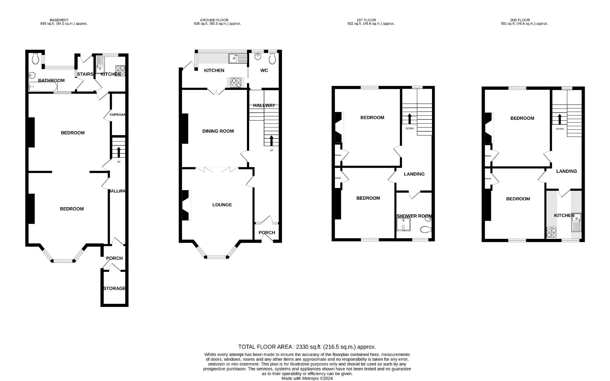
St Mildreds Road, Ramsgate

£499,995

6 Bedroom End of Terrace House for sale in Ramsgate

4 6 2
  • End of terrace
  • Six bedrooms
  • Council tax band: d
  • Character features
  • Self contained flat in basement
  • Close to town
  • Requires modernisation
  • Based over four floors
  • Epc rating: d
  • Freehold

This splendid 6-bedroom period property which requires modernisation, rich in character and adorned with original features including, ceiling roses, detailed cornicing, archway features and picture rails. This welcoming home is ideally situated in a central location, perfect for families or as an Airbnb investment. With its high ceilings, classic fireplaces, and intricate woodwork, the home exudes historical charm combined with modern comforts. The spacious layout includes a self-contained flat on the basement level, offering a private kitchen, bathroom, and living area ideal for guests or rental opportunities. Each room in the main residence is bathed in natural light, enhancing the elegant details and creating a warm, inviting atmosphere. The master suite and additional bedrooms provide ample space and comfort, with bathrooms that respect the property's heritage. Outside, the private rear garden is a serene retreat, perfect for relaxation and outdoor gatherings, surrounded by lush landscaping that ensures privacy. This garden space offers a peaceful escape from the urban hustle. Located just a short walk from Ramsgate harbour, the property benefits from proximity to bus routes, local shops, and convenience stores, making it not only a charming residence but also a convenient one. Its potential as a family home or a profitable Airbnb rental, combined with its significant size and unique appeal, makes this property a rare find in the estate agency market.

Important Information

  • This is a Freehold property.

Property Ref: 202202_COOKEANDCO_5762

Share:

Similar Properties

Fort Crescent, Margate

5 Bedroom Terraced House | Offers Over £499,995

Offers Over £499,995. Stunning Location! Houses in this desirable seafront position rarely come onto the market so Cooke...

St. Peters Park Road, Broadstairs

3 Bedroom Semi-Detached House | £499,995

Cooke & Co are thrilled to present this CHAIN FREE exceptional Edwardian three-bedroom semi-detached home on St. Peters...

Lanthorne Place, Broadstairs

3 Bedroom Semi-Detached House | Offers in region of £495,000

Immaculate Modern Home in Desirable Lanthorne Place, Broadstairs Nestled in the quiet and sought-after cul-de-sac of Lan...

Northdown Park Road, Margate

2 Bedroom Detached Bungalow | £500,000

This beautifully maintained and immaculately presented two double bedroom detached bungalow offers stylish, versatile li...

Devonshire Gardens, Margate

3 Bedroom Detached House | £500,000

Cooke & Co are delighted to present this detached family home, ideally located on a prestigious road just moments from t...

Stanley Road, Broadstairs

3 Bedroom Semi-Detached House | £525,000

Cooke & Co are delighted to present two brand new, eco-friendly chalet bungalows in the sought after Stanley Road, Broad...

Cooke & Co Estate and Letting Agents (Cliftonville)

Cliftonville, Kent, CT9 2QY

01843 231833

How much is your home worth?

Use our short form to request a valuation of your property.

Request a Valuation

Mortgage Calculator

Amount Borrowed: £
Total Amount Repayable: £
Total Monthly Payment: £
©2025 The Guild of Property Professionals. All rights reserved. Terms and Conditions | Privacy Policy | Cookie Policy | Complaints Policy | Members Login
The Guild of Property Professionals Trading Address: 121 Park Lane, London W1K 7AG. GPEA Limited. Registered in England & Wales.  Company No: 02819824.  Registered Office Address: 2 St. Stephen's Court, St. Stephen's Road, Bournemouth, Dorset, England, BH2 6LA.  VAT Registration No: 576 8795 61
Book a Property Valuation Update Cookies Preferences