Carlton Avenue, Ramsgate, CT11

£120,000

Plot for sale in Ramsgate

  • Revised Scheme With Consent
  • Single Building Plot With Planning Permission
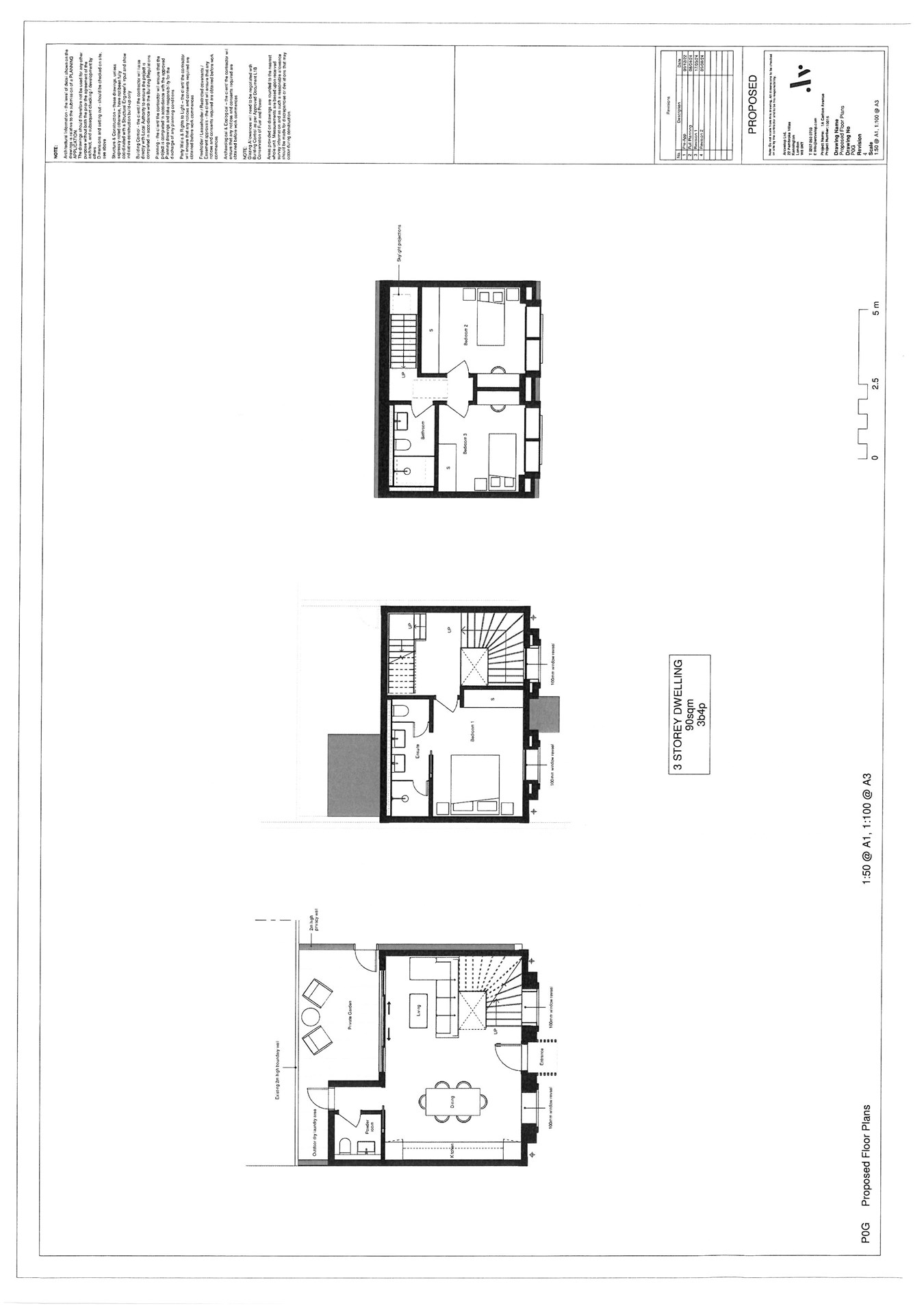
  • For a Three Bedroom Detached House of Approx. 90m2 (969sqft)
  • Close to Ramsgate Town
  • Off Street Parking For Two Vehicles
  • Courtyard Garden to Rear

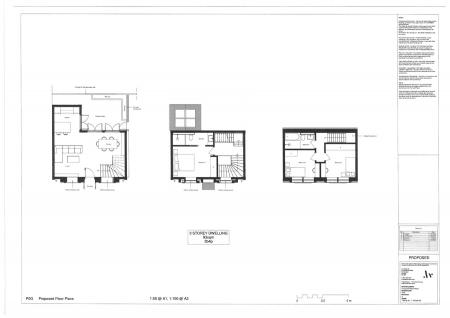
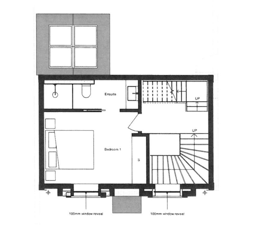
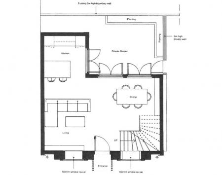
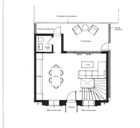
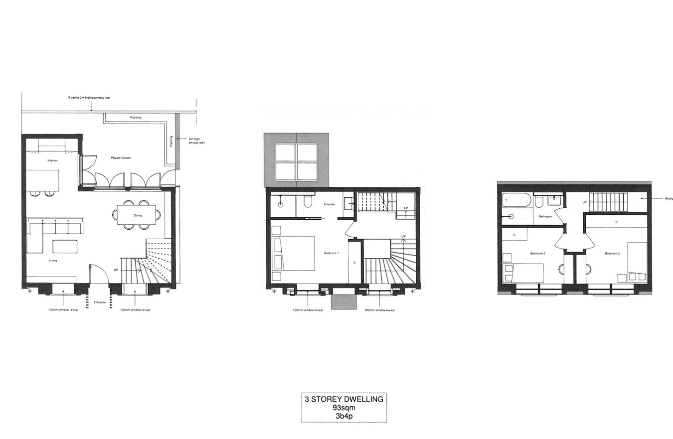
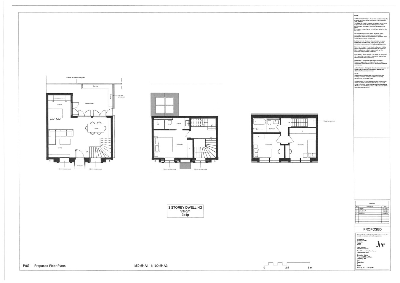
REVISED CONSENTED PLANS - BUILDING PLOT FOR SINGLE DETACHED HOUSE IN PRIME RAMSGATE LOCATION

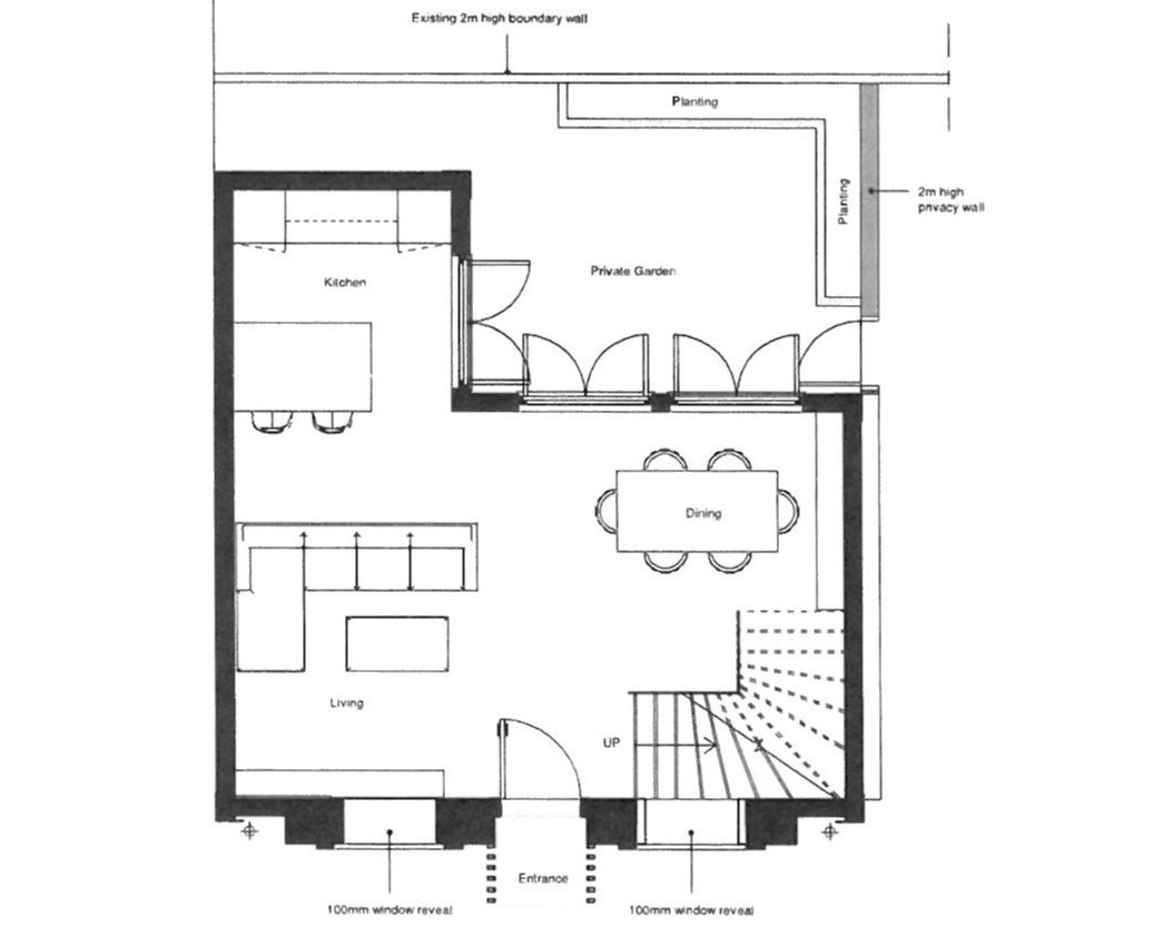
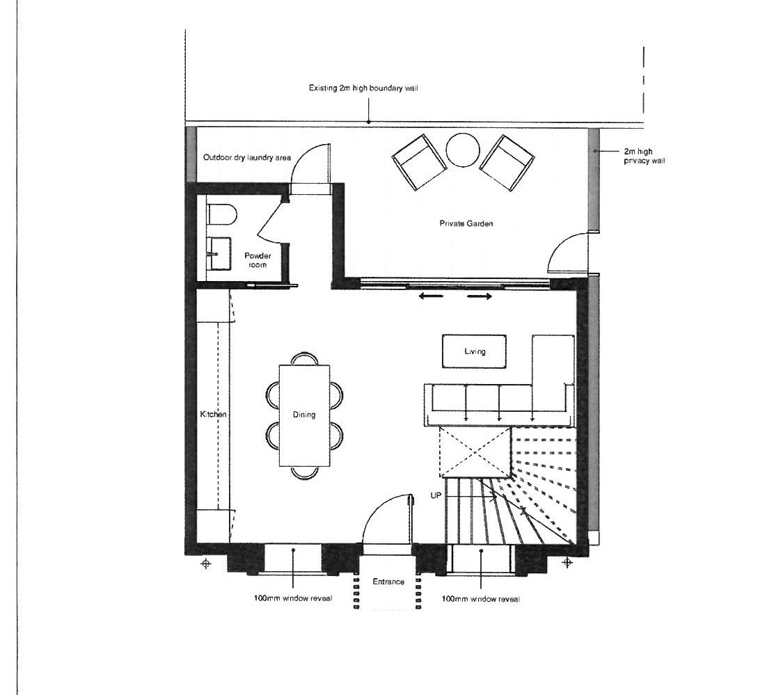
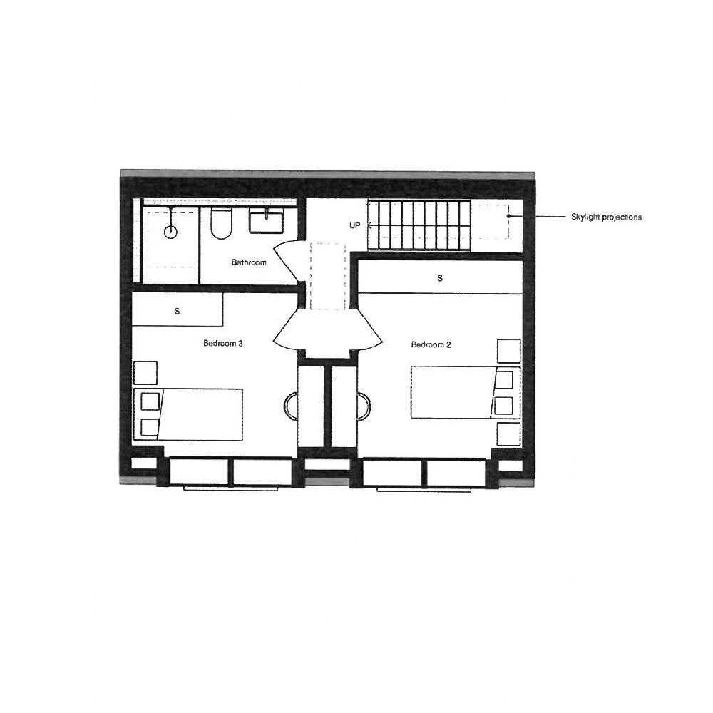
This single building plot has full planning permission granted for a 90m2 (969sqft) single detached three bedroom house with two bathrooms, off street parking for two vehicles and a courtyard garden to the rear. The ground floor will feature an open plan living/dining room and kitchen, with the principal bedroom with en-suite located at first floor level and two further bedrooms and a bathroom on the second floor.

Plans and planning consent are available from our office upon request or via Thanet District Councils planning portal www.thanet.gov/yourservices/planning.

Planning Consent
The original plans were approved under planning reference F/TH/24/1063 and have subsequently been updated under planning reference NM/TH/25/1082 as a non-material change and as shown on drawings numbered P00 Rev 3, P115 Rev 4, P116 Rev 3, P0 Rev 4 & P0G Rev 4 (dated 17.10.25) and P302 Rev 2 and P0R Rev 3 (dated 22.10.25). Consent granted 25.11.25.

Planning Enquiries
Planning enquiries should be made to Thanet District Council Planning Office on 01843 577150 or to planning.services@thanet.gov.uk quoting the above planning references.

Important Information

  • This is a Freehold property.

Property Ref: 5345346_29235304

Share:

Similar Properties

160 High Street, Herne Bay, CT6

Commercial Property | £90,000

ESTABLISHED AUTHENTIC ITALIAN RESTAURANT & PIZZERIA IN PRIME HIGH STREET LOCATIONThis long-established restaurant busine...

Albion Street, Broadstairs, CT10

Commercial Property | £55,000

WELL PRESENTED RESTAURANT PREMISES LOCATED IN BROADSTAIRS' PRIME TRADING LOCATIONThis lock-up restaurant premises is set...

Harold Road, Margate, CT9

1 Bedroom Flat | £45,000

IMMAUCULATE ONE BEDROOM RETIREMENT APARTMENT WITH NO FORWARD CHAIN!Terence Painter Estate Agents are delighted to bring...

Norfolk Road, Cliftonville, Margate, CT9

1 Bedroom Flat | £130,000

NO FORWARD CHAIN! - ONE BEDROOM GOUND FLOOR FLAT WITH ALLOCATED PARKING LOCATED WITHIN YARDS OF THE BEACH!Terence Painte...

18 Royal Road, Ramsgate, CT11

1 Bedroom Flat | £139,500

STUNNING REFURBISHED ONE BEDROOM SECOND FLOOR APARTMENT SITUATED WITHIN YARDS OF RAMSGATES' PICTURESQUE ROYAL HARBOUR, S...

Dane Hill, Margate, CT9

Commercial Property | £150,000

FORMER COMMUNITY CENTRE WITH POTENTIAL SITUATED CLOSE TO DANE PARK AND MARGATE'S VIBRANT & HISTORIC OLD TOWN    This for...

Terence Painter Estate Agents (Broadstairs)

Broadstairs, Kent, CT10 1JT

01843 866866

How much is your home worth?

Use our short form to request a valuation of your property.

Request a Valuation

Mortgage Calculator

Amount Borrowed: £
Total Amount Repayable: £
Total Monthly Payment: £
©2025 The Guild of Property Professionals. All rights reserved. Terms and Conditions | Privacy Policy | Cookie Policy | Complaints Policy | Members Login
The Guild of Property Professionals Trading Address: 121 Park Lane, London W1K 7AG. GPEA Limited. Registered in England & Wales.  Company No: 02819824.  Registered Office Address: 2 St. Stephen's Court, St. Stephen's Road, Bournemouth, Dorset, England, BH2 6LA.  VAT Registration No: 576 8795 61
Book a Property Valuation Update Cookies Preferences