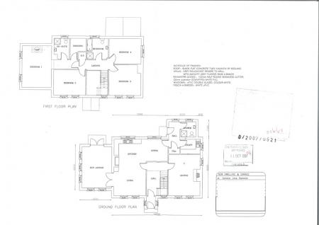
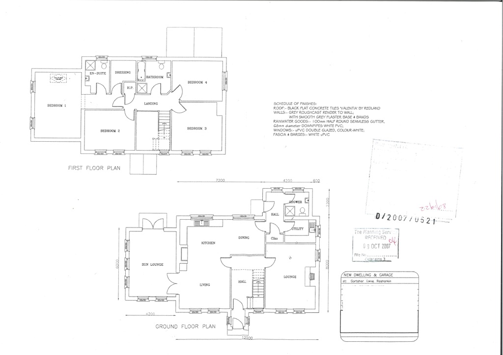
Building site at Gortahar Lane, Rasharkin, Ballymena, County Antrim

£59,500
SSTC
This property listing is now SSTC

Farm Land for sale in Rasharkin, Ballymena

  • Full planning permission for a two storey dwelling.
  • Quiet rural location.
  • Services nearby.
  • Foundations laid for detached garage.
  • Detailed plans, elevations decision notice available via agency.

Located amidst the serene beauty of the countryside, this ready to go building plot presents a unique opportunity to craft your dream home. Situated in the picturesque expanse between the towns of Rasharkin and Dunloy, you'll enjoy the convenience of both localities whilst relishing the tranquility of your rural retreat. Contact us today to explore the possibilities and embark on a journey to create a home that truly reflects your aspirations.

Property Ref: BCV515652

Share:

Similar Properties

Ringrash Road, Macosquin, Coleraine

Land | Offers in region of £50,000

Ringrash Road, Macosquin, Coleraine

Lands 85m North of 91 Killyvally Road, Garvagh

Farm Land | Offers in region of £40,000

.

Sperrin Sports Club, 5 Newmills Road Lower, Coleraine

Commercial Property | POA

Former Sperrin Sports Club

Glebe Road, Macosquin, Coleraine

Farm Land | Offers Over £70,000

.

Bensons (Coleraine)

9 Dunmore Street, Coleraine, Co. Londonderry, BT52 1EL

028 7034 3677

How much is your home worth?

Use our short form to request a valuation of your property.

Request a Valuation

Mortgage Calculator

Amount Borrowed: £
Total Amount Repayable: £
Total Monthly Payment: £
©2026 The Guild of Property Professionals. All rights reserved. Terms and Conditions | Privacy Policy | Cookie Policy | Complaints Policy | Members Login
The Guild of Property Professionals Trading Address: 121 Park Lane, London W1K 7AG. GPEA Limited. Registered in England & Wales.  Company No: 02819824.  Registered Office Address: 2 St. Stephen's Court, St. Stephen's Road, Bournemouth, Dorset, England, BH2 6LA.  VAT Registration No: 576 8795 61
Book a Property Valuation Update Cookies Preferences