Dunningham Drive, Raydon

Guide Price
£375,000
SSTC
This property listing is now SSTC

3 Bedroom Semi-Detached House for sale in Raydon

1 3 2
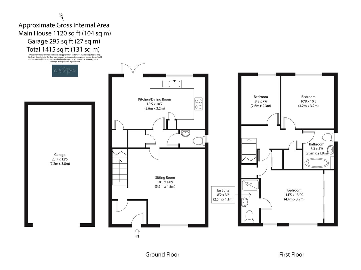
  • THREE BEDROOM SEMI DETACHED HOME
  • GARAGE AND DRIVEWAY PARKING
  • SET WITHIN THE QUIET VILLAGE OF RAYDON
  • STUNNING KITCHEN DINING ROOM
  • EN-SUITE SHOWER ROOM TO BEDROOM ONE
  • ENCLOSED REAR GARDEN

Step into the epitome of modern living with this exquisite semi-detached home, still under NHBC warranty and constructed by the esteemed Landex developer, is an unparalleled opportunity for first-time buyers to secure a slice of high-spec living in a charming village setting.

The welcoming entrance hall ushers you into a bright and airy living room, where natural light floods in, creating a serene space to unwind or entertain guests. The heart of this home is undoubtedly the stylish kitchen/diner, boasting sleek tiled flooring and double doors that invite the outdoors in. Culinary enthusiasts will revel in the kitchen's high-end finishes, including quartz countertops and a suite of integrated Neff appliances, ensuring meal preparations are both effortless and enjoyable.

Upstairs, the property continues to impress with its well-appointed bedrooms, each offering a haven of rest and relaxation. The master bedroom is a luxurious retreat featuring fitted wardrobes and an en-suite shower room, providing the perfect blend of comfort and convenience.

Outside, the enclosed rear garden promises to be a lush canvas for your personal touches, with a patio area ready to host your summer soirées or quiet morning coffees. The additional benefits of an oversized single garage and driveway parking make this home as practical as it is beautiful.

LOCATION:
The village of Raydon lies within three miles of the market town of Hadleigh offering shopping facilities and numerous other amenities, and only a short drive from the A12 with its excellent road communications to Ipswich, Colchester and beyond.

The village enjoys an ancient Parish Church, playing fields, golf club, village hall and numerous footpaths giving direct access into this Area of Outstanding Natural Beauty. East Bergholt is approx. 3 miles away and has the benefit of a good range of local facilities including a village shop, post office, GP surgery and medical centre, Parish Church and Congregational Church, along with many local associations. The village provides excellent education facilities from pre-school age to GCSE, sixth form colleges are available in Colchester and Ipswich.

AGENTS NOTES:
Heating - Air-source underfloor to ground floor and via radiators to first floor
A Development Charge of £350 is payable per annum
Services Connected - Mains Electric/Water/Drainage
Council Tax Band - D
Tenure - Freehold
Mobile Coverage Indoor: o2 is Likely / EE & Vodafone are Limited / Three is Unavailable
Broadband: Ultrafast broadband is available at this address

Property Ref: 512123_33875538

Share:

Similar Properties

California Road, Mistley

3 Bedroom Semi-Detached House | £375,000

Step into the elegance of a bygone era, meticulously revived for contemporary living. This early 20th-century semi-detac...

Fox Earth Close, Capel St. Mary

3 Bedroom Link Detached House | £375,000

Chamberlain Phillips is delighted to present this outstanding three-bedroom link-detached home located within the desira...

The Avenue, Lawford, Manningtree

3 Bedroom Semi-Detached House | £370,000

AWARD-WINNING HOMES - Plot 316 The Constance is a stylish three-bedroom home at the sought-after Lawford Green developme...

Stevens Close, Colchester

4 Bedroom Townhouse | Offers in excess of £385,000

Chamberlain Phillips are pleased to offer this four-bedroom terraced town house, nestled in a sought-after pocket of nor...

Somerset Gardens, Lawford Green

3 Bedroom House | Guide Price £390,000

Chamberlain Phillips are delighted to present this immaculately maintained "Cornelia" design home, offering spacious ope...

Lawford Green, Manningtree

3 Bedroom Semi-Detached House | £390,000

AWARD-WINNING HOMES - Plot 386 The Barbier is a popular contemporary three-bedroom home at the sought-after Lawford Gree...

Chamberlain Phillips (Manningtree)

Summers Park, Lawford, Manningtree, Essex, CO11 2BZ

01206 646479

How much is your home worth?

Use our short form to request a valuation of your property.

Request a Valuation

Mortgage Calculator

Amount Borrowed: £
Total Amount Repayable: £
Total Monthly Payment: £
©2025 The Guild of Property Professionals. All rights reserved. Terms and Conditions | Privacy Policy | Cookie Policy | Complaints Policy | Members Login
The Guild of Property Professionals Trading Address: 121 Park Lane, London W1K 7AG. GPEA Limited. Registered in England & Wales.  Company No: 02819824.  Registered Office Address: 2 St. Stephen's Court, St. Stephen's Road, Bournemouth, Dorset, England, BH2 6LA.  VAT Registration No: 576 8795 61
Book a Property Valuation Update Cookies Preferences