Haig Avenue, Rochester, ME1

Guide Price
£325,000
SSTC
This property listing is now SSTC

3 Bedroom Terraced House for sale in Rochester

2 3 1
  • No Forward Chain
  • Two Reception Rooms
  • Close to Highly Recommended Schools
  • Driveway to the Front
  • Enclosed South Facing Garden
  • An Ideal First Time Buyers Home
  • Three Bedroom Mid-Terrace

Guide Price £325,000 - £350,000

Being offered with no forward chain is this three bedroom 1930s home with an opportunity to place your own creative stamp. Situated in a sought after location with highly recommended schools just a short distance away. It also has the benefit of local bus services into Rochester and Maidstone town centre.

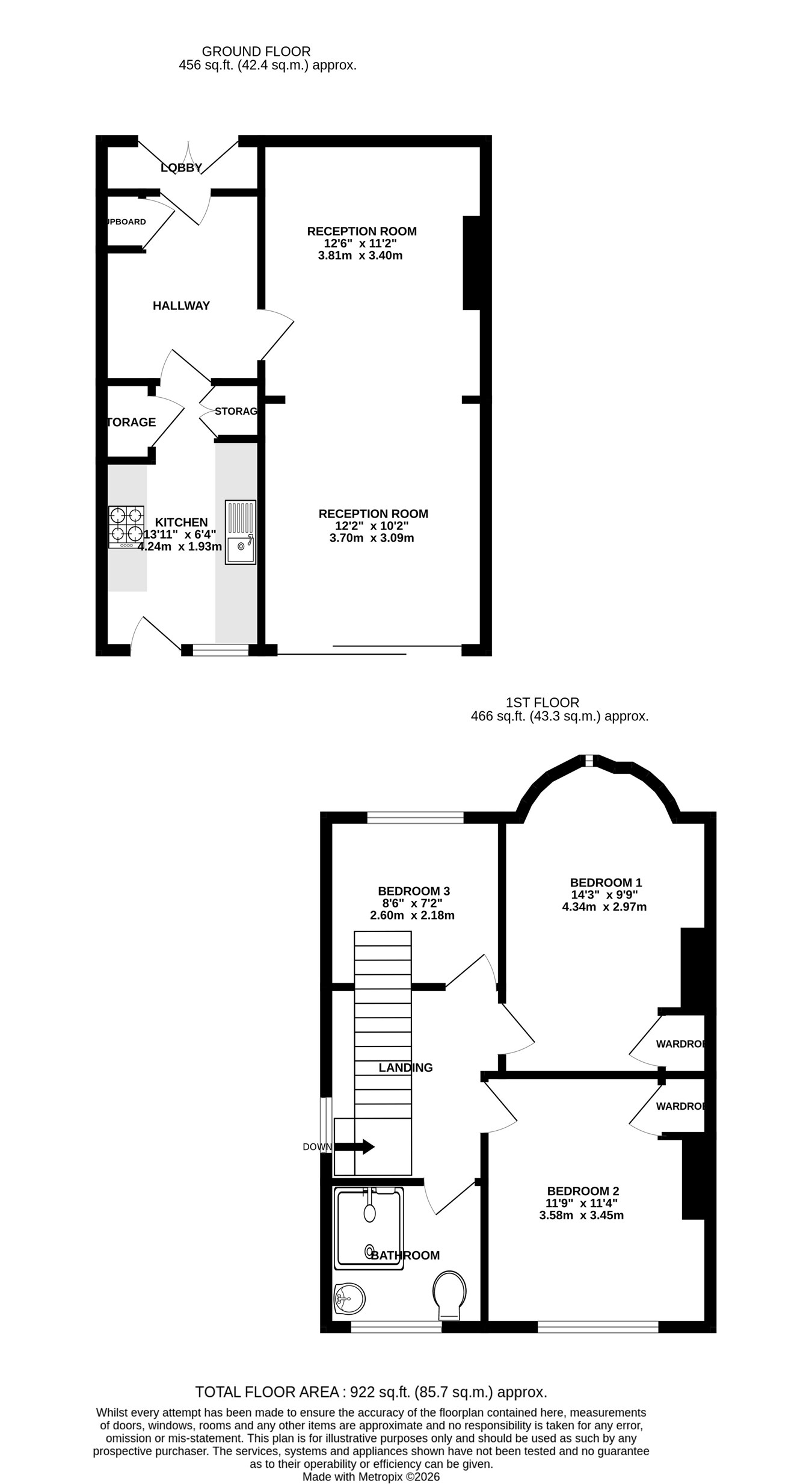
On entering you are greeted by an entrance hallway with stairs to the first floor which follows through to a good size lounge and dining room with French doors leading out to the enclosed rear garden. The kitchen offers a range of fitted wall and base units with integrated hob and oven. Moving upstairs you have three good size bedrooms, the main bedroom with fitted wardrobes, and a family bathroom. Externally the rear garden is mainly laid to lawn with patio area and a variety of shrub borders. This is a lovely space to chill and is ideal for children to play safely. This is a lovely property for the first time buyer or growing family. Please call the Sales Team for further details.Ground Floor

Lobby

Hallway

Kitchen
13' 11" x 6' 4" (4.24m x 1.93m)

Reception Room
12' 6" x 11' 2" (3.81m x 3.40m)

Reception Room
12' 2" x 10' 2" (3.71m x 3.10m)

First Floor

Bedroom 1
14' 3" x 9' 9" (4.34m x 2.97m)

Bedroom 2
11' 9" x 11' 4" (3.58m x 3.45m)

Bedroom 3
8' 6" x 7' 2" (2.59m x 2.18m)

Bathroom

Important Information

  • This is a Freehold property.

Property Ref: 29959044

Share:

Similar Properties

Clandon Road, Lordswood, Chatham, ME5

3 Bedroom End of Terrace House | Offers Over £325,000

Corner plot with potential to extend subject to relevant planning permissions. This lovely three bedroom end of terrace...

Croydon Close, Lordswood, Chatham, ME5

3 Bedroom Semi-Detached House | Offers Over £325,000

Situated in the ever popular area of Lordswood with its schools, local shops and leisure centre, this beautifully presen...

Haig Avenue, Rochester, ME1

2 Bedroom Semi-Detached House | Offers in excess of £325,000

Beautiful property. Ideal for accessing Rochester town centre and local Horsted Retail Park. This semi-detached house ha...

Winchester Avenue, Walderslade, Chatham, ME5

3 Bedroom Semi-Detached House | £340,000

Do not miss out on this no chain three bedroom semi detached home. Ideally located close to local schools and amenities....

Valley View Road, Rochester, ME1

3 Bedroom Semi-Detached House | £340,000

Being offered with no forward chain is this three bedroom 1930s home. The property has lots of potential and if you are...

Spenlow Drive, Walderslade Woods, Chatham , ME5

3 Bedroom End of Terrace House | Offers in excess of £350,000

Being offered with no forward chain is this beautifully presented three bedroom house situated in a quiet cul-de-sac pos...

Greyfox Sales & Lettings (Walderslade)

Walderslade Village Centre, Walderslade, Walderslade, Kent, ME5 9LR

01634 672227

How much is your home worth?

Use our short form to request a valuation of your property.

Request a Valuation

Mortgage Calculator

Amount Borrowed: £
Total Amount Repayable: £
Total Monthly Payment: £
©2026 The Guild of Property Professionals. All rights reserved. Terms and Conditions | Privacy Policy | Cookie Policy | Complaints Policy | Members Login
The Guild of Property Professionals Trading Address: 121 Park Lane, London W1K 7AG. GPEA Limited. Registered in England & Wales.  Company No: 02819824.  Registered Office Address: 2 St. Stephen's Court, St. Stephen's Road, Bournemouth, Dorset, England, BH2 6LA.  VAT Registration No: 576 8795 61
Book a Property Valuation Update Cookies Preferences