Compton House 7 Victory Parade, Plumstead Road, Royal Arsenal, SE18

Guide Price
£500,000

2 Bedroom Apartment for sale in Royal Arsenal

1 2 2
  • Modern Two Bedroom Apartment
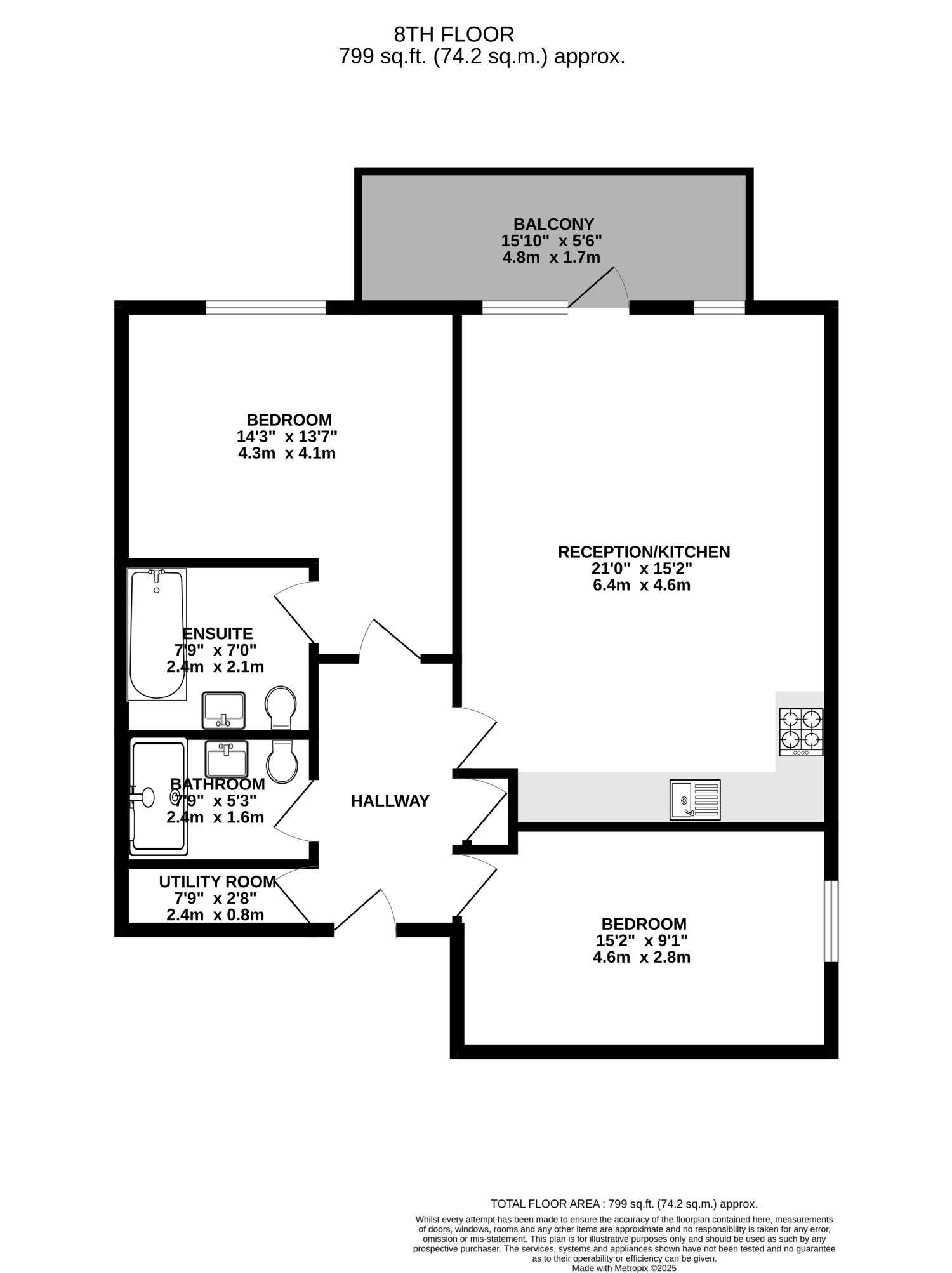
  • 8th Floor
  • Private Balcony
  • En Suite Shower Room
  • Luxury Spa & Pool
  • En Site Elizabeth Line
  • DLR & Overground Short Walk
  • Superb Royal Arsenal Development
  • Offered Chain Free

Guide Price £500,000 - £525,000 Leasehold. HI Residential is delighted to present this impressive Chain Free two-bedroom, two-bathroom apartment, superbly positioned on the 8th floor of Compton House within the highly sought-after Royal Arsenal Riverside development. Offering generous living space, a South-facing private balcony, and secure gated underground parking, this apartment combines modern comfort with exceptional connectivity.
Beautifully designed, the apartment features a spacious open-plan living and dining area filled with natural light, leading out to the well-sized private balcony—perfect for enjoying views, sunshine, and outdoor relaxation. The modern kitchen is fully fitted with integrated appliances and stylish finishes, making it ideal for both everyday living and entertaining.
Both bedrooms are generously proportioned, with the principal bedroom benefiting from a luxurious en-suite shower room, while a second well-appointed bathroom serves guests or the second bedroom. The apartment is finished to a high standard throughout, offering contemporary living in a vibrant riverside setting.
Compton House forms part of the prestigious Royal Arsenal Riverside—a landmark development along the River Thames that features landscaped grounds, a buzzing retail and dining scene, and a real sense of community.
Unrivalled Transport Links Include:
On-site Elizabeth Line station
Thames Clipper Pier for river travel
DLR and National Rail just 300m away
London City Airport only two stops via DLR
With its prime riverside location, secure parking, and superb transport connections, this apartment offers a rare opportunity for luxury living in one of South East London's most dynamic and fast-growing areas.
Viewings are highly recommended—contact HI Residential today to arrange yours.

Property Ref: 514475_10691014

Share:

Similar Properties

St. Johns Terrace, Plumstead Common, London, SE18

2 Bedroom Terraced House | Guide Price £500,000

Nestled in a peaceful cul-de-sac overlooking the Plumstead Bowls Club, this delightful 2-bedroom Victorian house offers...

Weston Point, 49 Wellington Street, Woolwich, Kent, SE18

2 Bedroom Apartment | Guide Price £500,000

HI Residential is proud to present this exceptional two-bedroom Penthouse apartment, perfectly positioned on the 13th fl...

Swingate Lane, Plumstead Common, London, SE18

5 Bedroom End of Terrace House | £500,000

Impressive 5-Bedroom 1930s End-of-Terrace Home | Desirable Courtyard Position | Swingate Lane, Plumstead SE18 | Moments...

26, Brookhill Road, Woolwich, SE18

4 Bedroom House | Guide Price £525,000

Guide Price £525,000 - £550,000.

Benares Road, Plumstead, SE18

4 Bedroom Terraced House | Offers in excess of £525,000

**Stunning Newly Refurbished 4-Bedroom Family Home with Loft Conversion in Plumstead, SE18** This beautifully refurbishe...

1a, Edge Hill, Plumstead, SE18

2 Bedroom Shop | £525,000

Hi Residential are pleased to present this spacious and versatile Victorian property arranged over three floors, offerin...

hi-residential (Plumstead)

Plumstead, London, SE18 3TN

020 8316 6616

How much is your home worth?

Use our short form to request a valuation of your property.

Request a Valuation

Mortgage Calculator

Amount Borrowed: £
Total Amount Repayable: £
Total Monthly Payment: £
©2025 The Guild of Property Professionals. All rights reserved. Terms and Conditions | Privacy Policy | Cookie Policy | Complaints Policy | Members Login
The Guild of Property Professionals Trading Address: 121 Park Lane, London W1K 7AG. GPEA Limited. Registered in England & Wales.  Company No: 02819824.  Registered Office Address: 2 St. Stephen's Court, St. Stephen's Road, Bournemouth, Dorset, England, BH2 6LA.  VAT Registration No: 576 8795 61
Book a Property Valuation Update Cookies Preferences