Main Road, Brereton, Rugeley, WS15 1DX

£140,000
SSTC
This property listing is now SSTC

2 Bedroom Flat for sale in Rugeley

1 2 1
  • TWO BEDROOMS
  • LOUNGE
  • KITCHEN
  • CLOSE TO AMENITIES
  • ONE ALLOCATED PARKING SPACE
  • WITHIN A SHORT DISTANCE TO CANNOCK CHASE
  • IDEAL FOR FIRST TIME BUYERS
  • VIEWING ADVISED

 


** ONLINE VIRTUAL TOUR AVAILABLE ON THIS PROPERTY - why not take a peek before booking a viewing**

Property Description


Set in the heart of Brereton, this well-presented two bedroom end-terraced property offers excellent living space and a convenient location, perfect for first-time buyers or investors alike. Situated within a popular residential development, the home benefits from close proximity to local amenities, schools, parks, and transport links, providing a balanced lifestyle of comfort and accessibility.

Location & Lifestyle


Brereton Mews is positioned just off Main Road in the popular area of Brereton, Rugeley, with excellent access to local shops, public transport, nearby schools, and recreational parks. Rugeley Town Centre and train station are only a short distance away, making this an ideal base for commuters.

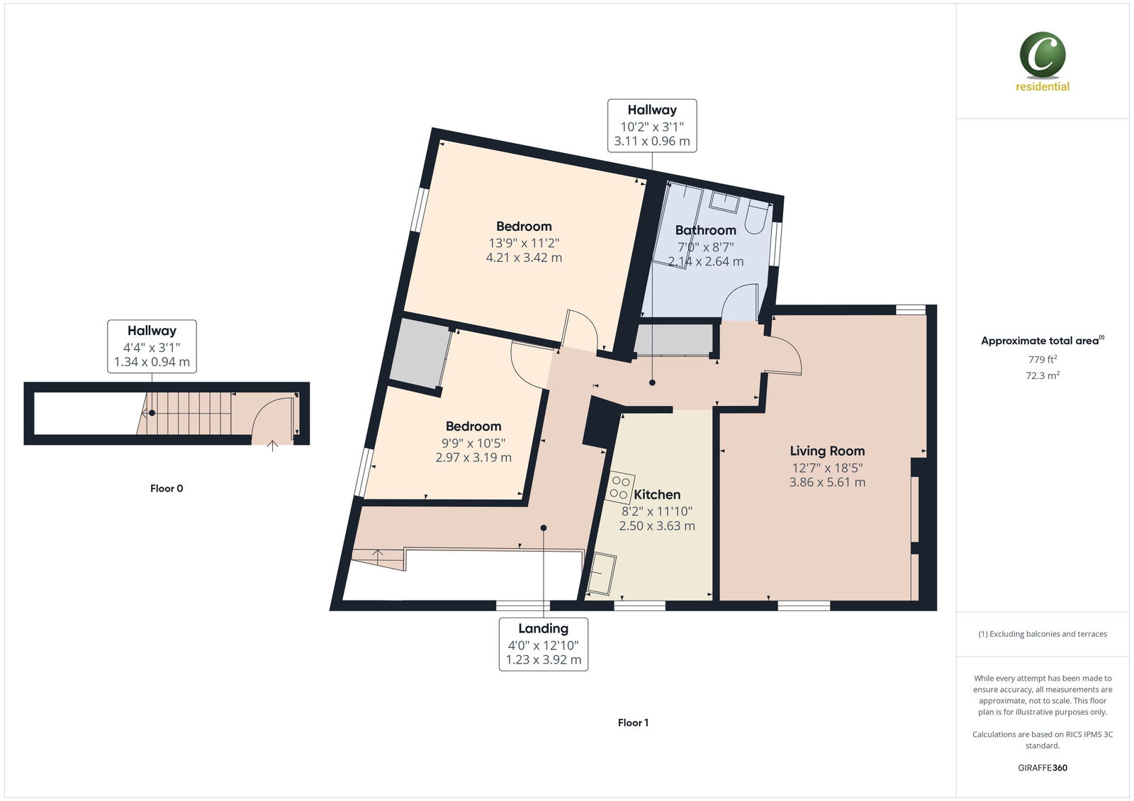
Living Space



  • Entrance Hallway 

  • Lounge 

  • Kitchen 

  • Two Bedrooms 

  • Bathroom 

  • One Allocated Parking Space 


Early viewing is strongly advised to truly appreciate the size, layout, and potential this delightful home has to offer.

AGENTS NOTES


IDENTIFICATION CHECKS - C -  Identification Checks - C - Should a purchaser(s) have an offer accepted on a property marketed by C residential they will need to undertake an identification check. This is done to meet our obligation under Anti Money Laundering Regulations (AML) and is a legal requirement. We use a specialist third party service to verify your identity. The cost of these checks is £36.00 inc. VAT per buyer, which is paid in advance, when an offer is agreed and prior to a sales memorandum being issued. This charge is non-refundable.

Important Information

  • This is a Leasehold property.

Property Ref: 3712_1137585

Share:

Similar Properties

Ling Road , Huntington , Cannock , Staffordshire, WS12 4NP

2 Bedroom Mobile Home | £137,500

*** ONLINE VIRTUAL 360 TOUR AVAILABLE ON THIS PROPERTY - why not take a peek before booking a viewing please click on th...

Main Road, Brereton, Rugeley, WS15 1DX

2 Bedroom End of Terrace House | £137,000

Offered with NO UPWARD CHAIN, viewing is highly recommended to fully appreciate the size and space of this charming two-...

Langley Way, Hawksyard, Rugeley, WS15 1SU

2 Bedroom Apartment | Offers Over £121,000

** ONLINE VIRTUAL TOUR AVAILABLE ON THIS PROPERTY - why not take a peek before booking a viewing**

Rugeley Road, Armitage, Rugeley, WS15 4AX

2 Bedroom Mobile Home | £149,995

** ONLINE VIRTUAL TOUR AVAILABLE ON THIS PROPERTY - why not take a peek before booking a viewing**

Lower Lodge, Armitage, WS15 4AX

2 Bedroom Lodge | £150,000

** ONLINE VIRTUAL TOUR AVAILABLE ON THIS PROPERTY - why not take a peek before booking a viewing**

The Laurels, Brereton, Rugeley, WS15 1BE

2 Bedroom Terraced Bungalow | Offers Over £155,000

Location & Lifestyle The property is conveniently located close to local amenities and transport links and is within a s...

Webbs Estate Agents (Rugeley)

Upper Brook Street, Rugeley, Staffordshire, WS15 2DN

01889 583377

How much is your home worth?

Use our short form to request a valuation of your property.

Request a Valuation

Mortgage Calculator

Amount Borrowed: £
Total Amount Repayable: £
Total Monthly Payment: £
©2025 The Guild of Property Professionals. All rights reserved. Terms and Conditions | Privacy Policy | Cookie Policy | Complaints Policy | Members Login
The Guild of Property Professionals Trading Address: 121 Park Lane, London W1K 7AG. GPEA Limited. Registered in England & Wales.  Company No: 02819824.  Registered Office Address: 2 St. Stephen's Court, St. Stephen's Road, Bournemouth, Dorset, England, BH2 6LA.  VAT Registration No: 576 8795 61
Book a Property Valuation Update Cookies Preferences