Flamborough Road, Ruislip, HA4

£550,000
SSTC
This property listing is now SSTC

2 Bedroom Terraced House for sale in Ruislip

1 2 1
  • Two bedrooms
  • Modern Kitchen
  • Gas central heating
  • Family Bathroom
  • Private Rear Garden
  • Mid Terrace House
  • Garage

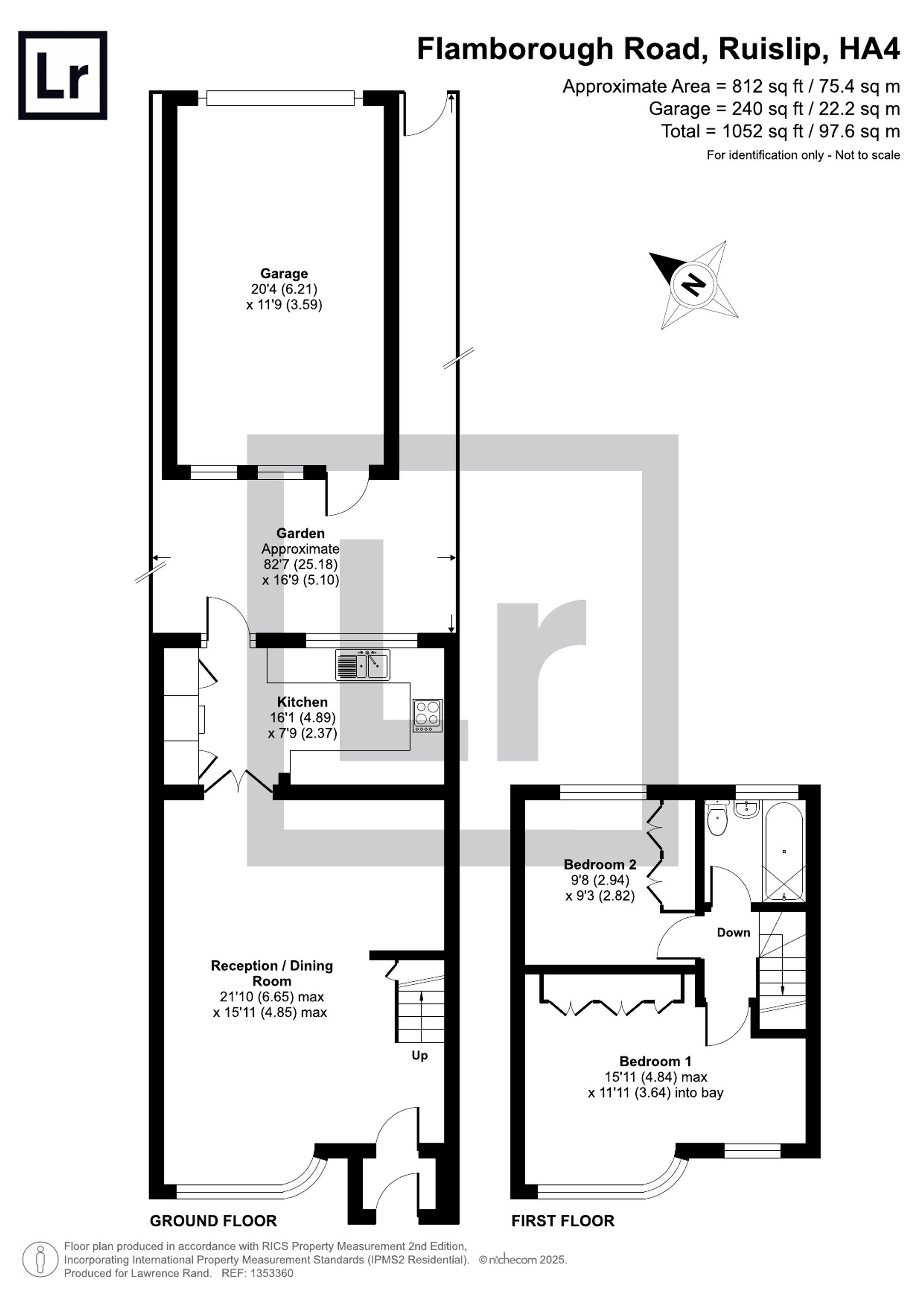
A well-presented mid-terrace home offering a generous layout, characterful features, and excellent outdoor space. The open-plan reception room spans the full depth of the house and is finished in soft neutral tones with wood flooring, feature fireplace and bay window. At the rear, the kitchen is fitted in a timeless shaker style with solid wood worktops, monochrome splashbacks and garden access. Upstairs are two bedrooms, both with fitted wardrobes, and a modern bathroom with shower over bath. Outside, the rear garden includes a patio, lawn and detached garage, with a driveway to the front.

Flamborough Road is a quiet residential turning just moments from Ruislip High Street’s shops, restaurants and transport links — including Central, Metropolitan and Chiltern Line services. Several well-regarded schools are also within easy reach.

Verified Material Information:

Energy Performance rating: E

Council tax band: D

Local Authority: Hillingdon

Electricity supply: Mains, Water supply: Mains water, Sewerage: Mains

Heating: Gas central heating

Broadband & mobile coverage:

Broadband: FTTP (Fibre to the Premises)

Mobile coverage: O2 - Excellent, Vodafone - Excellent, Three - Excellent, EE - Excellent

Disclaimer:

While we have endeavoured to provide accurate information, we advise prospective buyers to verify all key details with relevant professionals to ensure complete transparency. This property presents immense potential for development, and we encourage interested parties to explore the possibilities that await with this remarkable opportunity.

Energy Efficiency Current: 53.0
Energy Efficiency Potential: 87.0

Important Information

  • This is a Freehold property.
  • This Council Tax band for this property is: D

Property Ref: c82a6087-3eee-4028-8ceb-e863669e2b40

Share:

Similar Properties

Royal Crescent Ruislip

2 Bedroom Terraced House | Offers in region of £550,000

Lovely two bedroom terraced house presented in good condition through-out with large South-facing garden and Studio with...

Rhyl Road Perivale

3 Bedroom Terraced House | Asking Price £550,000

Extended three bedroom two-bathroom house in the Medway Estate with no onward chain.

Whitby Road, Ruislip, HA4

2 Bedroom Terraced House | £550,000

An extended two double-bedroom house with an open-plan layout which has been modernised throughout to offer contemporary...

Acorn Grove Ruislip

3 Bedroom Semi-Detached House | Asking Price £565,000

This three bedroom semi-detached house is in a convenient location close to shops, amenities and transport links. The ho...

Holyrood Avenue, Harrow, HA2

4 Bedroom Semi-Detached House | Guide Price £575,000

An extended three/ four bedroom semi-detached house with two bathrooms and an open plan living-kitchen area.

Greenford Road, Greenford, UB6

3 Bedroom Semi-Detached House | £580,000

This lovely three bedroom semi-detached family home offers larger than average living accommodation set over two floors.

Lawrence Rand (Ruislip Manor)

Ruislip Manor, Middlesex, HA4 9BH

01895 632211

How much is your home worth?

Use our short form to request a valuation of your property.

Request a Valuation

Mortgage Calculator

Amount Borrowed: £
Total Amount Repayable: £
Total Monthly Payment: £
©2025 The Guild of Property Professionals. All rights reserved. Terms and Conditions | Privacy Policy | Cookie Policy | Complaints Policy | Members Login
The Guild of Property Professionals Trading Address: 121 Park Lane, London W1K 7AG. GPEA Limited. Registered in England & Wales.  Company No: 02819824.  Registered Office Address: 2 St. Stephen's Court, St. Stephen's Road, Bournemouth, Dorset, England, BH2 6LA.  VAT Registration No: 576 8795 61
Book a Property Valuation Update Cookies Preferences