Navigation Close, Runcorn

£130,000
SSTC
This property listing is now SSTC

4 Bedroom Terraced House for sale in Runcorn

1 4 2
  • Four Bedrooms
  • Mid Terrace
  • Off Road Parking
  • No Onward Chain Delay
  • Early Viewing Advised
  • Popular Location
  • Excellent Commuter Links
  • Spacious Throughout
  • Ideal First Time Buy
  • EPC Rating. Council Tax Band B. Freehold Tenure.

**FOUR BEDROOMS. FAMILY HOME. POPULAR LOCATION. EARLY VIEWING ADVISED. NO ONWARD CHAIN DELAY. FREEHOLD TENURE.**


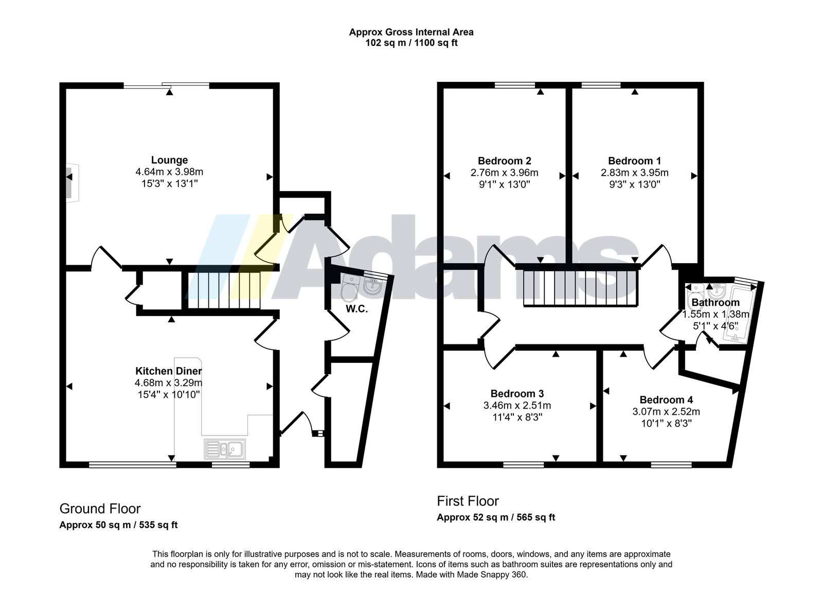
Adams Real Estate are delighted to present this spacious and well-designed four-bedroom mid-townhouse, offering generous family living in a convenient and practical layout. This home is perfect for families seeking both comfort and versatility, with thoughtful features throughout along with the property benefitting from full central heating.


The ground floor is centered around a bright and airy open-plan kitchen and dining room, ideal for family meals and entertaining. The adjoining living room provides a cozy yet spacious area to unwind, ground floor WC and a large storage room and additional storage cupboard complete this level, adding convenience to daily life.


Upstairs, the property features four well-proportioned bedrooms, providing ample space for family members or guests. A modern family bathroom completes the first floor, catering to the needs of a busy household.


Externally, the fully enclosed rear garden offers a private and secure outdoor area. 


With its well-balanced layout, practical features, and family-oriented design, this property is an excellent choice for those seeking a low-maintenance yet spacious home. Early viewing is highly recommended—call today to arrange yours!


Viewing


By prior appointment only through our Runcorn Office.

Note


All measurements are approximate. No appliances or central heating systems referred to within these particulars have been tested and therefore their working order cannot be verified. Floorplans are for guide purposes only and all dimensions are approximate.

Important Information

  • This is a Freehold property.
  • This Council Tax band for this property is: B

Property Ref: 8_1085872

Share:

Similar Properties

Camrose Close, Runcorn

2 Bedroom Terraced House | Offers Over £130,000

**TWO BEDROOM TOWN HOUSE. NO ONWARD CHAIN DELAY. PLEASANT GARDEN & OFF ROAD PARKING. FREEHOLD TENURE. CUL-DE-SAC LOCATIO...

Micklegate, Runcorn

3 Bedroom Terraced House | Offers Over £130,000

**THREE BEDROOMS. MID TERRACE. POPULAR LOCATION. ENCLOSED GARDENS. EARLY VIEWING ADVISED. FREEHOLD TENURE.**

Handforth Lane, Runcorn *TENANT IN SITU*

3 Bedroom Terraced House | £125,000

**THREE BEDROOMS. LONG STANDING TENANT IN SITU. IDEAL INVESTMENT. POPULAR LOCATION. FREEHOLD TENURE. EARLY VIEWING ADVIS...

Cotton Lane, Runcorn *TENANT IN SITU*

4 Bedroom Terraced House | £137,000

**FOUR BEDROOMS. LONG STANDING TENANT IN SITU. IDEAL INVESTMENT. ENSUITE BATHROOM. POPULAR LOCATION. FREEHOLD TENURE. EA...

Cotton Lane, Runcorn *TENANT IN SITU*

4 Bedroom Terraced House | £137,000

**FOUR BEDROOMS. LONG STANDING TENANT IN SITU. IDEAL INVESTMENT. EN-SUITE BATHROOM. POPULAR LOCATION. FREEHOLD TENURE. E...

Cotton Lane, Runcorn **TENANT IN SITU**

4 Bedroom Terraced House | £137,000

**FOUR BEDROOMS. LONG STANDING TENANT IN SITU. IDEAL INVESTMENT. ENSUITE BATHROOM. POPULAR LOCATION. FREEHOLD TENURE. EA...

Adams Estate Agents (Runcorn)

54 High Street, Runcorn, Cheshire, WA7 1AW

01928 574401

How much is your home worth?

Use our short form to request a valuation of your property.

Request a Valuation

Mortgage Calculator

Amount Borrowed: £
Total Amount Repayable: £
Total Monthly Payment: £
©2026 The Guild of Property Professionals. All rights reserved. Terms and Conditions | Privacy Policy | Cookie Policy | Complaints Policy | Members Login
The Guild of Property Professionals Trading Address: 121 Park Lane, London W1K 7AG. GPEA Limited. Registered in England & Wales.  Company No: 02819824.  Registered Office Address: 2 St. Stephen's Court, St. Stephen's Road, Bournemouth, Dorset, England, BH2 6LA.  VAT Registration No: 576 8795 61
Book a Property Valuation Update Cookies Preferences