Windsor Drive, Rustington, West Sussex, BN16

£560,000
SSTC
This property listing is now SSTC

4 Bedroom Detached House for sale in Rustington

4
  • Ascot Design Detached House
  • Popular Parklands Estate
  • 4 Bedrooms
  • En suite to master bedroom
  • Ground floor cloakroom
  • Conservatory
  • West Facing Garden
  • Double width Garage

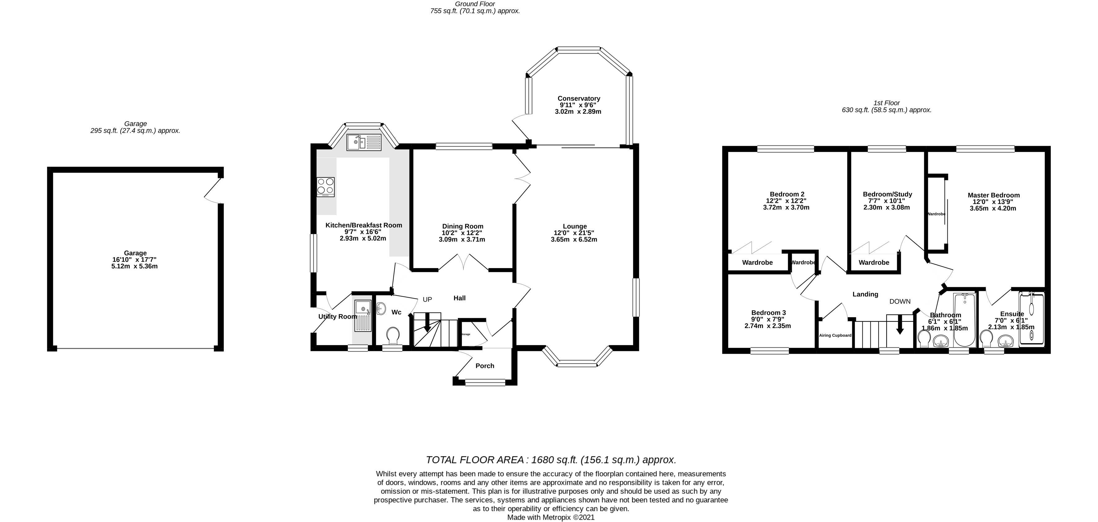
The "Ascot Design" is a fantastic 4 bedroom detached house found on the extremely popular "Parklands Estate" with spacious accommodation throughout, these properties are great homes. The house is presented beautifully with tasteful modern decor, making this property ready to move straight in to. Rooms include, LOUNGE, DINING ROOM, CONSERVATORY, EAT IN KITCHEN, UTILITY, DOWNSTAIRS W/C, 4 BEDROOMS, FAMILY BATHROOM and ENSUITE TO MASTER, as well as a DOUBLE GARAGE. Early viewing of this property is highly recommended, so please call 01903 772345 now.

Ground Floor accommodation: The lounge is a fantastically bright room thanks to the bay window and west facing conservatory which is accessed from the rear of the lounge. The dining room also has double connecting door onto the sitting room as well as from the hallway , giving the property a fantastic flow. The kitchen is large enough for a breakfast table and there is a separate utility room. The property has an East/West aspect with a stunning West facing garden. There is a patio area and access into the detached double garage.

Upstairs: the master bedroom is a large double room with ensuite facility fitted with a shower. The three further bedrooms are all double rooms making it an excellent family home. The main bathroom is a modern suite and has a bath with overhead shower.

Outside there is hard standing for two cars as well as a double width garage boasting a pitched roof to allow plenty of storage.

Important Information

  • This is a Freehold property.

Property Ref: 59428_RUS150132

Share:

Similar Properties

Fosters Close, East Preston, Littlehampton, West Sussex, BN16

3 Bedroom Apartment | £550,000

Graham Butt Estate Agents are thrilled to present this exquisite ground-floor apartment in the prestigious Fosters compl...

Amberley Road, Rustington, Littlehampton, West Sussex, BN16

2 Bedroom Detached Bungalow | £550,000

Nestled on a peaceful private road, this detached bungalow enjoys a prime location just moments from both Rustington Vil...

West Parade, Worthing, West Sussex, BN11

2 Bedroom Apartment | £550,000

** SOLD VIA GRAHAM BUTTS - THIS PROPERTY HAS JUST EXCHANGED CONTRACTS **Exclusive to Graham Butt Worthing is this rare o...

Normandy Drive, East Preston, Littlehampton, West Sussex, BN16

3 Bedroom Bungalow | £580,000

A rare opportunity to purchase this exceptional THREE bedroom detached family home in this favoured East Preston Village...

Glenville Road, Rustington, Littlehampton, West Sussex, BN16

3 Bedroom Detached Bungalow | Offers Over £600,000

This Three bedroom detached bungalow is situated in a fantastic location and offers incredible flexibility in its layout...

Merton Avenue, Rustington, West Sussex, BN16

3 Bedroom Detached Bungalow | £600,000

Exclusive to Graham Butt Estate Agents is this impressive and highly versatile detached family home, perfectly positione...

Graham Butt Estate Agents (Rustington)

88 Woodlands Avenue, Rustington, West Sussex, BN16 3EY

01903 772345

How much is your home worth?

Use our short form to request a valuation of your property.

Request a Valuation

Mortgage Calculator

Amount Borrowed: £
Total Amount Repayable: £
Total Monthly Payment: £
©2025 The Guild of Property Professionals. All rights reserved. Terms and Conditions | Privacy Policy | Cookie Policy | Complaints Policy | Members Login
The Guild of Property Professionals Trading Address: 121 Park Lane, London W1K 7AG. GPEA Limited. Registered in England & Wales.  Company No: 02819824.  Registered Office Address: 2 St. Stephen's Court, St. Stephen's Road, Bournemouth, Dorset, England, BH2 6LA.  VAT Registration No: 576 8795 61
Book a Property Valuation Update Cookies Preferences