Fairycroft Road, Saffron Walden

Guide Price
£580,000
SSTC
This property listing is now SSTC

3 Bedroom Terraced House for sale in Saffron Walden

1 3 1
  • Attractive Victorian home in a prime central location
  • Stunning vaulted kitchen with skylights, island and glazed garden doors
  • Sitting room with bay window, bespoke cabinetry and log-burning stove
  • Three bedrooms arranged over two upper floors.
  • Landscaped rear garden with terrace and lawn
  • Walking distance to the Market Square and highly regarded local schools

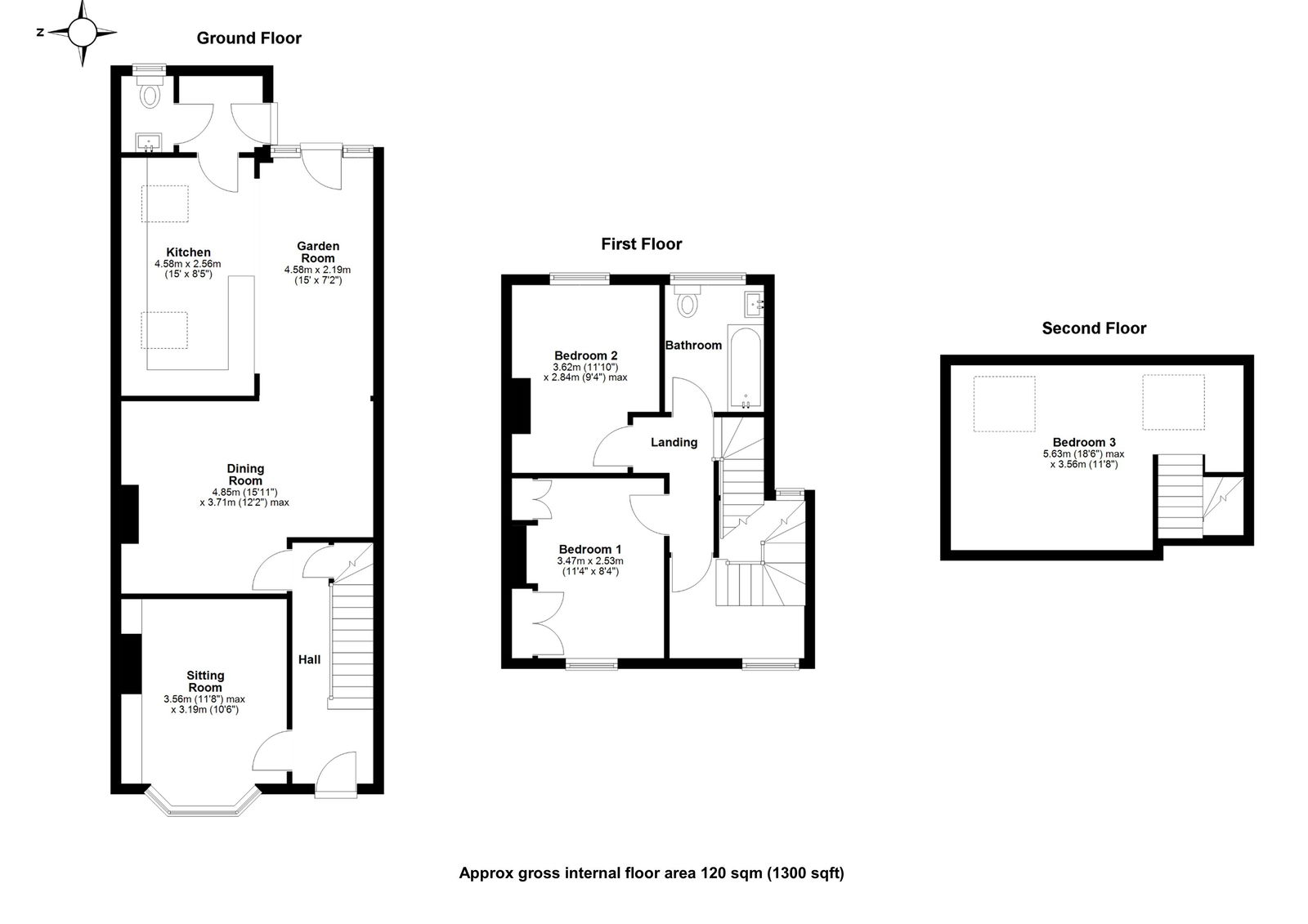
The property has been thoughtfully modernised throughout, with a strong emphasis on light, flow and functionality, creating a home perfectly suited to modern family life while retaining the warmth and character of its Victorian origins. The ground floor opens via a welcoming entrance hall, leading into a cosy sitting room at the front of the house. Anchored by a classic bay window, this inviting space features bespoke fitted cabinetry and a characterful log-burning stove, creating a warm and intimate room ideal for relaxed evenings. 

To the rear, the accommodation opens into a generous dining area which flows seamlessly into the showpiece of the home — a stunning vaulted kitchen. Recently installed, this beautifully designed space is flooded with natural light from overhead skylights and glazed doors opening directly onto the garden. Shaker-style cabinetry, a substantial central island with breakfast bar seating and high-quality appliances combine to create a kitchen that is both practical and visually striking, ideal for everyday living and entertaining alike. A useful utility area and separate WC are discreetly positioned beyond. The first floor offers two well-proportioned bedrooms, including a principal bedroom with bespoke fitted wardrobes, alongside a beautifully presented second bedroom currently arranged as a child’s room. A stylish family bathroom serves this floor, complemented by a thoughtfully incorporated study area on the landing — ideal for home working or homework space. Stairs rise to the second floor where a charming third bedroom occupies the loft space. Bathed in natural light from Velux windows, this room benefits from excellent eaves storage and bespoke cabinetry, making it a flexible and comfortable guest bedroom or teenager’s retreat.

Important Information

  • This is a Freehold property.
  • This Council Tax band for this property is: D

Property Ref: 1341102

Share:

Similar Properties

Elm Court, Elmdon

4 Bedroom Terraced House | Guide Price £575,000

This beautifully presented four-bedroom, two-bathroom home in the heart of Elmdon offers a versatile layout complemented...

Lancaster Lane, Saffron Walden

4 Bedroom Detached House | Offers Over £565,000

A well-proportioned four-bedroom detached property extending to 1594sqft, occupying a favourable position within easy re...

Smallbridge Road, Saffron Walden

4 Bedroom Link Detached House | Offers Over £550,000

A surprisingly spacious four-bedroom family home forming part of an exclusive modern development in the sought-after mar...

Townsend Close, Barkway, Royston

3 Bedroom Detached House | Guide Price £595,000

An impressive and well-proportioned three-bedroom detached home, nestled in the desirable village of Barkway. Boasting a...

Thaxted Road, Debden

5 Bedroom Semi-Detached House | £600,000

A delightful Grade II Listed thatched cottage, rich in period charm and thoughtfully extended to create a versatile fami...

Frambury Lane, Newport

3 Bedroom Detached House | Guide Price £600,000

An attractive four-bedroom detached property which is beautifully presented throughout, in this slightly elevated positi...

Arkwright & Co (Saffron Walden)

Saffron Walden, Essex, CB10 1ES

01799 668600

How much is your home worth?

Use our short form to request a valuation of your property.

Request a Valuation

Mortgage Calculator

Amount Borrowed: £
Total Amount Repayable: £
Total Monthly Payment: £
©2026 The Guild of Property Professionals. All rights reserved. Terms and Conditions | Privacy Policy | Cookie Policy | Complaints Policy | Members Login
The Guild of Property Professionals Trading Address: 121 Park Lane, London W1K 7AG. GPEA Limited. Registered in England & Wales.  Company No: 02819824.  Registered Office Address: 2 St. Stephen's Court, St. Stephen's Road, Bournemouth, Dorset, England, BH2 6LA.  VAT Registration No: 576 8795 61
Book a Property Valuation Update Cookies Preferences