East Street, Saffron Walden

Guide Price
£495,000

Office for sale in Saffron Walden

  • Rare freehold opportunity in central Saffron Walden
  • Outstanding potential for redevelopment or bespoke home creation
  • Planning submitted for residential conversion and detached garage (UTT/24/3029/FUL)
  • Income-producing asset – £22,000 p.a, with Lease in place until April 2029 with break option in 2027
  • Private garden & off street parking
  • Short walk to shops, schools and The Common

The Property

A rare and compelling freehold opportunity, Linden House occupies a discreet yet highly convenient position just off East Street, within the established setting of John Dane Player Court.

The Accommodation

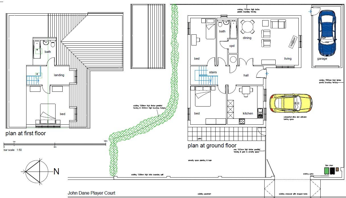
Currently arranged as a commercial premises, the accommodation extends to a series of well-proportioned office spaces, with four rooms at ground floor level alongside a kitchen and ancillary facilities, and two further generous rooms above. The layout, together with the building’s inherent character and proportions, lends itself exceptionally well to conversion into an elegant private residence, subject to the necessary consents.

Planning has been submitted to facilitate a full change of use to residential, together with the addition of a detached garage (Ref: UTT/24/3029/FUL), unlocking the potential to create a thoughtfully designed home combining modern living with a central yet peaceful setting. The position offers an appealing balance of privacy and accessibility, with the town centre, The Common, well-regarded schools and everyday amenities all within a short walk. 

From an investment perspective, the property is currently let on a lease expiring in April 2029, producing an income of £22,000 per annum, with a tenant break option in 2027. This provides both immediate income and a clear pathway for future development or owner occupation.

Important Information

  • This is a Freehold property.

Property Ref: 1076561

Share:

Similar Properties

Bull Lane, Langley Upper Green

3 Bedroom Detached House | Guide Price £495,000

A superb Grade II listed, three-bedroom detached cottage of character, this property occupies a pleasant and elevated po...

Walden Road, Littlebury

3 Bedroom End of Terrace House | Guide Price £475,000

A truly charming three bedroom period cottage, occupying a pleasant position nestled away within the picturesque village...

Church Street, Saffron Walden

3 Bedroom End of Terrace House | Offers Over £475,000

A beautiful and recently refurbished two/three bedroom period town house, located on the picturesque and historic Church...

Debden Road, Saffron Walden

Commercial Property | Offers Over £500,000

Retail & Residential Investment For Sale with Development Potential

Shepherds Way, Saffron Walden

3 Bedroom Semi-Detached House | Guide Price £500,000

A well-proportioned three-bedroom semi-detached property extending to 1472 sqft, ideally located within walking distance...

Town Street, Thaxted, Dunmow, CM6 2LD

5 Bedroom Commercial Property | £500,000

An attractive, distinctive and substantial two storey mixed use Freehold opportunity with potential to redevelop the exi...

Arkwright & Co (Saffron Walden)

Saffron Walden, Essex, CB10 1ES

01799 668600

How much is your home worth?

Use our short form to request a valuation of your property.

Request a Valuation

Mortgage Calculator

Amount Borrowed: £
Total Amount Repayable: £
Total Monthly Payment: £
©2026 The Guild of Property Professionals. All rights reserved. Terms and Conditions | Privacy Policy | Cookie Policy | Complaints Policy | Members Login
The Guild of Property Professionals Trading Address: 121 Park Lane, London W1K 7AG. GPEA Limited. Registered in England & Wales.  Company No: 02819824.  Registered Office Address: 2 St. Stephen's Court, St. Stephen's Road, Bournemouth, Dorset, England, BH2 6LA.  VAT Registration No: 576 8795 61
Book a Property Valuation Update Cookies Preferences