Easton Common Hill, Winterslow, Salisbury, Wiltshire, SP5

£975,000

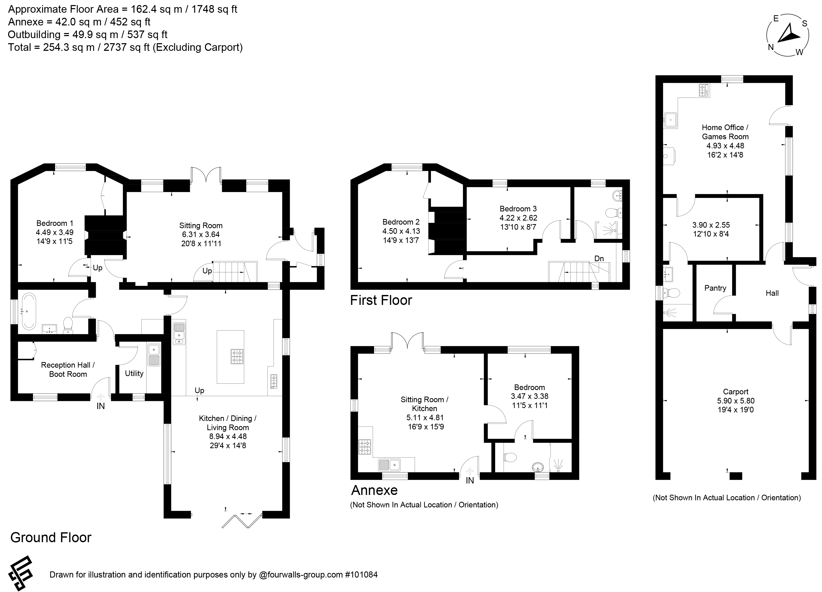
4 Bedroom Detached House for sale in Salisbury

4
  • TRANQUIL RURAL SETTING
  • AMAZING COUNTRY WALKS
  • EXTENSIVE OUTRIDING
  • THREE HIGH QUALITY BUILDINGS
  • ATTRACTIVE COUNTRY VIEWS

An extended detached cottage (not Listed) with impressive accommodation featuring an excellent open plan kitchen/dining/living area and three double bedrooms with excellent fully refurbished outbuildings divided into versatile rooms with double car port to one end. The property stands in a secluded 1.34 acre plot with many mature oak trees and attractive gardens. The rear boundary is located along the county border, and whilst the property is situated in Wiltshire, ideal for schooling in Salisbury, the stunning main outlook is over rolling Hampshire countryside. The property is accessed off a 400m long track forming part of the Clarendon Way, a byway offering excellent out-riding, walking and cycling.

Important Information

  • This is a Freehold property.

Property Ref: STO250126

Share:

Similar Properties

Upper Clatford, Andover, Hampshire SP11

5 Bedroom House | Offers in region of £950,000

An individual detached five double bedroom village house offering comprehensive and characterful accommodation with plen...

Mill Lane, East Winterslow, Salisbury, Wiltshire, SP5

4 Bedroom Detached House | Guide Price £950,000

An excellent detached brand new 4/5 bedroom family house with well appointed and particularly spacious accommodation sta...

East Cholderton, Andover, Hampshire, SP11

4 Bedroom Detached House | £950,000

A spacious detached cottage featuring spacious principal rooms and a beautiful mature private garden extending to just o...

Heathman Street, Nether Wallop, Stockbridge, Hampshire, SO20

4 Bedroom Detached House | £985,000

An individual detached family house featuring spacious, light and airy accommodation with double garage and a granary ba...

Sarum Close, Winchester, Hampshire, SO22

4 Bedroom Detached House | £1,025,000

A good looking detached modern family house with well enclosed private garden and double garage in a tucked away positio...

South Road, Broughton, Stockbridge, Hampshire, SO20

5 Bedroom Detached House | £1,050,000

A unique property comprising a 4 bedroom house and completely self contained annexe all completely modernised and enjoyi...

Evans & Partridge (Stockbridge) (Stockbridge)

Stockbridge, Hampshire, SO20 6HF

01264 810 702

How much is your home worth?

Use our short form to request a valuation of your property.

Request a Valuation

Mortgage Calculator

Amount Borrowed: £
Total Amount Repayable: £
Total Monthly Payment: £
©2026 The Guild of Property Professionals. All rights reserved. Terms and Conditions | Privacy Policy | Cookie Policy | Complaints Policy | Members Login
The Guild of Property Professionals Trading Address: 121 Park Lane, London W1K 7AG. GPEA Limited. Registered in England & Wales.  Company No: 02819824.  Registered Office Address: 2 St. Stephen's Court, St. Stephen's Road, Bournemouth, Dorset, England, BH2 6LA.  VAT Registration No: 576 8795 61
Book a Property Valuation Update Cookies Preferences