Northlands Road Winterton

Guide Price
£110,000
SSTC
This property listing is now SSTC

Land for sale in Scunthorpe

  • SOUGHT AFTER VILLAGE LOCATION
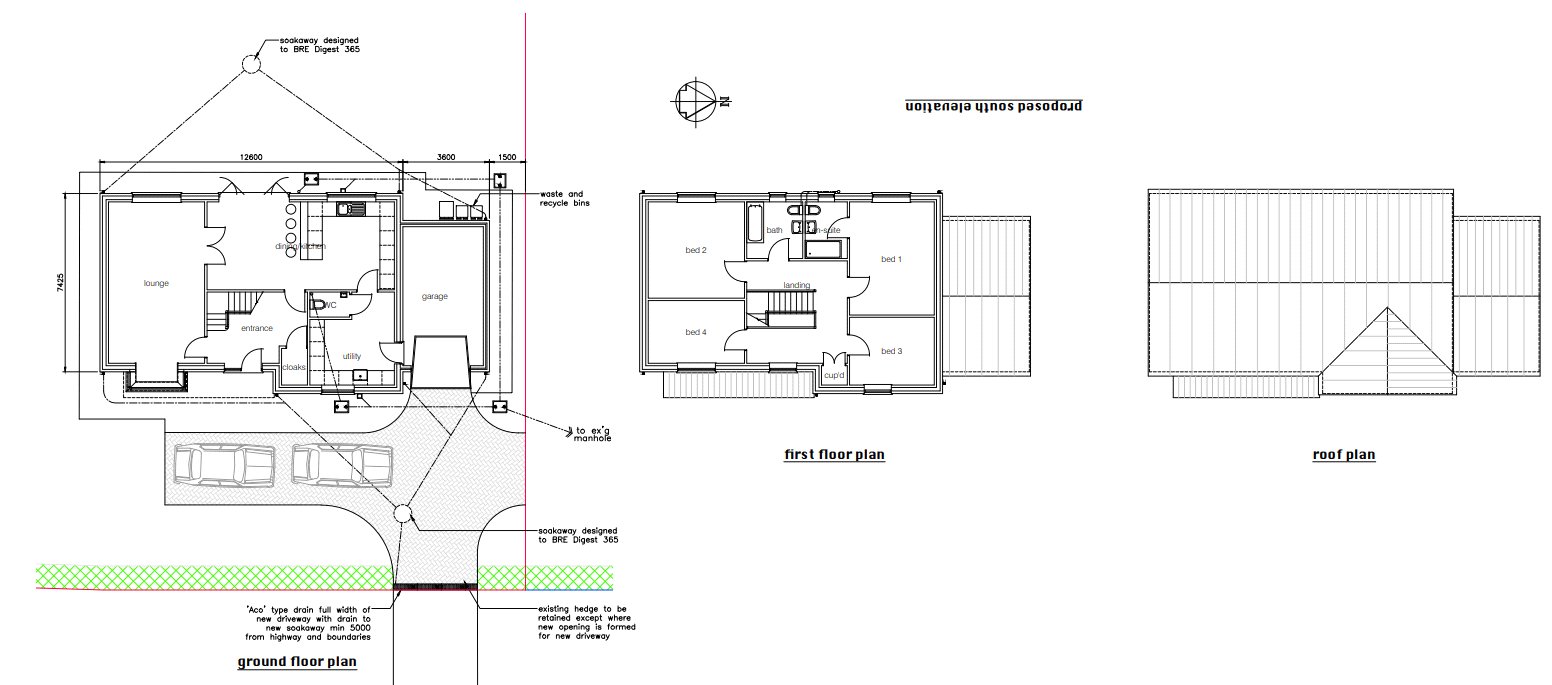
  • FULL PLANNING PERMISSION GRANTED
  • SPACIOUS FOUR BEDROOM DETACHED FAMILY HOME
  • OPEN PLAN KITCHEN DINER & UTILITY ROOM
  • SPACIOUS LOUNGE
  • FOUR GENEROUS BEDROOMS WITH MASTER EN-SUITE
  • OPPORTUNITY FOR FUTHER LAND IF REQUIRED

Rare Development Opportunity in the Sought-After Village of Winterton

A fantastic opportunity to purchase a prime residential site with full planning permission granted for a four-bedroom detached family home. Located in the highly regarded village of Winterton, this plot offers the chance to create a truly special and bespoke home in a well-connected and desirable location.

Winterton boasts a wide range of amenities, including shops, schools, pubs, and other local conveniences. The village is ideally situated just a short drive from the Humber Bridge and the towns of Brigg, Grimsby, and Immingham, as well as Humberside International Airport—making it perfect for commuters and families alike.

The site benefits from approved planning permission under application number PA/2024/20. The land currently included in the application is outlined in red; however, the seller is open to negotiating the inclusion of additional adjacent land—outlined in blue and pink—subject to offer.

Viewings are highly recommended to fully appreciate the scope and potential of this exceptional development plot.

**POPULAR VILLAGE LOCATION

**FANTASTIC OPPORTUNITY

**SUBSTANTIAL DETACHED FAMILY HOME

Important Information

  • This is a Freehold property.
  • This property is exempt from EPC Rating

Property Ref: PFS_PFS250338

Share:

Similar Properties

Messingham Road Scunthorpe

3 Bedroom Semi-Detached House | Asking Price £110,000

**SPACIOUS SEMI-DETACHED HOME **FANTASTIC INVESTMENT OPPORTUNITY **GENEROUS REAR GARDEN

Messingham Road, Scunthorpe, Lincolnshire, DN17

3 Bedroom Semi-Detached House | £110,000

**SPACIOUS SEMI-DETACHED HOME**FANTASTIC INVESTMENT OPPORTUNITY**GENEROUS REAR GARDEN

Woodland View, Scunthorpe, Lincolnshire, DN15

3 Bedroom Semi-Detached House | Guide Price £110,000

**POPULAR RESIDENTIAL LOCATION**FOR SALE VIA THE MODERN METHOD AUCTION**SCHEME OF MODERNISATION REQUIRED

North Parade Ashby

2 Bedroom Semi-Detached House | Asking Price £115,000

**2 BED SEMI-DETACHED HOUSE **RECENTLY REFURBISHED THROUGHOUT **IDEAL TURN KEY HOME **FIRST TIME BUY OR INVESTMENT OPPOR...

North Parade, Ashby, Scunthorpe, Lincolnshire, DN16

2 Bedroom Semi-Detached House | £115,000

**2 BED SEMI-DETACHED HOUSE**RECENTLY REFURBISHED THROUGHOUT**IDEAL TURN KEY HOME**FIRST TIME BUY OR INVESTMENT OPPORTUN...

Hilton Avenue Scunthorpe

3 Bedroom Terraced House | Asking Price £119,950

** 3 BEDROOM MID TERRACE HOUSE ** IDEAL FIRST TIME BUY/INVESTOR PURCHASE ** 2 RECEPTION ROOMS ** VIEWING IS RECOMMENDED

Paul Fox (Scunthorpe)

Scunthorpe, North Lincolnshire, DN15 7PN

01724 282868

How much is your home worth?

Use our short form to request a valuation of your property.

Request a Valuation

Mortgage Calculator

Amount Borrowed: £
Total Amount Repayable: £
Total Monthly Payment: £
©2025 The Guild of Property Professionals. All rights reserved. Terms and Conditions | Privacy Policy | Cookie Policy | Complaints Policy | Members Login
The Guild of Property Professionals Trading Address: 121 Park Lane, London W1K 7AG. GPEA Limited. Registered in England & Wales.  Company No: 02819824.  Registered Office Address: 2 St. Stephen's Court, St. Stephen's Road, Bournemouth, Dorset, England, BH2 6LA.  VAT Registration No: 576 8795 61
Book a Property Valuation Update Cookies Preferences