Main Street, North Sunderland, Seahouses, Northumberland

£625,000

4 Bedroom Commercial Property for sale in Seahouses

2 4 5
  • Stunning period home
  • Integral business premises
  • Stone built period property
  • Very well presented
  • Versatile spaces
  • Coastal
  • Very sought-after location
  • Good transport links
  • Well positioned to serve various locations

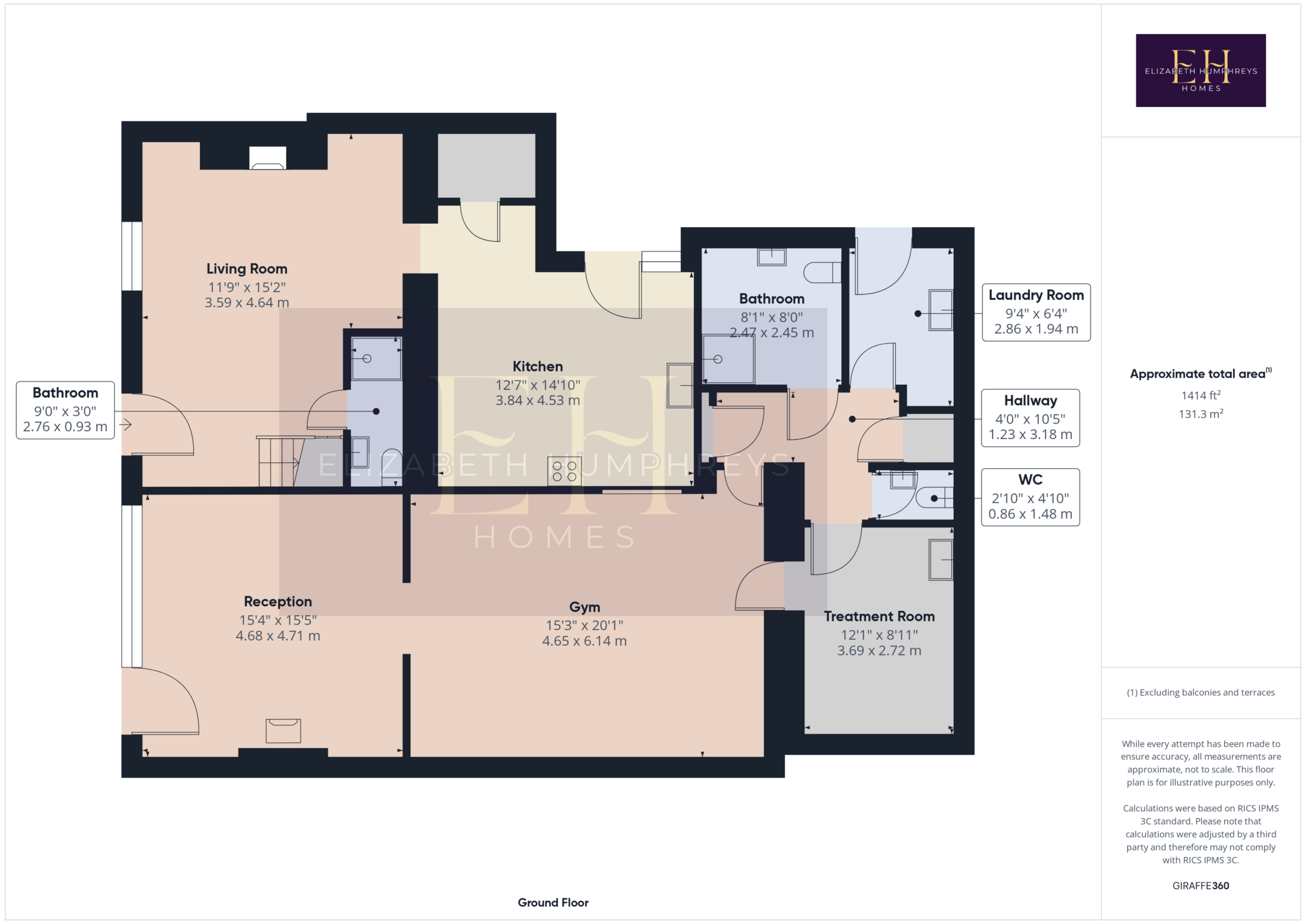
BUSINESS PREMISES PLUS 4 BED 5 BATH HOME A superb property brimming with the potential to realise your dream – either preferring to combine the residential property with a spacious business facility, creating one large residential dwelling or converting the business premises into a holiday annexe – there are endless possibilities! Elizabeth Humphreys Homes are delighted to welcome to the market this fabulous property located in the conservation area of the Northumberland village of North Sunderland, Seahouses, overlooking the impressive St Paul’s Church. Currently a spacious, well presented home with an attached integral business premises comprising a reception room, well equipped gym, facilities and treatment room for Personal Training, Sports Massage and other physical therapies, this property presents a hugely exciting opportunity. Amongst its many features are double glazed sash windows throughout, Welsh slate main roof, glorious exposed sandstone walls, composite doors, under floor heating with natural stone floor tiles at ground level, original floorboards on the first floor, oil central heating, and all the other usual mains connections. The property benefits from a professionally installed local area network serving both the house and the business premises. This comprises network sockets and Ubiquiti UniFi wireless access points throughout the entire building, all routed back to a patch panel and data cabinet with associated routers in the house under stairs cupboard.

North Sunderland is joined to the bustling harbour village of Seahouses, which is a colourful and vibrant community with fantastic local amenities such as the wonderful Hub which, as well as being a music/theatre/arts centre, has also been home to a state of the art cinema since 2013. With fresh seafood brought in every day and a fabulous selection of restaurants and pubs, Seahouses is an ideal place for any foodie. The property is only 1km (10-15 minutes walk) from either the spectacular Seahouses North beach or the village itself. Only a couple of miles north is the stunning village of Bamburgh, which, with its wide expanse of sandy beaches and imposing castle, it is the perfect place for a good walk.

The property incorporates two distinct parts: One business and one residential. The business part is ground floor only and is configured to allow convenient access to a gym with functional rooms to the rear. The front door opens into a reception room with three large windows overlooking the front and the church. The exposed stone walls create a lovely look, ceiling spotlights add to the brightness and a log burner in the centre of the room with a black slate tiled hearth and a wood surround forms an attractive focal point. A chain screen with decorative gym graphic leads into a room currently utilised as a spacious, well equipped gym with exposed stone walls combined with attractive lime hemp plaster. The sandstone floor tiles match those of the previous room creating a seamless transition between the different spaces.

Adjacent to the gym is the treatment room. With two Velux windows, multi coloured slate flooring, cupboard storage and access to water this a superb additional space which could be converted into a kitchen if you so wished. From a corridor to the side of the gym there is a suite of functional rooms all with a matching multi-coloured slate floor: An accessible toilet comprising a close coupled toilet with a wall hung hand wash basin with a harlequin splash back tile, a separate changing room incorporating a shower with wet walling and an additional toilet, and a separate utility room with a single bowl stainless steel sink, a range of cupboards, and space and plumbing for a washing machine. There are also useful storage cupboards one of which houses the electrical consumer unit and the under floor heating manifold. A composite door provides external access.

The residential dwelling features exposed sandstone walls throughout, creative lighting, ground floor under floor heating and many rooms with high ceilings adding to the sense of space. A composite front door opens into the lounge which is an inviting room in which to spend time with family and friends. The room features an impressive inglenook fireplace housing a log burner set upon a black slate tiled hearth with a wood surround. Sandstone flags and original exposed ceiling beams finish the space stylishly. Incorporated into the recessed area beneath the stairs, is a beneficial shower room which showcases a lovely curved exposed sandstone wall. There is a shower with wet walling, a close coupled toilet with a push button behind and a wall hung half pedestal hand wash basin with an attractive splash back tile behind. Stairs, with storage beneath, lead to the first floor and a window overlooks the front of the property.

The kitchen is located to the rear of the property and features two Velux windows allowing for natural light. There are a good number of wall and base units with a sage green coloured door complemented by a natural oiled oak worktop and sandstone splash back. There is a 6-burner induction hob beneath an extractor fan, a bowl and a half white ceramic sink dropped into the work surface and plumbing and space for a washing machine. There is a central island which provides further seating, space for an American style fridge freezer and space for a dishwasher. A chrome ladder heated towel rail is the ideal place to dry tea towels, and an easily accessible cupboard provides space for the boiler and tumble dryer. A door provides external access to a rear courtyard which has been finished with block paving and is a lovely space in which to relax after the hustle and bustle of the day.

Taking the stairs to the first floor, the landing with exposed stone opens out to four bedrooms and three bathrooms. Eaves storage is available and two large windows with original exposed wood lintels allow plenty of natural light to circulate adding to the sense of airiness and space.

The primary bedroom is a large super king-sized room with a view over the rear courtyard. This restful room features original wooden floorboards and an exposed whin sill stone wall plus an en-suite which comprises a good-sized shower with wet walling and a water fall shower head and a separate shower head within, a concealed cistern toilet with storage above, a chrome heated towel rail and a half pedestal wall hung hand wash basin with an attractive splash back. The space has been finished with non-slip flooring.

Bedroom 2 is a spacious double with a fireplace forming an attractive focal point. A window takes advantage of views to the front of the property and there are fitted wardrobes offering excellent storage. The en-suite comprises a Quadrant shower cubicle with a water fall shower head and a separate shower head within, a concealed cistern toilet with a push button behind, a chrome heated towel rail and a half pedestal hand wash basin with a mixer tap above. The space is finished with wet walling and non-slip flooring.

Bedroom 3 is a large double room with built in wardrobes. A large window allows a wealth of natural light which illuminates the exposed stone and original floorboards perfectly.

Bedroom 4 is currently used as an office and is a good size dual aspect room with one window to the front and another to the side. There is a log burner within another exposed stone inglenook fireplace with slate hearth and original floorboards so this room could be utilised as an upstairs living room if you so wished.

The Heritage style family bathroom, with vinyl flooring, comprises a toilet with a handle above, a bath with a separate shower attachment, a hand wash basin within a vanity unit with exposed stone wall and a chrome ladder towel rail ensures added comfort. A large window, with privacy glass, overlooks the side of the property. A beautifully presented well designed space.

Tenure: Freehold
Council Tax Band: D, £2,390.92 for the 2025-26 financial year
EPC: E

Important Note:
These particulars, whilst believed to be accurate, are set out as a general guideline and do not constitute any part of an offer or contract. Intending purchasers should not rely on them as statements of representation of fact but must satisfy themselves by inspection or otherwise as to their accuracy. Please note that we have not tested any apparatus, equipment, fixtures, fittings or services including central heating and so cannot verify they are in working order or fit for their purpose. All measurements are approximate and for guidance only. If there is any point that is of particular importance to you, please contact us and we will try and clarify the position for you.

Property Ref: 562345_NLW819336

Share:

Similar Properties

Main Street, North Sunderland, Seahouses, Northumberland

4 Bedroom Link Detached House | £625,000

** 4 BED 5 BATH HOME PLUS BUSINESS PREMISES ** A superb property brimming with the potential to realise your dream – eit...

Springwood, Swarland, Morpeth, Northumberland

5 Bedroom Detached House | £625,000

Elizabeth Humphreys Homes are extremely pleased to bring to the market this fabulous five bedroom detached property comp...

Argyle Street, Alnmouth, Alnwick, Northumberland

5 Bedroom Terraced House | Offers Over £600,000

An impressive three storey property boasting scenic estuary views. Elizabeth Humphreys Homes are delighted to welcome to...

Kenmore Road, Swarland, Morpeth, Northumberland

5 Bedroom Detached Bungalow | Offers in region of £645,000

A uniquely designed single storey property that combines the advantages of a bungalow with the look and feel of a barn c...

44 and 44a North End, Longhoughton, Alnwick, Northumberland

4 Bedroom Cottage | £650,000

A pair beautiful ‘chocolate box’ stone-built cottages oozing charm and character. Elizabeth Humphreys Homes are delighte...

Blackwood Place, Swarland, Morpeth, Northumberland

4 Bedroom Detached House | Offers Over £695,000

An immaculately presented executive home offering light and bright contemporary living. Elizabeth Humphreys Homes are de...

Elizabeth Humphreys Homes (Morpeth)

Park Road, Swarland, Morpeth, Northumberland, NE65 9JD

01665 661170

How much is your home worth?

Use our short form to request a valuation of your property.

Request a Valuation

Mortgage Calculator

Amount Borrowed: £
Total Amount Repayable: £
Total Monthly Payment: £
©2025 The Guild of Property Professionals. All rights reserved. Terms and Conditions | Privacy Policy | Cookie Policy | Complaints Policy | Members Login
The Guild of Property Professionals Trading Address: 121 Park Lane, London W1K 7AG. GPEA Limited. Registered in England & Wales.  Company No: 02819824.  Registered Office Address: 2 St. Stephen's Court, St. Stephen's Road, Bournemouth, Dorset, England, BH2 6LA.  VAT Registration No: 576 8795 61
Book a Property Valuation Update Cookies Preferences