The Meadows, Shavington

£425,000

3 Bedroom Cottage for sale in Shavington

3
  • Delightful Cottage
  • Village location
  • 2 Reception rooms
  • 3 Double Bedrooms
  • Spacious family dining kitchen
  • Integrated Appliances
  • Fully Refurbished
  • Enclosed rear garden

We are thrilled to be able to offer for sale this beautiful Chocolate Box cottage with stunning interior located in the highly popular village of Shavington. Having been thoughtfully upgraded over recent years to provide a spacious and inviting family home whilst retaining many original features. In brief the property comprises 3 generous bedrooms, bathroom and ground floor shower room, sitting room with open fireplace, family dining kitchen with fitted appliances and open fireplace, large front garden and enclosed terrace garden, sun loggia off road parking for several vehicles. VIEWING IS ABSOLUTELY ESSENTIAL.

Council Tax Band: D (Cheshire East)
Tenure: Freehold
Parking options: Driveway
Garden details: Enclosed Garden, Front Garden, Terrace
Rights & easements: Shared driveway


Access
This delightful cottage sits well back from the road behind a picket fence and is accessed over a tarmacadam driveway which leads to off road parking for several vehicles and providing access to the rear of the property where the cottage can be entered through a part modesty glazed composite door into:

Boot Room
Opening into the kitchen the boot room area has door to shower room and also to utilities cupboard, wall mounted modern flat panel radiator. Attractive tiled floor.

Shower room
Fitted with a 3 piece suite comprising a walk in shower cubicle with glazed sliding doors housing electric shower, vanity unit wash hand basin with mixer tap over and drawer and cupboard below, low level, push button W.C., tiled flooring, tiled walls, extractor fan. Modesty glazed uPvc high level window to side elevation.

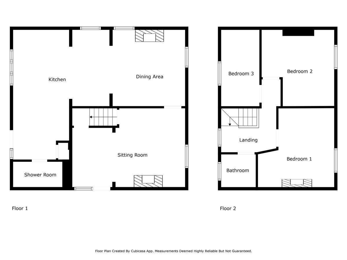
Dining Kitchen / Family room w: 6.55m x l: 8.68m (w: 21' 6" x l: 28' 6")
Open from the boot room the kitchen is fitted with a range of wall, base and drawer units in oak with work surface over incorporating a one and a half bowl resin sink and drainer with mixer tap, integrated dishwasher, integrated washing machine, space for range cooker with extractor over, space for American style fridge/freezer, space for tumble dryer, Lantern to ceiling, inset spotlighting. uPvc double glazed window to rear elevation. Complimentary tiling. Matching central island with storage drawers. Space for dresser. Oak flooring, uPvc double glazed window to side elevation. Dining area has reclaimed pine herringbone flooring, feature open fireplace with slate hearth, radiator, uPvc Georgian bar, sash style lift and tilt, uPvc double glazed window to front elevation. Beams to ceiling. Wooden latch door through to:

Sitting Room w: 5.7m x l: 3.98m (w: 18' 8" x l: 13' 1")
Spacious sitting room with feature brick open fire place with beamed mantel, beamed ceiling, generous understairs store cupboard, latch pine door leading to stairs, double glazed, Georgian bar french doors leading to side elevation uPvc double glazed, lift and tilt sash style window to front elevation. 2 radiators.

Landing
Galleried landing having access to loft, pine latch doors off to all bedrooms and family bathroom. uPvc double glazed window to rear elevation. Radiator.

Bedroom 1 w: 3.85m x l: 3.98m (w: 12' 8" x l: 13' 1")
Large double room with radiator, uPvc sash style lift and tilt double glazed windows to front elevation.

Bedroom 2 w: 3.66m x l: 3.85m (w: 12' x l: 12' 8")
Large double room with radiator, uPvc sash style lift and tilt double glazed windows to front elevation.

Bathroom
Fitted with a three piece suite comprising panelled bath with mixer tap and shower attachment with rainfall head over, pedestal wash hand basin and low level, push button W.C., uPvc modesty glazed window to rear elevation, radiator and tiled walls. Built in storage cupboard, shaver point and spotlight.

Bedroom 3 w: 1.93m x l: 3.85m (w: 6' 4" x l: 12' 8")
Double room with radiator, double glazed windows to rear elevation.

Externally
Sitting on a generous plot the front garden is laid to lawn with substantial shrub borders housing a variety of mature shrubs, trees and plants, the tarmacadam driveway divides the two lawns the smaller of which has a designates 'wheelie bin area for the cottage and the two properties behind. The two houses to the rear have a right of access over the driveway. The side of the property is laid to tarmacadam parking area and an Indian stone patio which leads to the rear of the property and also under the Wisteria covered pergola which creates a secluded spot for your evening G & T!. The rear garden is fenced on all boundaries and not overlooked, again laid to Indian stone patio and provided an excellent space for outside entertaining with outside lighting, outside covered electrical sockets and security cameras. The patio leads around the side of the cottage to an attached, brick built and, we are advised, well insulated 'man cave' . Garden shed and log store. Outside tap.

Energy Performance
The current rating is 61 with a potential of 83.

About Shavington
Shavington is a large village to the south of Crewe and east of Nantwich with a wide range of amenities and excellent commuter links but having the Cheshire countryside only moments away. The village offers an array of amenities including pubs and restaurants, convenience shops, primary and secondary schools, leisure centre, medical practice and pharmacy. There are excellent road links to the larger towns of Nantwich, Crewe and Newcastle-under-Lyme and junction 16 of the M6 is only 6 miles away providing access to all the major cities. The major train station of Crewe is just 2.8 miles (approx.) away and the nearest airports are Manchester and Liverpool to the north and Birmingham to the south.



Viewings
Viewings are strictly by appointment only, please call or email the office to arrange. Thank you.

Looking to sell?
If you are thinking of selling please call or email the office to arrange a free Market Appraisal. Thank you.

Important Information

  • This is a Freehold property.

Property Ref: 632445_RS0653

Share:

Similar Properties

Main Road, Shavington, Crewe

4 Bedroom Cottage | Offers in region of £425,000

WE ARE DELIGHTED TO HAVE BEEN INSTRUCTED TO OFFER FOR SALE A PIECE OF SHAVINGTON HISTORY. One of a row of three cottages...

Aldford Close, Crewe

4 Bedroom Detached House | Offers in region of £425,000

Introducing this exceptional property: a spacious 4 bed detached house with a double garage located in a semi-rural sett...

Lyncroft Close, Crewe

4 Bedroom Detached House | £425,000

Stunning, 4 bedroom, detached family home situated in a peaceful and sought after residential location with large privat...

Broughton Road, Crewe

4 Bedroom Detached House | Offers in region of £475,000

Introducing this stunning detached home, nestled on a very generous plot, this beautifully presented property boasts a s...

Cemetery Road, Weston, Crewe

4 Bedroom Detached House | Offers in region of £650,000

We are thrilled to offer for sale this substantial property with versatile accommodation located in the heart of the pre...

H G Hopkins & Sons, - High Street, Sandbach

3 Bedroom Terraced House | Offers in region of £750,000

Offering for sale a piece of Sandbach history the former 'Gunsmith's shop' with accommodation, workshops and outbuilding...

Wheatcroft & Lloyd (Sandbach)

Sandbach, Cheshire, CW11 1AL

01270 382283

How much is your home worth?

Use our short form to request a valuation of your property.

Request a Valuation

Mortgage Calculator

Amount Borrowed: £
Total Amount Repayable: £
Total Monthly Payment: £
©2025 The Guild of Property Professionals. All rights reserved. Terms and Conditions | Privacy Policy | Cookie Policy | Complaints Policy | Members Login
The Guild of Property Professionals Trading Address: 121 Park Lane, London W1K 7AG. GPEA Limited. Registered in England & Wales.  Company No: 02819824.  Registered Office Address: 2 St. Stephen's Court, St. Stephen's Road, Bournemouth, Dorset, England, BH2 6LA.  VAT Registration No: 576 8795 61
Book a Property Valuation Update Cookies Preferences