Sheep Walk, Shepperton, TW17

Offers in excess of
£500,000

3 Bedroom Semi-Detached Bungalow for sale in Shepperton

2 3 1
  • Good Size Rear Garden
  • No Onward Chain
  • Extended
  • Four Piece Bathroom Suite
  • Private Driveway
  • Close To Shops & Schools
  • In Need Of Some Updating
  • Three Bedrooms

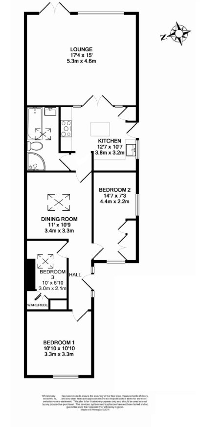
Set within a popular residential position, this spacious three-bedroom semi-detached bungalow presents an exciting opportunity for buyers looking to create a home tailored to their own taste and style.

Offering generous proportions throughout and clear scope for modernisation, this is a property with genuine long-term potential. The accommodation is well laid out, with a central hallway providing access to all principal rooms.

To the rear, a superb 17ft lounge enjoys a pleasant outlook over the garden and offers an ideal space for relaxing or entertaining. The kitchen sits alongside and provides scope to be opened up or reconfigured, subject to the usual permissions, to create a more contemporary open-plan arrangement if desired.

There are three bedrooms in total, all well-proportioned, with the flexibility for one to be used as a dining room or additional reception space depending on individual needs. A four piece family bathroom serves the property, with further potential for updating and reconfiguration.

Externally, the rear garden is a generous size and to the front, there is off-street parking providing convenience and practicality. Properties of this size and potential are increasingly rare to the market.

Whether you are looking to modernise, extend, or simply secure a well-located home with room to grow, this bungalow represents a fantastic opportunity.

Important Information

  • This is a Freehold property.

Property Ref: 29319955

Share:

Similar Properties

Pearmain Close, Shepperton, TW17

2 Bedroom Detached Bungalow | Offers Over £500,000

Bazely & Co are delighted to bring to the market this rarely available detached bungalow, nestled on a fantastic corner...

Birch Grove, Shepperton, TW17

3 Bedroom Semi-Detached Bungalow | Offers in excess of £500,000

Tucked away at the end of a quiet cul-de-sac in a sought-after location, this three bedroom semi-detached bungalow prese...

Hawthorn Way, Shepperton, TW17

3 Bedroom Semi-Detached House | Guide Price £500,000

Situated within a popular residential road in Upper Halliford, Shepperton, this well-proportioned three double bedroom f...

Watersplash Road, Shepperton, TW17

2 Bedroom Bungalow | Guide Price £520,000

A charming two-bedroom semi-detached bungalow, beautifully positioned in Shepperton and enjoying open views across green...

Cambridge Road, Ashford, TW15

3 Bedroom Detached House | Offers in excess of £525,000

Positioned on a popular residential road in Ashford, this beautifully presented detached home offers an exceptional oppo...

Catlin Crescent, Shepperton, TW17

3 Bedroom Semi-Detached House | Guide Price £525,000

Located within a highly sought-after residential crescent in Shepperton, this three bedroom semi-detached family home en...

Bazely & Co (Shepperton)

105 High Street, Shepperton, Middlesex, TW17 9BL

01932 221252

How much is your home worth?

Use our short form to request a valuation of your property.

Request a Valuation

Mortgage Calculator

Amount Borrowed: £
Total Amount Repayable: £
Total Monthly Payment: £
©2026 The Guild of Property Professionals. All rights reserved. Terms and Conditions | Privacy Policy | Cookie Policy | Complaints Policy | Members Login
The Guild of Property Professionals Trading Address: 121 Park Lane, London W1K 7AG. GPEA Limited. Registered in England & Wales.  Company No: 02819824.  Registered Office Address: 2 St. Stephen's Court, St. Stephen's Road, Bournemouth, Dorset, England, BH2 6LA.  VAT Registration No: 576 8795 61
Book a Property Valuation Update Cookies Preferences