8 Roberts Way, Oteley Road, Shrewsbury, SY2 6FU

Offers in region of
£325,000

3 Bedroom Detached House for sale in Shrewsbury

1 3 2
  • Well appointed and well maintained modern detached house
  • Master bedroom with en suite shower room
  • Two further bedrooms and bathroom
  • Living room, kitchen/dining room
  • Enclosed well maintained garden
  • Pleasant corner plot
  • Modern development close to excellent amenities

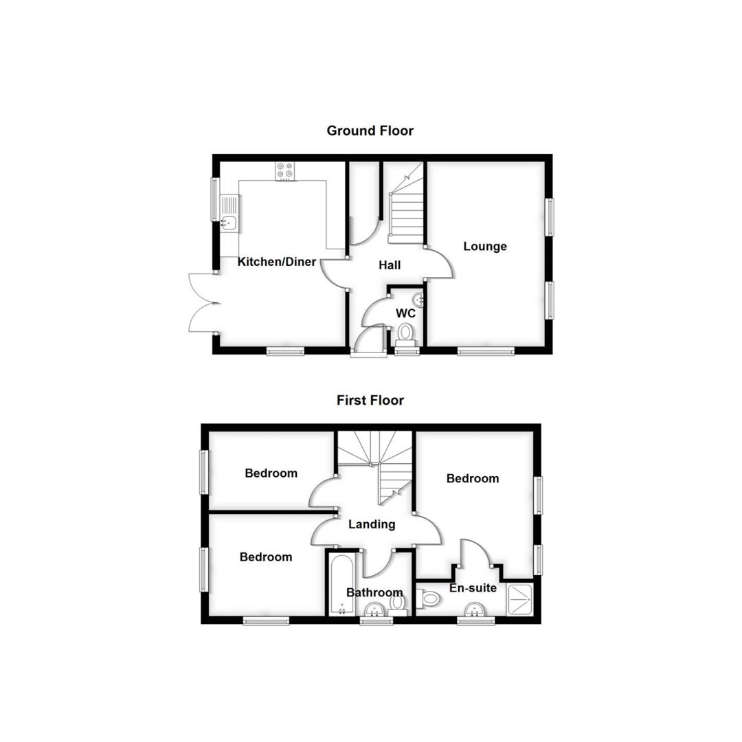
This modern three bedroom detached house provides well proportioned accommodation throughout with rooms of pleasing dimensions. The accommodation includes a welcoming entrance hall, cloakroom, stylish open-plan kitchen/dining room with patio doors to the garden, bright and airy living room, master bedroom with en suite shower room, two further bedrooms and a sleek family bathroom. The property occupies a desirable corner plot with a shallow forecourt and garden to the front. South facing rear garden.

The property is situated on a sought after modern development, on a desirable corner plot, well placed within reach of amenities including shops, schools, bus service to the town centre and within easy reach of the Shrewsbury by-pass with access to the M54 motorway link to the West Midlands.

A particularly well appointed and well maintained three bedroom detached home occupying a pleasant corner plot.

Inside The Property -

Entrance Hall -

Cloakroom -

Living Room - 4.95m x 3.10m (16'3" x 10'2") - Bright and airy room with dual aspect windows

Kitchen / Dining Room - 4.88m x 3.30m (16'0" x 10'10") - Fitted with a range of contemporary matching wall and base units
Integrated fridge freezer, washing machine, dishwasher
Built in oven, four ring gas hob with extractor hood over
Cupboard housing gas fired boiler
Tiled floor
French doors to rear garden.

STAIRCASE rising to FIRST FLOOR LANDING with access to roof space.

Master Bedroom - 3.94m x 3.15m (12'11" x 10'4") - Built in wardrobes

En Suite Shower Room - Shower cubicle
Wash hand basin, wc

Bedroom 2 - 3.07m x 2.69m (10'1" x 8'10") -

Bedroom 3 - 3.30m x 2.08m (10'10" x 6'10") -

Bathroom - Panelled bath
Wash hand basin, wc

Outside The Property -

Single Garage - 6.22m x 3.15m (20'5" x 10'4") - Up and over door
Power and lighting

There is a shallow forecourt and garden to the front with pathway serving the reception area. Long tarmacadam driveway providing ample parking and serving the garage.

The gardens are south facing and neatly laid to lawn with a patio area and pathway. The garden is enclosed by neatly kept closely boarded wooden fencing.

Property Ref: 70030_34261997

Share:

Similar Properties

7 Cross Hill, Shrewsbury SY1 1JH

3 Bedroom Townhouse | Offers in region of £325,000

The property is laid out over 3 floors and is finished to a modern standard with a fitted kitchen, modern bathroom and a...

12 Kenley Avenue, Shrewsbury, SY1 3HA

4 Bedroom Detached House | Offers in region of £325,000

This immaculate four bedroom detached house provides well planned and well proportioned accommodation throughout. The ac...

40 Portland Crescent, Shrewsbury, SY2 5NH

3 Bedroom Detached Bungalow | Offers in excess of £325,000

This spacious, three bedroom detached family bungalow requires some updating, but provides well planned and flexible acc...

Plot 40, The Merrington, Station Road, Baschurch, Shrewsbury, SY4 2BG

3 Bedroom Detached House | £334,995

The Merrington is a fantastic three bedroom detached family home with single integral garage. The accommodation briefly...

117 Holland Drive, Shrewsbury, SY2 5TH

3 Bedroom Detached House | Offers in region of £335,000

This modern detached three bedroom property provides well planned and well proportioned accommodation and is immaculatel...

6 The Wickets, Bomere Heath, Shrewsbury, SY4 3PB

3 Bedroom Detached House | Offers in region of £335,000

This immaculately presented, double fronted, detached three bedroom family home provides spacious accommodation briefly...

Miller Evans (Shrewsbury)

Shrewsbury, Shropshire, SY1 1QJ

01743 236800

How much is your home worth?

Use our short form to request a valuation of your property.

Request a Valuation

Mortgage Calculator

Amount Borrowed: £
Total Amount Repayable: £
Total Monthly Payment: £
©2025 The Guild of Property Professionals. All rights reserved. Terms and Conditions | Privacy Policy | Cookie Policy | Complaints Policy | Members Login
The Guild of Property Professionals Trading Address: 121 Park Lane, London W1K 7AG. GPEA Limited. Registered in England & Wales.  Company No: 02819824.  Registered Office Address: 2 St. Stephen's Court, St. Stephen's Road, Bournemouth, Dorset, England, BH2 6LA.  VAT Registration No: 576 8795 61
Book a Property Valuation Update Cookies Preferences