Meadow Grove, Solihull

£395,000
SSTC
This property listing is now SSTC

3 Bedroom Semi-Detached House for sale in Solihull

3
  • THREE GOOD SIZED BEDROOMS
  • DRIVEWAY
  • LOUNGE
  • DINING ROOM
  • CONSERVATORY
  • DOWNSTAIRS WC
  • BEAUTIFUL ORIGINAL FEATURES
  • GAS CENTRAL HEATING
  • CLOSE TO LOCAL AMENITIES
  • EXCELLENT LOCAL SCHOOLS

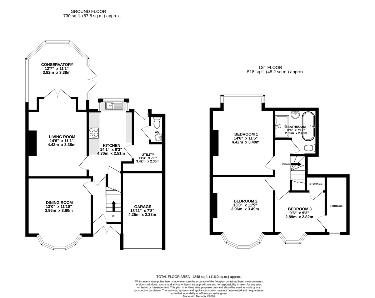
A spacious three bedroom semi detached home in a sought after part of Olton, Solihull. This accommodation has beautiful original features with fireplaces and dado rails. It briefly comprises of a porch, hallway, lounge with feature fireplace, dining room with feature fireplace, conservatory, kitchen and outdoor covered space for a washing machine with velux windows and a downstairs WC. Upstairs there are two double bedrooms and a spacious third bedroom with plenty of storage. The family bathroom is on the first floor which comprises of a walk in shower cubicle and a modern stylish bath. This property has gas central heating throughout and bay windows to the lounge, bedrooms and kitchen. To the front there is a driveway, lawn and electric car charger and to the rear there is a generous garden with a patio area, lawn and shrubbery.

 

APPROACH Tarmac drive, electric car charger, lawn and shrubbery. 

PORCH With light and leaded windows. 

HALLWAY With wooden flooring. 

LOUNGE Double opening doors to the Conservatory and a feature fireplace. 

DINING ROOM A bright spacious room with a bay window to the front, feature fireplace and a dado rail. 

KITCHEN With gas hob, electric oven extractor hood above, tiled flooring and a bay window to rear. 

CONSERVATORY With tiled flooring and underfloor heating. 

SIDE UTILITY AREA Room for a washing machine with velux windows and doors to the downstairs SC, garage and garden. 

DOWNSTAIRS WC Low level WC and sink, with window to side. 

LANDING With loft hatch and window to side. 

BEDROOM ONE Bay window to rear and dado rail. 

BEDROOM TWO Bay window to front, feature fireplace and dado rail. 

BEDROOM THREE A spacious third bedroom with a bay window to front and two storage cupboards. One of the storage cupboards is extremely spacious which goes into the eaves. 

GARDEN With patio area, lawn and shrubbery. 

LOCATION Solihull is located approximately 9 miles (14.5 km) south-east of Birmingham city centre. Situated in the heart of England, it is considered to be a prosperous and highly sought-after residential area. The town is the administrative centre of the larger Metropolitan Borough of Solihull and has a range of first-rate local amenities, including parks, sports and leisure facilities, schools, libraries, and a theatre/arts complex. The pedestrianised shopping centre has a diverse range of high-street shops, boutiques and speciality restaurants as well as a multi-screen cinema. There are direct commuter train services to Birmingham and London and easy access to the M5, M6, M40 and M42. Birmingham International Airport and Railway Station are approximately 20 minutes drive away, just next to the National Exhibition Centre. Solihull lies at the edge of an extensive green-belt area with easy access to the Warwickshire countryside. 

Property Ref: 102221008968

Share:

Similar Properties

Laxton Grove, Solihull

4 Bedroom Town House | £385,000

***CHAIN FREE***A charming four bedroom end-of-terrace townhouse within walking distance of Solihull Town Centre.

Inkford Lodge Farm, Alcester Road, Wythall

2 Bedroom Barn Conversion | Offers in region of £372,000

A unique, beautifully presented two bedroom detached residence situated in a secure gated development consisting of two...

Summerfield Road, Solihull

3 Bedroom Semi-Detached House | £360,000

A STUNNING THREE BEDROOM SEMI DETACHED PROPERTY IN THE SOUGHT AFTER AREA OF OLTON, SOLIHULL

Sandy Hill Road, Shirley

3 Bedroom Semi-Detached House | Offers Over £400,000

A deceptively spacious three double bedroom semi detached residence in a popular and convenient residential area. Two re...

Langley Hall Road, Solihull

4 Bedroom Semi-Detached House | Offers Over £400,000

An immaculate four bedroom semi-detached residence close to local amenities and transport links.

Langley Hall Road, Solihull

4 Bedroom Semi-Detached House | £400,000

***MUST BE VIEWED*** An immaculate four bedroom semi detached property in the popular area of Solihull

Ruxton Independent Estate Agents (Solihull)

Solihull, West Midlands, B91 3RB

0121 704 0100

How much is your home worth?

Use our short form to request a valuation of your property.

Request a Valuation

Mortgage Calculator

Amount Borrowed: £
Total Amount Repayable: £
Total Monthly Payment: £
©2026 The Guild of Property Professionals. All rights reserved. Terms and Conditions | Privacy Policy | Cookie Policy | Complaints Policy | Members Login
The Guild of Property Professionals Trading Address: 121 Park Lane, London W1K 7AG. GPEA Limited. Registered in England & Wales.  Company No: 02819824.  Registered Office Address: 2 St. Stephen's Court, St. Stephen's Road, Bournemouth, Dorset, England, BH2 6LA.  VAT Registration No: 576 8795 61
Book a Property Valuation Update Cookies Preferences