Victoria Avenue, Chard, Somerset, TA20

£220,000

3 Bedroom Terraced House for sale in Somerset

2 3 1

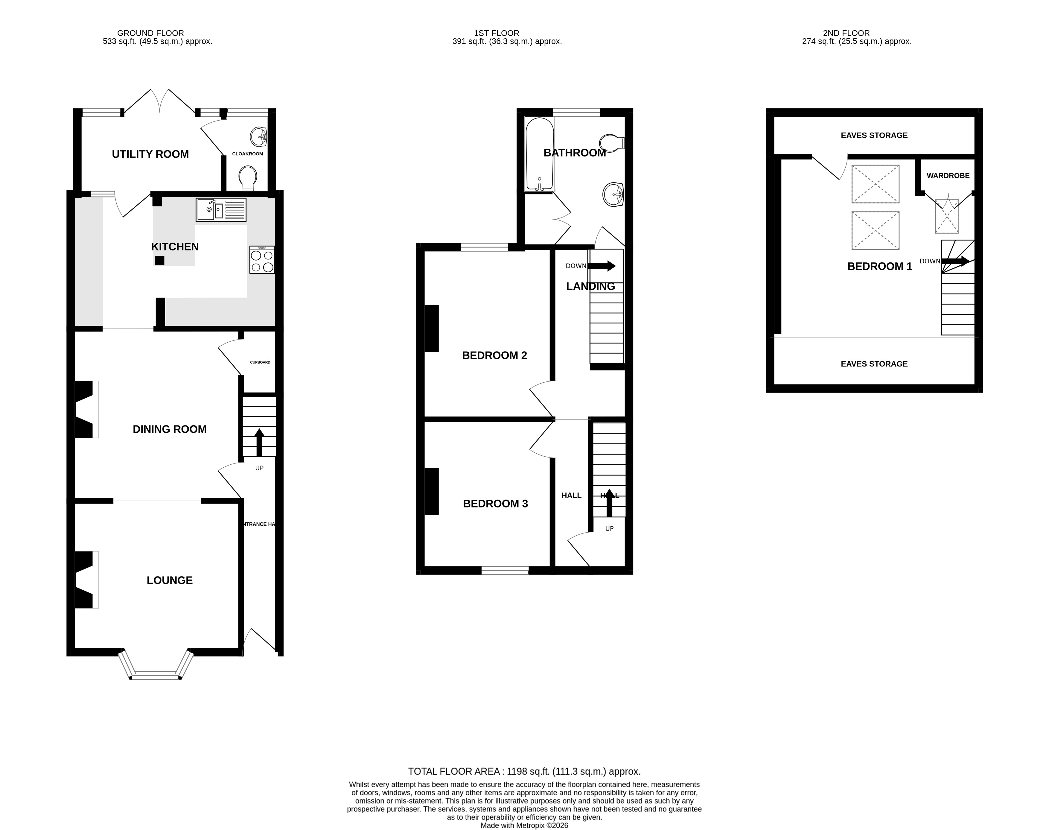
This charming older-style terraced property is arranged over three floors and offers deceptively spacious accommodation, complemented by a generously sized rear garden. Beautifully presented throughout, the home combines character features with modern conveniences, creating an inviting and practical living environment.The ground floor welcomes you into a comfortable lounge featuring an attractive bay window that allows plenty of natural light to flow in. A fireplace housing a wood-burning stove provides a cosy focal point, and the space opens seamlessly into the dining room, which itself boasts an antique-style feature fireplace, adding further charm and character. To the rear of the property is a modern fitted shaker-style kitchen, thoughtfully designed with integrated appliances and ample storage space. The kitchen opens into a separate utility room, which provides access to a convenient downstairs cloakroom as well as double doors leading directly out to the rear garden.The first floor offers two well-proportioned double bedrooms along with a spacious family bathroom. The second floor is dedicated to a delightful attic main bedroom, a bright and airy space enhanced by two large skylights and an additional smaller skylight. This room also benefits from fitted wardrobes and useful eaves storage.Outside, the property enjoys a long rear garden that has been attractively arranged to create several areas for relaxation and entertaining. Immediately to the rear of the house is a stone-chipped seating area, leading onto a long lawn with a pathway that guides you to a raised decked seating area at the far end. From here there is access to a useful block-built outbuilding with light, power and double-glazed windows. This versatile space could be used as a home office, summerhouse or playroom and enjoys the advantage of backing onto open parkland.Further benefits include double glazing, gas central heating and on-street parking. The property is presented in excellent condition throughout, making it an ideal home for those seeking both character and space in a well-maintained setting.

Tenure: Freehold
Council Tax Band: A
EPC Rating: TBC

Accommodation comprises: Entrance hall, lounge, dining room, kitchen, utility room, cloakroom, two double bedrooms and bathroom to the first floor, large main bedroom to second floor.

Entrance Hall    uPVC opaque double glazed entrance door into entrance hall. Radiator, stairs rising to first floor and door into dining room.

Lounge 12'3" (3.73m) x 11'10" (3.60m) into bay window. Attractive double glazed bay window to the front aspect. Fireplace with inset woodburner. Television point, radiator and opening through to dining room.

Dining Room 12' x 11'10" (3.66m x 3.6m). Antique style feature fireplace, radiator, understairs storage cupboard and opening through to kitchen.

Kitchen 14'8" x 9'5" (4.47m x 2.87m). Fitted with a selection of matching wall and base 'shaker style' units set beneath worktops with inset one and a half bowl sink and drainer with mixer tap. Inset electric oven with gas hob and hood over, integrated fridge freezer. Under unit lighting, tiled splashbacks. Wooden glazed window and door out to utility room.

Utility Room 10'2" x 5'9" (3.1m x 1.75m). Of brick and uPVC construction with double doors opening out to rear garden. Base storage unit set under worktop. Space and plumbing for washing machine. Radiator and coat hanging space. Door to cloakroom.

Cloakroom    Fitted with a two-piece suite comprising low-level W.C. and wall mounted wash hand basin. Radiator and opaque double glazed window to the rear aspect.

First Floor Landing    Enclosed area suitable for desk. Doors to all principal rooms. Doors and stairs up to second floor.

Bedroom Two 12' (3.65m) x 9'3" (2.81m) into recess. Radiator and double glazed window to the rear aspect.

Bedroom Three 10'7" x 9'3" (3.23m x 2.82m). Radiator and double glazed window to the front aspect.

Bathroom    Spacious bathroom fitted with a three-piece suite comprising panelled bath with mains shower with rainfall shower head over, low-level W.C. and pedestal wash hand basin. Radiator and opaque double glazed window to the rear aspect. Fitted storage cupboard with wall mounted central heating boiler.

Bedroom One 12'8" (3.86m) x 11'2" (3.4m) sloped ceilings. Situated on the second floor, the attic has been converted into a lovely double bedroom featuring two large skylights and a further smaller skylight. Hatch to eaves storage to one side and open eaves storage area to the other end. Fitted wardrobe and radiator

Property Information    Services
Mains gas, water, drainage and electric.

Broadband and Mobile Coverage
Ultrafast Broadband is available in this area and mobile signal should be available outdoors from all four major providers and indoors from two major provider. Information supplied by ofcom.org.uk

Important Information

  • This is a Freehold property.

Property Ref: PFE210316

Share:

Similar Properties

Brutton Way, Chard, Somerset, TA20

4 Bedroom Terraced House | £220,000

*** Priced to sell ****A four bedroom terrace property with garage, gardens and parking sold with the benefit of no onwa...

Crimchard, Chard, Somerset, TA20

3 Bedroom Detached Bungalow | Guide Price £220,000

*** AUCTION PROPERTY **** AUCTION DATE 9th April 2026 AT 12PM. https://www.247propertyauctions.co.uk/lots-for-sale?ba_ur...

Cerdic Terrace, Chard, Somerset, TA20

3 Bedroom End of Terrace House | £215,000

This charming two-bedroom end-terrace Period property with additional attic room offers spacious and versatile accommoda...

Old Town, Chard, Somerset, TA20

3 Bedroom Terraced House | £225,000

A well-presented three double bedroom mid-terrace home with off-street parking and a generous rear garden, ideally situa...

Henson Park, Chard, Somerset, TA20

4 Bedroom Terraced House | £225,000

This extended four-bedroom terraced home offers generous and versatile living space, ideal for modern family life. The g...

Lower Coombses, Tatworth, Somerset, TA20

3 Bedroom Detached House | £225,000

A rare opportunity to acquire a charming three-bedroom detached character property, set in a sought-after village locati...

Paul Fenton Estate Agents (Chard)

34 Fore Street, Chard, Somerset, TA20 1PT

01460 68222

How much is your home worth?

Use our short form to request a valuation of your property.

Request a Valuation

Mortgage Calculator

Amount Borrowed: £
Total Amount Repayable: £
Total Monthly Payment: £
©2026 The Guild of Property Professionals. All rights reserved. Terms and Conditions | Privacy Policy | Cookie Policy | Complaints Policy | Members Login
The Guild of Property Professionals Trading Address: 121 Park Lane, London W1K 7AG. GPEA Limited. Registered in England & Wales.  Company No: 02819824.  Registered Office Address: 2 St. Stephen's Court, St. Stephen's Road, Bournemouth, Dorset, England, BH2 6LA.  VAT Registration No: 576 8795 61
Book a Property Valuation Update Cookies Preferences