Park Terrace, Chard, Somerset, TA20

£260,000
SSTC
This property listing is now SSTC

3 Bedroom Terraced House for sale in Somerset

2 3 1

Charming Three-Bedroom Period Terraced Home with Elevated Position, Long Garden & Detached Garage

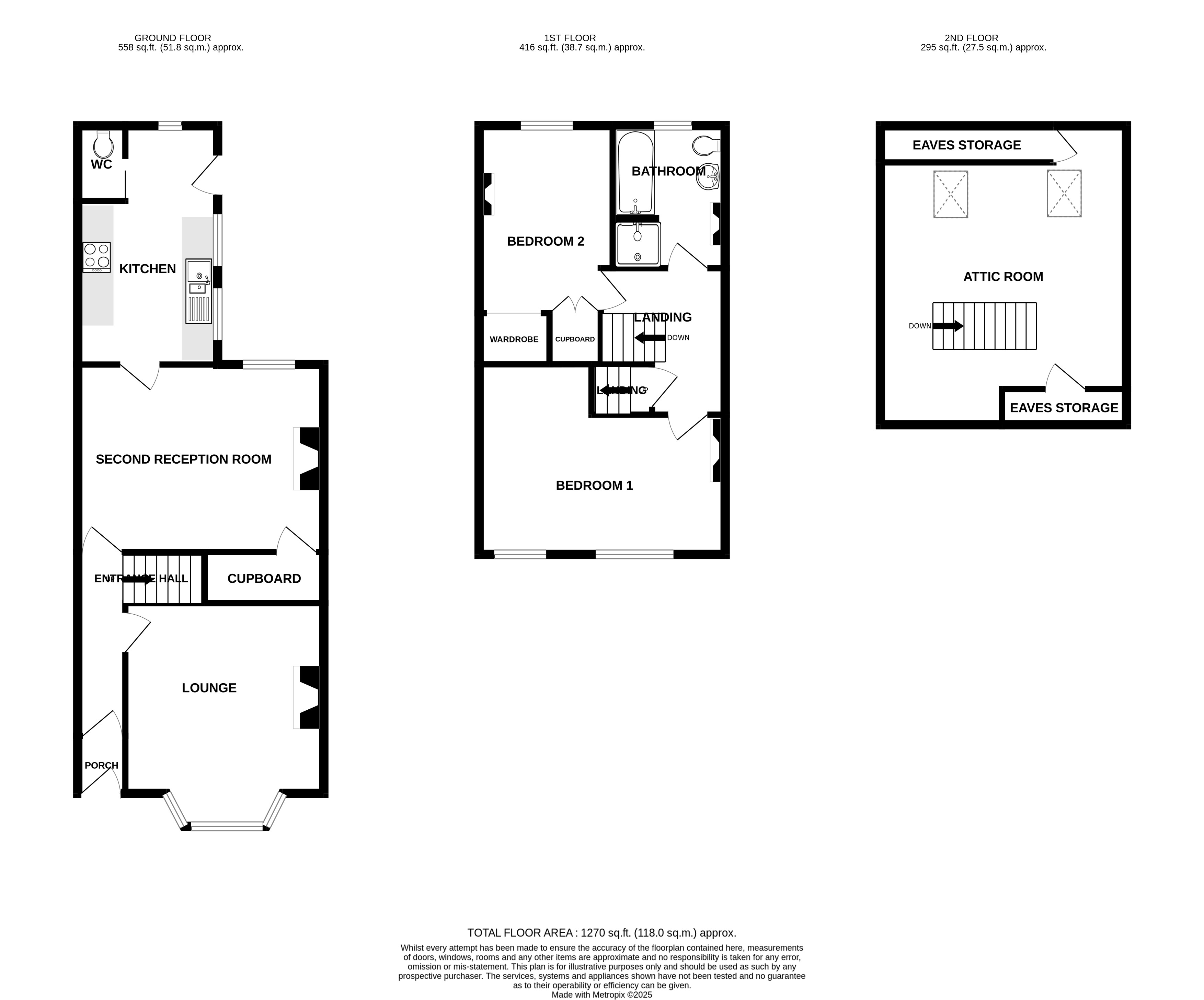
Occupying a delightful elevated position on the edge of Chard Town, this beautifully presented two-bedroom terraced period property with additional attic room seamlessly blends character features with comfortable modern living. This attractive home enjoys spacious accommodation, a generous rear garden, detached garage, and off-road parking for two vehicles.

The ground floor boasts two elegant reception rooms, both featuring attractive fireplaces that enhance the property's period charm. These versatile living spaces flow through to a well-appointed fitted kitchen, with access to a convenient ground floor W.C.

To the first floor are two nice sized bedrooms, each showcasing antique feature fireplaces, and a stylish family bathroom complete with a four-piece suite including a separate shower and bath. A staircase leads to the attic room, with natural light from twin Velux windows and benefitting from access to useful eaves storage ? ideal as a guest room, study or hobby space.

Externally, the property truly excels. A long rear garden offers plenty of space for relaxation and entertaining, featuring a covered seating area and mature fruit trees. At the far end of the garden is a substantial detached garage with power, providing excellent workshop or storage potential, along with off-road parking for two vehicles in front.

A rare opportunity to acquire a characterful home ? early viewing is highly recommended.

Tenure: Freehold
Council Tax Band: B
EPC Rating: D

Accommodation comprises: Entrance hall, lounge, second reception room, fitted kitchen, cloakroom, two bedrooms, bathroom and attic room.

Entrance Porch    Opaque double glazed main entrance door into entrance porch. Attractive antique patterned floor tiles. Wooden opaque glazed door into entrance hall.

Entrance Hall    Exposed wooden flooring, radiator, stairs rising to first floor, telephone point. Doors to lounge and dining room.

Lounge 14'4" (4.38m) x 12'6" (3.81m) into bay window. Attractive double glazed bay window to front aspect, brick-built fireplace, radiator.

Dining Room 15'11" x 11'11" (4.85m x 3.63m). Exposed wooden flooring, brick-built fireplace, radiator, understairs storage cupboard. Double glazed window to the rear aspect. Door to kitchen.

Kitchen 10'4" (3.16m) extending to 15'9" (4.79m) x 8'9" (2.67m). Fitted with a range of matching wall and base units set beneath worktops with inset one and a half bowl sink and drainer. Inset gas hob with hood over, inset electric cooker, space and plumbing for washing machine, tumble dryer and dishwasher, space for fridge freezer. Radiator, tiled flooring. Two double glazed windows to the side aspect, double glazed door out to rear garden. Sliding door to W.C.

W.C.    Low-level W.C. Wall mounted central heating boiler. Tiled flooring.

First Floor Landing    Spotlights. Door and stairs leading up to attic room. Doors to all principal rooms.

Bedroom One 15'11" (4.86m) x 8'10" (2.68m) widening to 12' (3.65m). Feature antique fireplace, radiator and two double glazed windows to the front aspect.

Bedroom Two 12'4" (3.76m) x 8'3" (2.52m) narrowing to 7'7" (2.31m). Antique style feature fireplace, built in wardrobe, further storage cupboard over stairs. Radiator and double glazed window to the rear aspect.

Bathroom    Fitted with a four-piece suite comprising separate shower cubicle with mains shower, panelled bath, low-level W.C. and pedestal wash hand basin. Wood panelling, radiator, extractor and double glazed window to the rear aspect.

Attic Room    Attractive exposed red brick chimney. Spotlights, access to eaves storage, access to roof void and two Velux windows to the rear aspect.

Front    The front garden is laid to low maintenance enclosed by low-level walling and wrought iron railings with wrought iron gate giving access to a path leading to the main entrance door.

Rear    The rear garden is made up of a covered seating area with steps up to a long lawn area housing a variety of Apple trees and mature planting. A path leads through the garden giving access to a raised decked seating area with double doors into the garage. The path continues along the side of the garage to a wooden gate leading to a paved drive providing off street parking for two vehicles whilst giving access to the garage.

Garage 27'11" x 11'2" (8.5m x 3.4m). A much longer than average garage fitted with an electric roll-up electric door. Light, power, double glazed windows to the side and rear aspects. Double glazed double doors out to decked seating area.

Property Information    Services
Mains gas, electric, water and drainage.

Broadband and mobile coverage
Superfast Broadband is available in this area and mobile signal should be available from all four major providers outdoors and one major provider indoors. Information supplied by ofcom.org.uk

Building regulations
Please note the attic room does not have building regulation certification..

Agents Note
Please note this property is currently tenanted.

Important Information

  • This is a Freehold property.

Property Ref: PFE250241

Share:

Similar Properties

Bampton Avenue, Chard, Somerset, TA20

3 Bedroom Semi-Detached House | £260,000

This beautifully presented three-bedroom semi-detached home has been cosmetically updated by the current owners to creat...

King Cuthred Close, Chard, Somerset, TA20

3 Bedroom Semi-Detached House | £260,000

A three bedroom semi detached family home located in a cul de sac location with good size enclosed rear garden. The entr...

Brutton Way, Chard, Somerset, TA20

3 Bedroom Semi-Detached House | Offers in excess of £250,000

Situated on the edge of Chard town and within easy walking distance of the ever-popular Snowdon Park, this modern three-...

Honeycomb Vale, Chard, Somerset, TA20

3 Bedroom Semi-Detached House | Offers in excess of £265,000

A recently constructed three bedroom semi-detached family home situated on the very edge of Chard Town with private sout...

King Ine South, Chard, Somerset, TA20

2 Bedroom Semi-Detached Bungalow | £265,000

This beautifully presented two-bedroom semi-detached home has been thoughtfully extended to create a stunning garden roo...

Robins Court, Chard, Somerset, TA20

2 Bedroom Detached Bungalow | £265,000

This modern and beautifully presented two-bedroom detached bungalow is tucked away in a quiet residential cul-de-sac, of...

Paul Fenton Estate Agents (Chard)

34 Fore Street, Chard, Somerset, TA20 1PT

01460 68222

How much is your home worth?

Use our short form to request a valuation of your property.

Request a Valuation

Mortgage Calculator

Amount Borrowed: £
Total Amount Repayable: £
Total Monthly Payment: £
©2026 The Guild of Property Professionals. All rights reserved. Terms and Conditions | Privacy Policy | Cookie Policy | Complaints Policy | Members Login
The Guild of Property Professionals Trading Address: 121 Park Lane, London W1K 7AG. GPEA Limited. Registered in England & Wales.  Company No: 02819824.  Registered Office Address: 2 St. Stephen's Court, St. Stephen's Road, Bournemouth, Dorset, England, BH2 6LA.  VAT Registration No: 576 8795 61
Book a Property Valuation Update Cookies Preferences