Robins Court, Chard, Somerset, TA20

£200,000

2 Bedroom End of Terrace House for sale in Somerset

1 2 1

A two-bedroom property offering excellent potential and in need of updating throughout. Situated in a desirable cul-de-sac location, the home benefits from an enclosed rear garden, providing a safe and private outdoor space. This is an ideal opportunity for buyers looking to add value and personalise a home to their own taste, in a quiet and convenient residential setting.
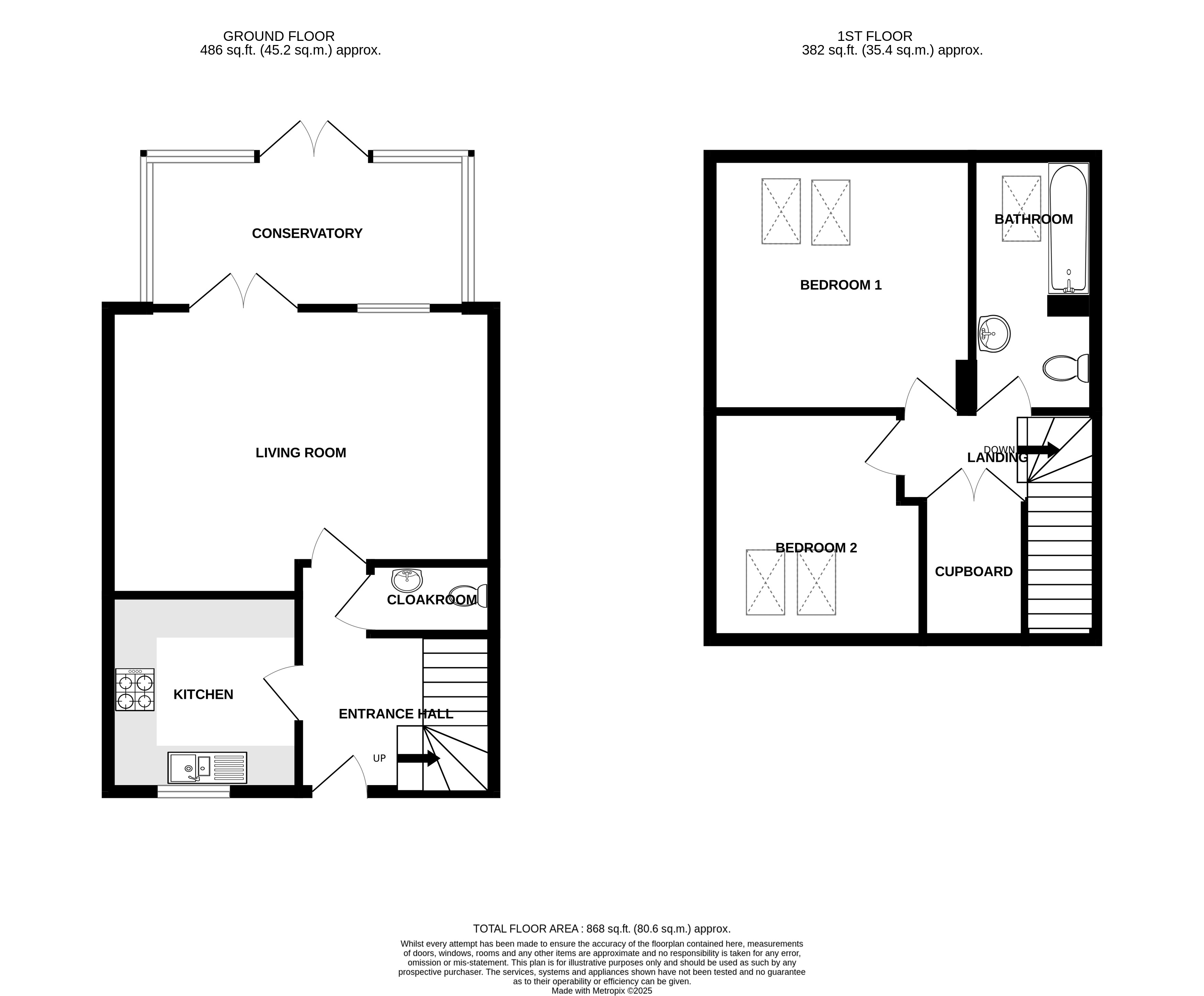
Accommodation comprises: Entrance hall, living room, fitted kitchen, two bedrooms, bathroom and conservatory.

Tenure: Freehold
Council Tax Band: B
EPC Rating: C


Entrance Hall    Via a double glazed door, house electrics, radiator, stairs rising to first floor, doors to

Kitchen 8'11" x 8'8" (2.72m x 2.64m). Front aspect uPVC double glazed window, a range of base and wall mounted until with roll edge work surface and tiled splash backs, stainless steel 1 and 1/12 sink and drainer, wall mounted Remha boiler, fitted appliances include Whirlpool cooker with extractor hood over, fridge and dishwasher.

Living Room 17'11" (5.46m) x 13'1" (4m) at the maximum measurements. Rear aspect double glazed window and French doors, radiator.

Conservatory 14'7" x6'11" (4.45m x2.1m). Brick built base with uPVC double glazed windows and roof.

Landing    Double door storage cupboard with hanging rail, doors to

Bedroom 1 12' x 11'3" (3.66m x 3.43m). Rear aspect wooden Velux windows and radiator.

Bedroom 2 8'2" (2.5m) 9'3" (2.82m) at the maximum measurements. Front aspect wooden Velux window, radiator.

Bathroom    Rear aspect wooden Velux window, white suite comparing bath with shower over, pedestal wash hand basin, close couple wc with tiled splash backs, heated towel rail and vanity light.

Outside    To the front of the property is stone chipped garden with established plants and shrubs with pathway leading to the front door and store cupboard.

The rear garden is all enclosed with low maintenance astro turf, patio seating areas and established trees and shrubs. A pedestrian gate gives access to the parking area.

Property Information    Services
Mains gas, electric, water and drainage

Broadband and Mobile
Superfast Broadband is available in this area and mobile signal should be available from all four major providers outdoors and three major providers indoors. Information supplied by ofcom.org.uk



Important Information

  • This is a Freehold property.

Property Ref: 131978_PFE210058

Share:

Similar Properties

Beckington Crescent, Chard, Somerset, TA20

3 Bedroom Terraced House | £200,000

*** CASH BUYERS ONLY **** A three bedroom modern terraced home with enclosed rear garden and parking for two cars. Accom...

Middle Touches, Chard, Somerset, TA20

3 Bedroom End of Terrace House | £200,000

This three-bedroom end of terrace house offers an excellent opportunity for those looking to create a family home tailor...

Furnham Road, Chard, Somerset, TA20

3 Bedroom Semi-Detached House | £200,000

Modern Three-Bedroom Semi-Detached Home | Low-Maintenance Garden | Allocated Parking | Edge-of-Town LocationSituated on...

Middle Touches, Chard, Somerset, TA20

2 Bedroom Terraced House | £210,000

Located in a well-established residential area, this well-presented two-bedroom terraced house offers comfortable living...

Furzehill, Chard, Somerset, TA20

3 Bedroom Semi-Detached House | £210,000

This spacious three-bedroom semi-detached home offers generous accommodation set over two floors and is available with t...

Watermead, Tatworth, South Chard, Somerset, TA20

2 Bedroom Semi-Detached Bungalow | £210,000

A Two-Bedroom Semi-Detached Bungalow in Charming Village LocationSituated in a sought-after village setting, this two-be...

Paul Fenton Estate Agents (Chard)

34 Fore Street, Chard, Somerset, TA20 1PT

01460 68222

How much is your home worth?

Use our short form to request a valuation of your property.

Request a Valuation

Mortgage Calculator

Amount Borrowed: £
Total Amount Repayable: £
Total Monthly Payment: £
©2026 The Guild of Property Professionals. All rights reserved. Terms and Conditions | Privacy Policy | Cookie Policy | Complaints Policy | Members Login
The Guild of Property Professionals Trading Address: 121 Park Lane, London W1K 7AG. GPEA Limited. Registered in England & Wales.  Company No: 02819824.  Registered Office Address: 2 St. Stephen's Court, St. Stephen's Road, Bournemouth, Dorset, England, BH2 6LA.  VAT Registration No: 576 8795 61
Book a Property Valuation Update Cookies Preferences