Middle Touches, Chard, Somerset, TA20

£200,000
SSTC
This property listing is now SSTC

3 Bedroom End of Terrace House for sale in Somerset

1 3 1

This three-bedroom end of terrace house offers an excellent opportunity for those looking to create a family home tailored to their own taste.

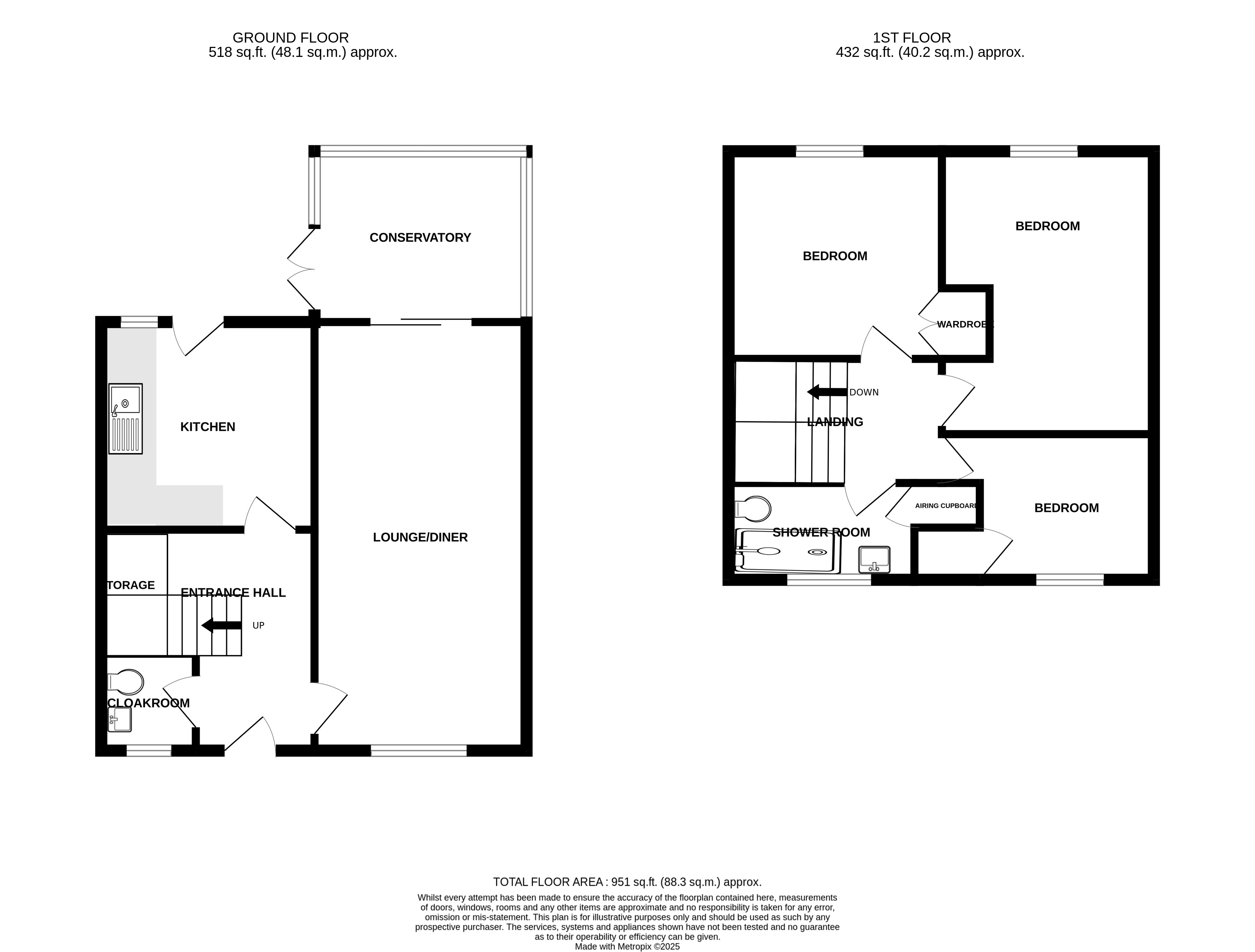
Internally, the accommodation comprises an entrance hallway, downstairs cloakroom, a bright front reception room with sliding doors leading to the conservatory and fitted kitchen. Upstairs, there are three bedrooms and a shower room.

Gardens to the front and rear aspect with the benefit of a garage to the rear of the property.
While the property has been well cared for over the years, it would now benefit from modernisation throughout.

Tenure: Freehold
Council Tax Band: B
EPC Rating: D

Entrance Hallway    uPVC double glazed front entrance door, radiator, understairs storage cupboard and stairs rising to first floor.

Cloakroom    Featuring a two piece suite consisting of a low level W.C and wash hand basin. Wall mounted gas central heating boiler, radiator and uPVC double glazed window.

Lounge/Diner 20'10" x 10'4" (6.35m x 3.15m). uPVC double glazed window to the front aspect, radiators and uPVC double glazed sliding doors to:

Conservatory 9'11" x 8'3" (3.02m x 2.51m). uPVC double glazed construction with doors giving access to the rear garden.

Kitchen 10'4" x 10' (3.15m x 3.05m). Fitted with a range of matching wall and base units with adjoining work top preparation surface with inset stainless sink and drainer with mixer tap over complemented by tiled splash backs. Inset oven and hob with cooker hood over. Space and plumbing for washing machine with further under counter appliance spaces. Radiator, built in cupboard and uPVC double glazed window and door giving access to the rear garden.

First Floor Landing    Loft access and doors to all rooms.

Bedroom One 13'10" (4.22m) x 10'10" (3.3m) narrowing to 8'10" (2.68m). uPVC double glazed window and radiator.

Bedroom Two 10'1" x 10'1" (3.07m x 3.07m). uPVC double glazed window, radiator and built in storage cupboard.

Bedroom Three 8'7" x 7'1" (2.62m x 2.16m). uPVC double glazed window, radiator and built in storage cupboard.

Shower Room    Benefiting a three piece suite consisting of shower, low level W.C and wash hand basin. Radiator, built in airing cupboard and uPVC double glazed window.

Outside    The front of the property is predominatelylaid to lawn with an area of stone chippings. The rear garden is currently laid to a low maintenance design of stone chippings and patio with a gate giving access to the garage.

Garage    With up and over door, electric , window and door giving access to the garden.

Property Information    Services
Mains gas, water, electric and drainage.

Broadband and mobile coverage
Ultrafast Broadband is available in this area and mobile signal should be available from all four major providers outdoors and two major provider indoors. Information supplied by ofcom.org.uk

Please note that there is a management contribution to the Middle Touches Management company which was a total of ?65 for 2025.

Important Information

  • This is a Freehold property.

Property Ref: PFE250283

Share:

Similar Properties

Beckington Crescent, Chard, Somerset, TA20

3 Bedroom Terraced House | £200,000

*** CASH BUYERS ONLY **** A three bedroom modern terraced home with enclosed rear garden and parking for two cars. Accom...

Robins Court, Chard, Somerset, TA20

2 Bedroom End of Terrace House | £200,000

A two-bedroom property offering excellent potential and in need of updating throughout. Situated in a desirable cul-de-s...

High Street, Chard, Somerset, TA20

2 Bedroom End of Terrace House | £199,950

Tucked away yet within easy reach of the town centre, this charming two-bedroom end-terrace character cottage is a true...

Springfield Terrace, Tatworth, Somerset, TA20

2 Bedroom Terraced House | £210,000

Charming Two Double Bedroom Period Terraced Home with Generous Garden in Village SettingNestled on the edge of a sought-...

Middle Touches, Chard, Somerset, TA20

2 Bedroom Terraced House | £210,000

Located in a well-established residential area, this well-presented two-bedroom terraced house offers comfortable living...

Watermead, Tatworth, South Chard, Somerset, TA20

2 Bedroom Semi-Detached Bungalow | £210,000

A Two-Bedroom Semi-Detached Bungalow in Charming Village LocationSituated in a sought-after village setting, this two-be...

Paul Fenton Estate Agents (Chard)

34 Fore Street, Chard, Somerset, TA20 1PT

01460 68222

How much is your home worth?

Use our short form to request a valuation of your property.

Request a Valuation

Mortgage Calculator

Amount Borrowed: £
Total Amount Repayable: £
Total Monthly Payment: £
©2026 The Guild of Property Professionals. All rights reserved. Terms and Conditions | Privacy Policy | Cookie Policy | Complaints Policy | Members Login
The Guild of Property Professionals Trading Address: 121 Park Lane, London W1K 7AG. GPEA Limited. Registered in England & Wales.  Company No: 02819824.  Registered Office Address: 2 St. Stephen's Court, St. Stephen's Road, Bournemouth, Dorset, England, BH2 6LA.  VAT Registration No: 576 8795 61
Book a Property Valuation Update Cookies Preferences