Abbey Mews, Tatworth, Somerset, TA20

£210,000
SSTC
This property listing is now SSTC

2 Bedroom End of Terrace House for sale in Somerset

1 2 1

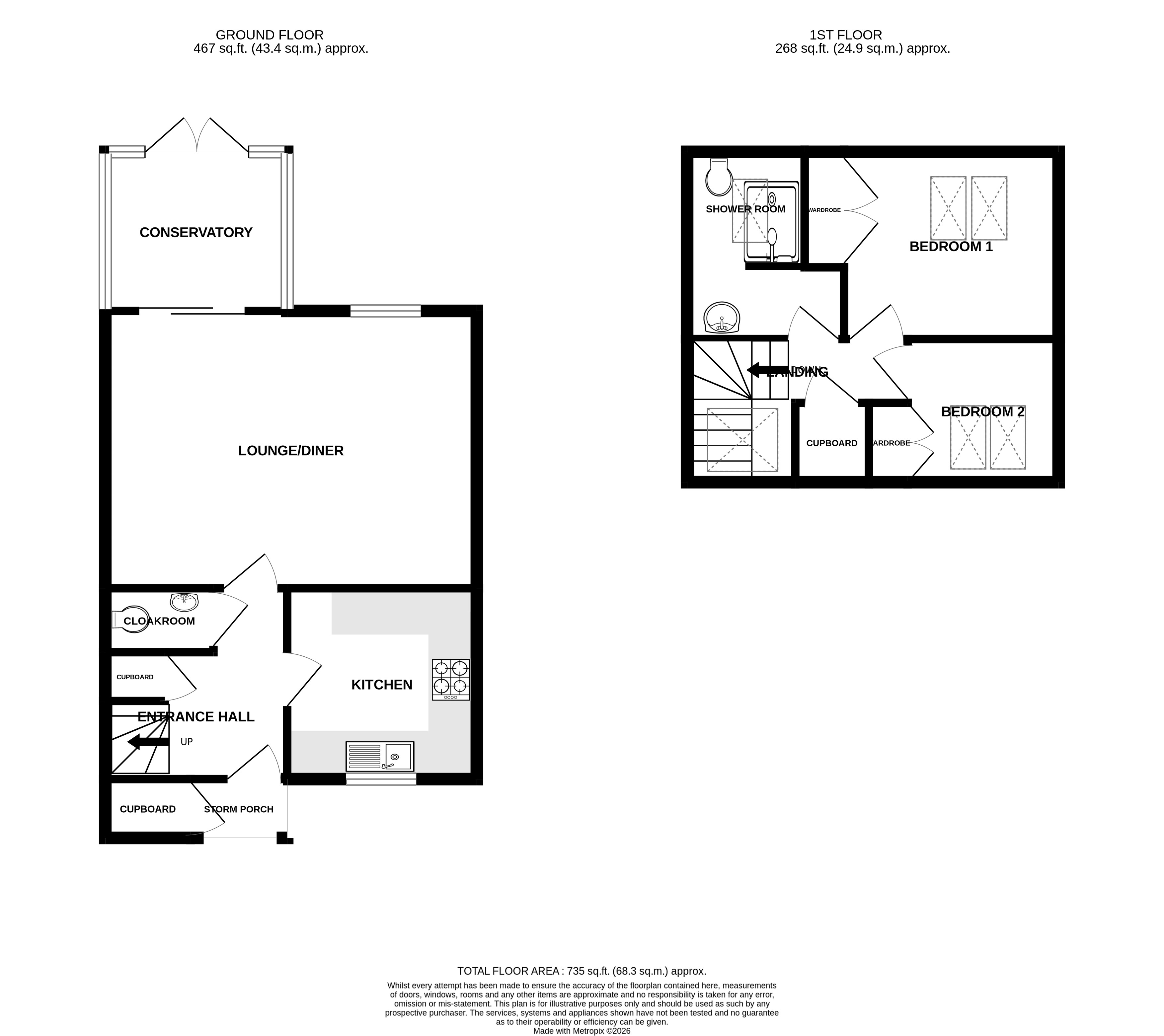
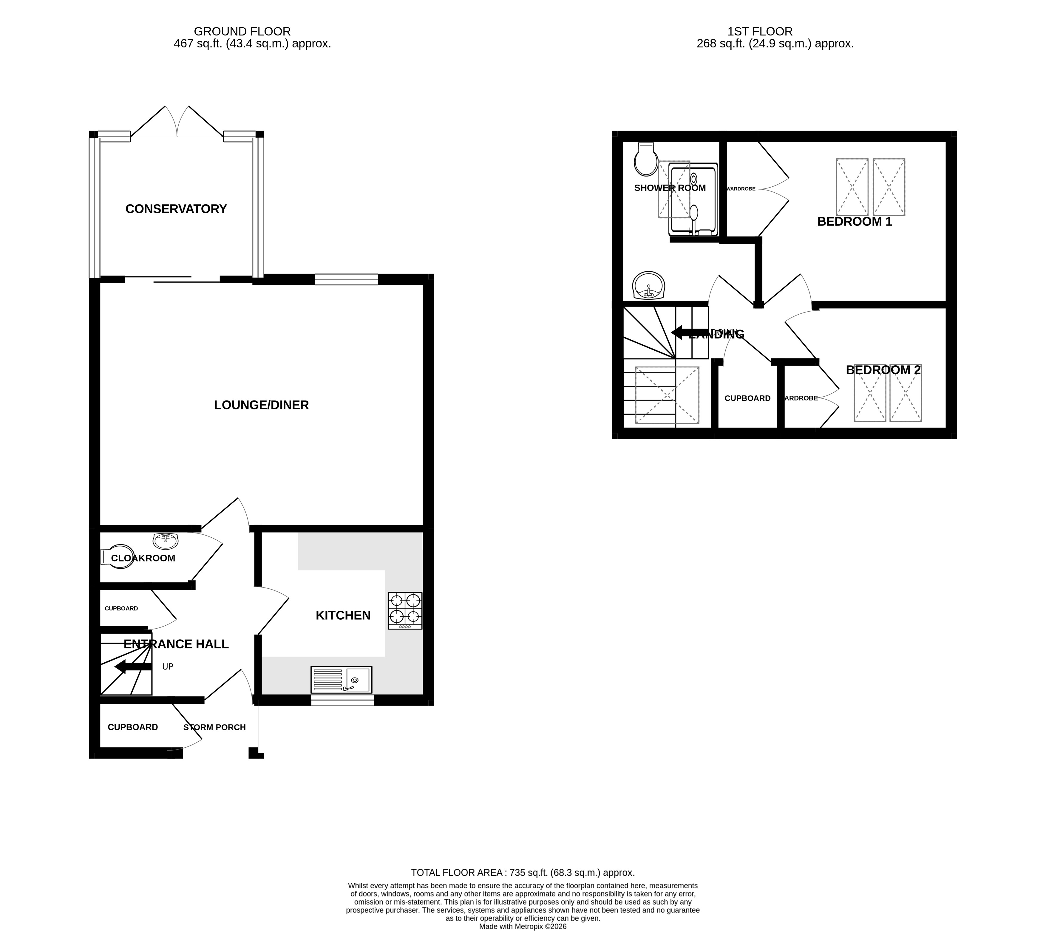
Tucked away at the end of a quiet cul-de-sac in the popular South Somerset village of Tatworth, this two-bedroom end-terrace property offers comfortable accommodation in a peaceful yet well-connected location.The ground floor features a lovely open-plan lounge/dining room, creating a bright and welcoming living space. A useful hatch opens through to the kitchen, while sliding doors lead into a uPVC conservatory, providing an additional reception area with views over the rear garden.To the first floor are two bedrooms, both benefiting from fitted wardrobes, along with a shower room.Outside, the property enjoys off-street parking to the front and a low-maintenance rear garden, ideal for easy upkeep. The home is further enhanced by double glazing and gas central heating.Tatworth village offers a good range of everyday amenities including a shop, post office, bus service, social club, primary school and recreation ground. The larger town of Chard lies approximately three miles away and provides a wider selection of shops, leisure facilities and services.

Tenure: Freehold
Council Tax Band: B
EPC Rating: C

Accomodation comprises: porch, entrance hall, kitchen, cloakroom, lounge/diner, conservatory, two bedrooms and shower room.

Important Information

  • This is a Freehold property.

Property Ref: PFE260022

Share:

Similar Properties

Watermead, Tatworth, South Chard, Somerset, TA20

2 Bedroom Semi-Detached Bungalow | £210,000

A Two-Bedroom Semi-Detached Bungalow in Charming Village LocationSituated in a sought-after village setting, this two-be...

Springfield Terrace, Tatworth, Somerset, TA20

2 Bedroom Terraced House | £210,000

Charming Two Double Bedroom Period Terraced Home with Generous Garden in Village SettingNestled on the edge of a sought-...

Middle Touches, Chard, Somerset, TA20

2 Bedroom Terraced House | £210,000

Located in a well-established residential area, this well-presented two-bedroom terraced house offers comfortable living...

Drakes Meadow, Yarcombe, Devon, EX14

2 Bedroom End of Terrace House | £215,000

A two bedroom end terraced modern property with parking and gardens situated in the rural village of Yarcombe, surrounde...

Cerdic Terrace, Chard, Somerset, TA20

3 Bedroom End of Terrace House | £215,000

This charming two-bedroom end-terrace Period property with additional attic room offers spacious and versatile accommoda...

Crib Close, Chard, Somerset, TA20

3 Bedroom End of Terrace House | £215,000

An end of terrace family home benefitting from a private garage, off-road parking and an enclosed rear garden making it...

Paul Fenton Estate Agents (Chard)

34 Fore Street, Chard, Somerset, TA20 1PT

01460 68222

How much is your home worth?

Use our short form to request a valuation of your property.

Request a Valuation

Mortgage Calculator

Amount Borrowed: £
Total Amount Repayable: £
Total Monthly Payment: £
©2026 The Guild of Property Professionals. All rights reserved. Terms and Conditions | Privacy Policy | Cookie Policy | Complaints Policy | Members Login
The Guild of Property Professionals Trading Address: 121 Park Lane, London W1K 7AG. GPEA Limited. Registered in England & Wales.  Company No: 02819824.  Registered Office Address: 2 St. Stephen's Court, St. Stephen's Road, Bournemouth, Dorset, England, BH2 6LA.  VAT Registration No: 576 8795 61
Book a Property Valuation Update Cookies Preferences