High Street, Chard, Somerset, TA20

£199,950

2 Bedroom End of Terrace House for sale in Somerset

2 2 1

Tucked away yet within easy reach of the town centre, this charming two-bedroom end-terrace character cottage is a true hidden gem, offering a beautifully stocked and unexpectedly large garden alongside a truly unique interior.The cottage immediately captures the imagination with its one-of-a-kind hand-painted murals, created by local artist Derold Page. Several rooms feature bespoke artwork depicting animals and natural scenery, giving the home a wonderfully individual and artistic feel rarely found in properties of this type.The accommodation begins with a welcoming lounge, featuring a characterful fireplace and a pleasant front aspect. To the rear, a spacious kitchen/breakfast room provides ample storage, generous worktop space, and room for appliances and a dining table, with a door leading into the garden room. An additional reception space provides versatility and offers access to a cloakroom, doors lead out to a courtyard with access through to the rear garden, and double doors provide access to the side aspect.Upstairs, the large principal double bedroom is fitted with mirror-fronted wardrobes, while bedroom two is a standout space ? fully hand-painted with a serene mural covering the walls and doors, depicting a calming scene of nature and wildlife. The fitted bathroom features a three-piece suite and benefits from Jack-and-Jill access from both bedrooms.Outside, the property truly shines. From the garden room, a pathway crosses a neighbouring courtyard to a block-built storage shed and an additional wooden shed, before continuing on to the magnificent, mature garden. This generous and well-established outdoor space is filled with flower beds and planting, and includes a summerhouse, pond, greenhouse, and shed, making it ideal for keen gardeners or those seeking a peaceful retreat.Offered with no onward chain, this unique cottage combines character, creativity, and a superb garden setting ? a rare opportunity for buyers looking for something truly individual.

Double glazing & gas central heating.

Tenure: Freehold
Council Tax Band: B
EPC Rating: E

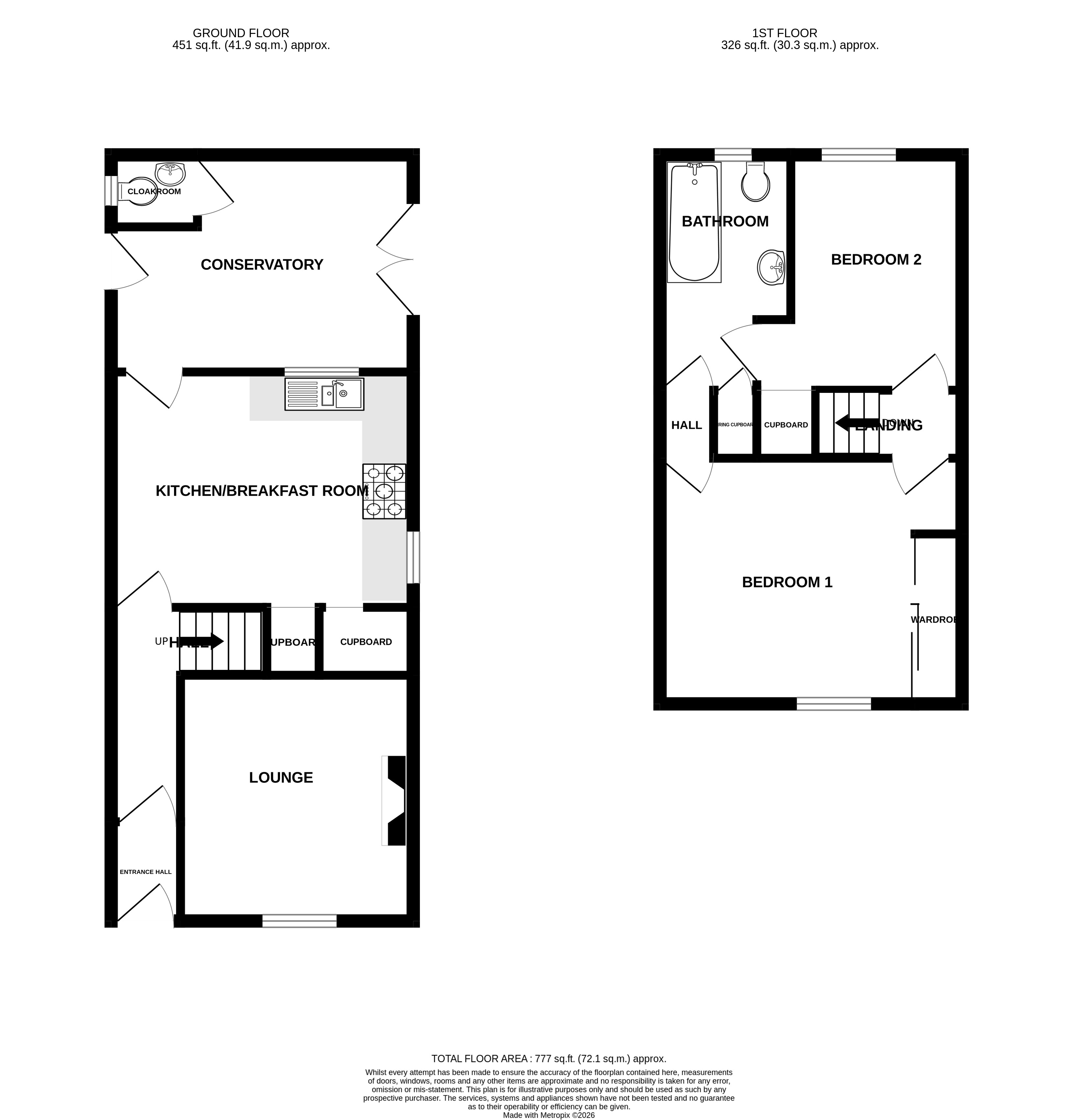
Accommodation comprises: Entrance hall, hallway, lounge, kitchen/breakfast room, garden room, two bedrooms and bathroom.

Entrance Hall    Wooden main entrance door into entrance hall. Coat hanging space and glazed wooden door to hallway.

Hallway    Radiator, stairs rising to first floor and doors to all principal rooms.

Lounge 10'11" (3.33m) x 10'4" (3.16m) into recess. Brick-built feature fireplace with inset coal effect gas fire. Radiator, telephone point and wooden double glazed window to the front aspect.

Kitchen/Breakfast Room 13'10" x 10'6" (4.22m x 3.2m). Fitted with a selection of base units set beneath worktops with inset one and a half bowl sink and drainer. Inset five burner gas hob with hood over. Space for base fridge. Opening to under stairs storage space. Radiator. Double glazed window to the side aspect. Double glazed wooden ornate window to the rear aspect. Wooden single glazed door out to Conservatory.

Conservatory 14'7" (4.45m) narrowing to 10'5" (3.17m) x 9'9" (2.96m). Floor mounted central heating boiler. Wooden double doors out to side aspect. Wooden Stable door out to courtyard area with access leading to the rear garden. Door to Cloakroom.

Cloakroom    Fitted with a low-level W.C. and wall mounted wash hand basin. Opaque single glazed window to the rear aspect.

First Floor Landing    Access to roof void and doors to bedrooms.

Bedroom One 14' x 11' (4.27m x 3.35m). Fitted mirror front wardrobes, radiator, exposed wooden floorboards and double glazed window to the front aspect. Door to hall leading through to bathroom.

Bedroom Two 9'7" (2.92m) narrowing to 7'9" (2.35m) x 10'4" (3.15m). Radiator, fitted storage over stairs, spotlights and double glazed window to the rear aspect. Door into bathroom.

Bathroom    Fitted with a three-piece suite comprising panelled bath with electric shower over, low-level W.C and pedestal wash hand basin. Built-in airing cupboard with tank and shelving. Radiator, tiled splash backs and double glazed window to the rear aspect.

Outside    To the side of the property wooden double doors open into the conservatory. A wooden stable door from the conservatory opens out on to the neighbouring courtyard with a pedestrian right of access for this property leading to an outside store room. The access continues along the neighbouring courtyard continuing to a further gate leading out to the side aspect. The path further continues to a wooden gate opening onto the wonderful rear garden. The garden has been lovingly established over the years creating a real hidden gem, made up of various areas of lawns and a vast selection of flower beds, extremely well stocked with a mixture of mature planting and trees. Tucked away in the corner of the garden is a wooden summerhouse overlooking a feature pond and the grounds.

Property Information    Services
Mains gas, water, electric and drainage.

Broadband and mobile coverage:
Ultrafast Broadband is available in this area and mobile signal should be available from all four major providers outdoors and variable with all four major providers inside. Information supplied by ofcom.org.uk

Access
Please note there is a pedestrian right of access along the right hand side of the rear garden, giving neighbouring properties access to their garden areas situated beyond this properies garden.

Please note that this is a probate sale and probate is still yet to be granted.

Important Information

  • This is a Freehold property.

Property Ref: PFE260006

Share:

Similar Properties

Furnham Road, Chard, Somerset, TA20

3 Bedroom Semi-Detached House | £196,000

Stylish Three-Bedroom Semi-Detached Home | Easy-Care Garden | Allocated Parking | Convenient Edge of Town SettingPositio...

Helmstedt Way, Chard, Somerset, TA20

2 Bedroom Terraced House | £195,000

A two bedroom terraced property with garage, parking and gardens situated within the popular Glynswood development.The p...

Kings Lear, Ilton, Ilminster, Somerset, TA19

2 Bedroom Semi-Detached Bungalow | £189,500

Nestled within the charming village of Ilton, this well-presented two-bedroom semi-detached bungalow offers an excellent...

Middle Touches, Chard, Somerset, TA20

3 Bedroom End of Terrace House | £200,000

This three-bedroom end of terrace house offers an excellent opportunity for those looking to create a family home tailor...

Robins Court, Chard, Somerset, TA20

2 Bedroom End of Terrace House | £200,000

A two-bedroom property offering excellent potential and in need of updating throughout. Situated in a desirable cul-de-s...

Beckington Crescent, Chard, Somerset, TA20

3 Bedroom Terraced House | £200,000

*** CASH BUYERS ONLY **** A three bedroom modern terraced home with enclosed rear garden and parking for two cars. Accom...

Paul Fenton Estate Agents (Chard)

34 Fore Street, Chard, Somerset, TA20 1PT

01460 68222

How much is your home worth?

Use our short form to request a valuation of your property.

Request a Valuation

Mortgage Calculator

Amount Borrowed: £
Total Amount Repayable: £
Total Monthly Payment: £
©2026 The Guild of Property Professionals. All rights reserved. Terms and Conditions | Privacy Policy | Cookie Policy | Complaints Policy | Members Login
The Guild of Property Professionals Trading Address: 121 Park Lane, London W1K 7AG. GPEA Limited. Registered in England & Wales.  Company No: 02819824.  Registered Office Address: 2 St. Stephen's Court, St. Stephen's Road, Bournemouth, Dorset, England, BH2 6LA.  VAT Registration No: 576 8795 61
Book a Property Valuation Update Cookies Preferences