Glynsmead, Tatworth, Somerset, TA20

£365,000

4 Bedroom Link Detached House for sale in Somerset

2 4 2

Set within a quiet cul-de-sac in a desirable village setting, this impressive four-bedroom link-detached property is presented in excellent condition throughout and offers spacious, well-appointed accommodation ideal for modern family living. The home has been significantly improved by the current owners both internally and externally, creating a stylish and welcoming property ready for a new occupier to move straight into.The ground floor accommodation is thoughtfully arranged and begins with a sleek, contemporary two-tone fitted kitchen featuring a range of integrated appliances. The kitchen flows seamlessly through to a separate dining room, where sliding doors open onto the rear patio, creating an ideal space for entertaining and everyday family dining. The lounge provides a comfortable and relaxing living space, enhanced by an attractive inset flame-effect electric fire and a front aspect double glazed window that allows for plenty of natural light. A convenient downstairs cloakroom completes the ground floor.Upstairs, the property offers four well-proportioned bedrooms. The main bedroom benefits from its own ensuite shower room, while bedroom two is a generous double room with fitted wardrobes. Bedrooms three and four are both good-sized single rooms and are served by the family bathroom.Externally, the property continues to impress. To the front, a wide brick-paved driveway provides ample off-street parking and gives access to both the garage and the main entrance. The rear garden has been beautifully transformed by the current owners and enjoys a desirable south-westerly aspect. A large patio seating area with an attractive wooden Pergola provides the perfect space for outdoor dining and relaxation, leading onto a long, level lawn bordered by established flower beds.Further benefits include double glazing and gas central heating, and the property is offered for sale with no onward chain, making it an ideal opportunity for buyers seeking a straightforward move into a well-presented home.

Tenure: Freehold
Council Tax Band: D
EPC: D

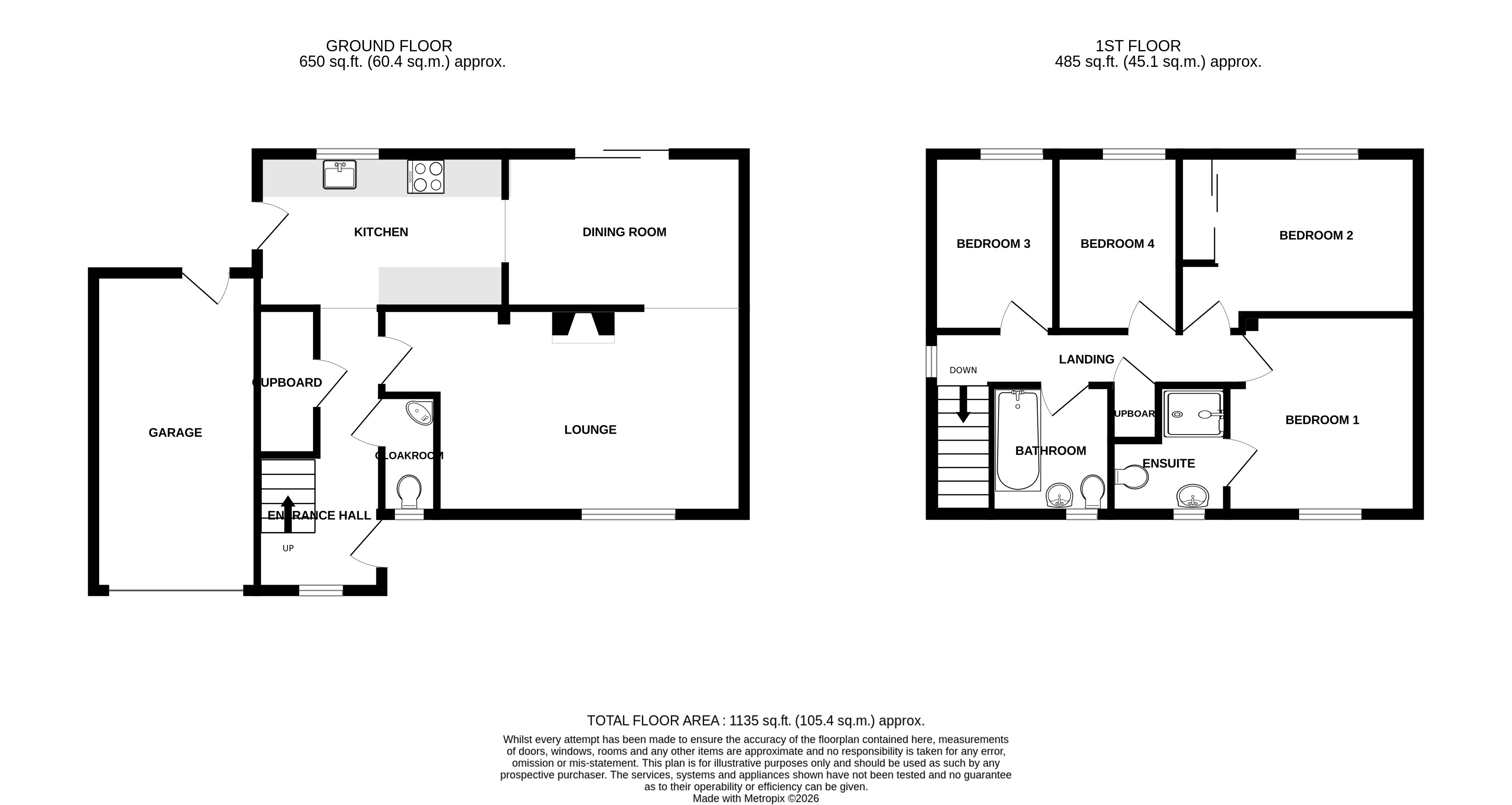
Accommodation comprises: Entrance hall, lounge, dining room, kitchen, cloakroom, main bedroom with ensuite shower room, three further bedrooms and bathroom.

Entrance Hall    Covered porch with a main entrance door into entrance hall. Coat hanging space, telephone point, stairs rising to first floor, understairs storage cupboard. Opening through to kitchen, doors to lounge and cloakroom.

Lounge 19'7" (5.97m) narrowing to 16'3" (4.96m) x 10'9" (3.28m) including fireplace. Feature fire place with inset electric flame effect fire, radiator, two television points. Double glazed window to the front aspect and opening through to dining room.

Dining Room 12'8" x 8'1" (3.86m x 2.46m). Radiator, double glazed sliding doors out to rear patio. Opening through to kitchen.

Kitchen 13' x 8' (3.96m x 2.44m). Fitted with a stylish two-tone modern kitchen with high quality worktops housing inset sink. Two elevated integrated ovens, integrated washer/dryer, integrated dishwasher, inset induction hob with hood over. Space for fridge freezer. Double glazed window to the rear aspect, uPVC double glazed door out to side aspect. Opening through to entrance hall.

Cloakroom    Fitted with a two-piece suite comprising low-level W.C. and corner wall mounted wash hand basin. Radiator, tiled splash backs and opaque double glazed window to the front aspect.

First Floor Landing    Built-in cupboard housing wall mounted central heating boiler and slatted shelving. Double glazed window to the side aspect and doors to all principal rooms.

Bedroom One 10'8" (3.24m) x 10'1" (3.08m) narrowing to 9'1" (2.78m). Radiator and double glazed window to the front aspect. Door into ensuite shower room.

Ensuite Shower Room    Fitted with a three-piece suite comprising shower cubicle with mains shower, low-level W.C. and pedestal wash hand basin. Extensive tiling, heated towel rail, extractor, light, shaving point and opaque double glazed window to the front aspect.

Bedroom Two 12'4" (3.76m) x 8'6" (2.60m) including wardrobes. Fitted with a mirror fronted triple wardrobe, radiator and double glazed window to the rear aspect.

Bedroom Three 9'5" x 6'6" (2.87m x 1.98m). Radiator and double glazed window to the rear aspect.

Bedroom Four 9'5" x 6'7" (2.87m x 2m). Radiator and double glazed window to the rear aspect.

Bathroom    Fitted with a three-piece suite comprising panelled bath with shower attachment and screen, pedestal wash hand basin and low level W.C. Heated towel rail, light, shaving point, extractor and opaque double glazed window to the front aspect.

Front    The front of the property is primarily laid to a brick paved driveway providing off street parking whilst giving access to the garage and main entrance door. The front garden is laid to lawn. with mature tree and flower border. A shared pathway leads along the side of the property with a wooden gate giving access in to the rear garden.

Rear Garden    The beautifully landscaped rear garden is a spacious level plot made up of a large paved patio with wooden Pergola whilst continuing along the rear of the garage with personal door into the garage. A large lawn makes up the majority of the garden with paved stepping stones leading to a wooden shed with light and power with a selection of flower borders. A paved pathway leads to a greenhouse. Outside tap, security lighting and a selection mature flower borders.

Garage 16'9" x 8'6" (5.1m x 2.6m). Electric remote controlled roll-up door, light, power and personal door out to the rear garden.

Property Information    Services
Mains gas, water, drainage and electric.

Broadband and mobile coverage:
Superfast Broadband is available in this area and mobile signal should be available from all four major providers outdoors and three major providers inside although limited. Information supplied by ofcom.org.uk

Property Ref: PFE230074

Share:

Similar Properties

Wambrook Place, Chard, Somerset, TA20

3 Bedroom Detached House | £365,000

A extremely well presented three bedroom detached modern home with garage, gardens and parking situated within the popul...

Dening Close, Chard, Somerset, TA20

3 Bedroom Detached House | £365,000

Tucked away within the popular residential cul-de-sac of Dening Close, this beautifully presented three-bedroom detached...

Broadoak, Horton, Ilminster, Somerset, TA19

3 Bedroom Detached House | £357,500

Charming Three-Bedroom Detached Home in Heart of the Village ? Garage, Gardens & ConservatoryNestled in a quiet and well...

Cook Avenue, Chard, Somerset, TA20

4 Bedroom Detached House | £375,000

A beautifully presented four bedroom detached property with good size garden situated on the popular Lordleaze developme...

Hanning Road, Horton, Somerset, TA19

3 Bedroom Detached House | £375,000

Coming to the market for the very first time, this much-loved three bedroom village home has been carefully maintained b...

Church Street, Winsham, Somerset, TA20

3 Bedroom Terraced House | £380,000

Set in a peaceful village location, this delightful Grade II listed property offers a rare opportunity to own a home in...

Paul Fenton Estate Agents (Chard)

34 Fore Street, Chard, Somerset, TA20 1PT

01460 68222

How much is your home worth?

Use our short form to request a valuation of your property.

Request a Valuation

Mortgage Calculator

Amount Borrowed: £
Total Amount Repayable: £
Total Monthly Payment: £
©2026 The Guild of Property Professionals. All rights reserved. Terms and Conditions | Privacy Policy | Cookie Policy | Complaints Policy | Members Login
The Guild of Property Professionals Trading Address: 121 Park Lane, London W1K 7AG. GPEA Limited. Registered in England & Wales.  Company No: 02819824.  Registered Office Address: 2 St. Stephen's Court, St. Stephen's Road, Bournemouth, Dorset, England, BH2 6LA.  VAT Registration No: 576 8795 61
Book a Property Valuation Update Cookies Preferences