Ash Mill, South Molton

Guide Price
£650,000

4 Bedroom Semi-Detached House for sale in South Molton

2 4 2
  • Deceptively spacious 4/5 bedroom home in a rural yet accessible location near Ash Mill
  • Generous living accommodation including a 28ft living room
  • conservatory
  • and dual-aspect dining room
  • Well-fitted kitchen with central island
  • Rayburn
  • and double oven
  • plus two staircases to upper floors
  • Master suite with dressing area
  • walk-in wardrobe

Deceptively spacious 4/5 bedroom home in a rural yet accessible location near Ash Mill
Generous living accommodation including a 28ft living room, conservatory, and dual-aspect dining room
Well-fitted kitchen with central island, Rayburn, and double oven, plus two staircases to upper floors
Master suite with dressing area, walk-in wardrobe, Juliet balcony, and potential annexe layout
Versatile attic room and large landing currently used as a home office
Water harvesting system off large shed in paddock with 3000l underground storage tank with water pump and outside tap.
Approx. 1.5-acre paddock opposite the property with stables, orangery, workshop, and swim spa
Ample driveway parking and easy access to South Molton and the A361 link road

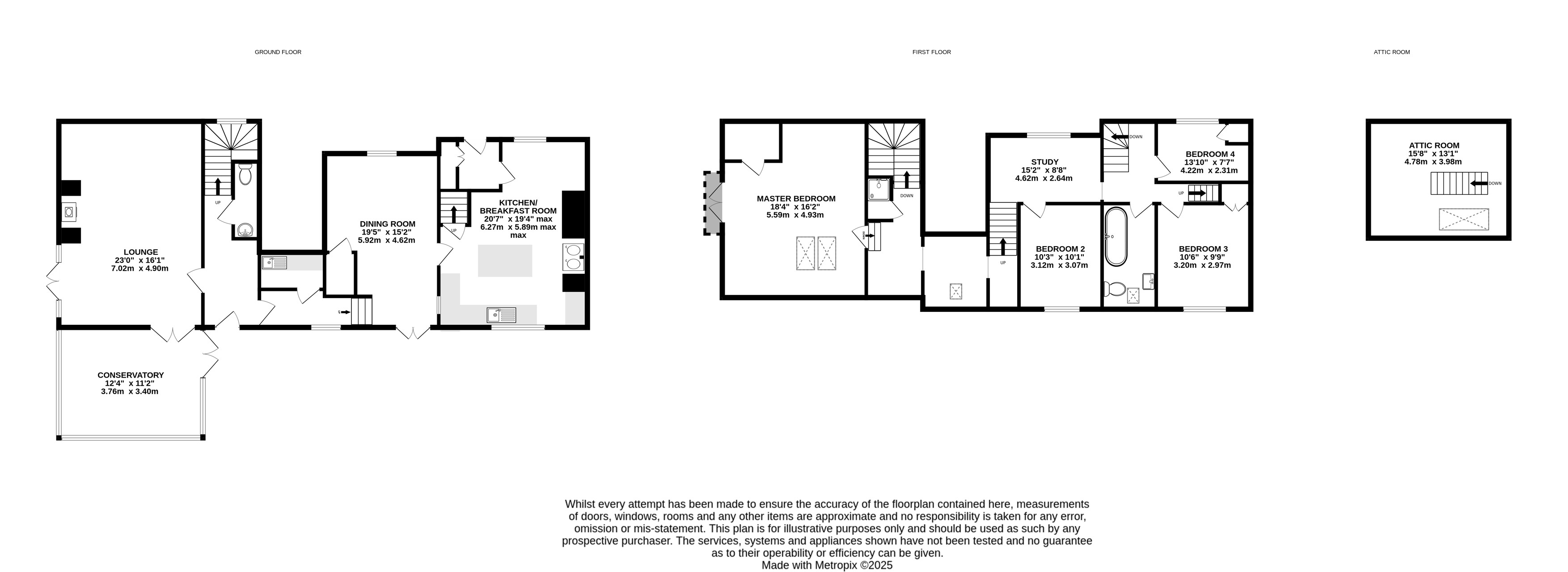
Middle Port Cottage is a deceptively spacious 4/5 bedroom property positioned in a rural yet accessible location on the outskirts of the North Devon village of Ash Mill, four miles from the market town of South Molton and within close reach of the A361 link road. The property benefits from generous accommodation, gardens, and a paddock extending to approximately 1.5 acres with stables, an orchard and a workshop.

A spacious driveway welcomes you into the property with ample parking for multiple vehicles. The front door leads into the inner hallway with stairs rising to the first floor and access to a ground floor cloakroom. To the left, you enter into the exceptionally spacious living room which measures an impressive 28ft and features a fireplace with woodburning stove. From the living room, a conservatory extends out and overlooks the lovely rear garden.

The inner hallway also gives access to a large storage room currently serving as a utility area, with plumbing and space for white goods. Steps lead up to the dining area, a bright and airy dual-aspect room which flows seamlessly into the kitchen. The kitchen is bright, spacious and well-appointed with a central island, Rayburn, bread oven, double oven, and plenty of space for an informal dining area. A door from the kitchen leads through to the front porch, where the boiler is housed and there is additional space for coats and shoes.

A second staircase from the kitchen rises to the first floor where there are three good-sized bedrooms, two of which are doubles and one a generous single. A large landing currently serves as a home office area. A further set of stairs leads to the attic room which offers excellent storage or could be adapted to suit a buyer’s requirements.

The family bathroom is well presented with a bath and shower over, WC, wash hand basin, wall tiling and a Velux window providing natural light. An extended hallway leads through to the master suite which begins with a dressing area in the hallway, a separate shower room, and steps leading up to the master bedroom itself. The bedroom is particularly spacious, with ample room for large furniture, a walk-in wardrobe with eaves storage extending behind the bed, and a Juliet balcony. From the hallway outside the master bedroom, a second staircase leads back down to the ground floor hallway. This side of the house offers great flexibility and could easily be adapted to create a self-contained annexe if required.

Outside, Middle Port Cottage continues to impress with a spacious rear garden featuring a patio area, established flower beds and a lawn bordered by mature hedges and trees, offering privacy and a peaceful setting with a stream that runs along the property. The large driveway to the front provides parking for multiple vehicles.

Directly opposite the cottage is one of the standout features of the property — the paddock and workshops. The paddock extends to approximately 1.5 acres and benefits from separate road access via a five-bar gate. This area includes a hardstanding with a large log store, stables with an adjoining orangery, and a detached workshop built in 2017 with double barn doors, power, and lighting, please note that a mezzanine floor could be added to this shed if required. Behind the workshop is a swim spa, which the current owners have advised they are happy to include in the sale. The paddock is ideal as a pony paddock or could be adapted to suit a variety of needs. Please note there is a public footpath crossing a small section at the bottom of the paddock. This area can be fenced off if required to secure the boundaries.

Overall, Middle Port Cottage is an exceptional property offering space, versatility, and the perfect blend of rural charm with accessible living. A unique and rare offering to the market, viewing is highly recommended.

Services    Private drainage, LPG fired central heating, Private water via a borehole.

Solar Panels    The property benefits from solar panels of the roof of the property and the stables which are owned by the property. The solar panels are on two seperate feed in tariffs, one for the house and one on the shed in the yard.

Council Tax    Please note the council tax is currently a 'D' however the property has been extended during it's ownership and may be subject to change.

Tenure    Freehold

NB:    The septic tank has not been surveyed to confirm if it is compliant with modern regulations.

Agents Notes:    The property and land are currently on two seperate titles.

From our office head East on the B3227 staying on this road passing through Bish Mill, when you reach the A361 take the 3rd exit on the roundabout, signposted M5. After approximately 1.25 miles take the left hand turning signposted B3227. At the next roundabout take the first exit. After approximately 3/4 of a mile turn right. At Port Cross turn left. The property will be found after a short drive on your right hand side.

What3words: ///commutes.venturing.tissue

Important Information

  • This is a Freehold property.

Property Ref: 55885_SOU220207

Share:

Similar Properties

Chittlehamholt, Umberleigh, Devon

4 Bedroom Detached Bungalow | £650,000

Standing on a large level site in the very heart of this quiet and very popular village a highly individual and exceptio...

Brayford, Barnstaple, Devon

4 Bedroom Detached House | Guide Price £600,000

Broomhill House is an immaculately presented four bedroom detached property, offering generous and versatile accommodati...

Wembworthy, Chulmleigh, Devon

5 Bedroom Detached House | Guide Price £600,000

A handsome detached house offering scope for updating, set within the catchment area for Chulmleigh Academy, offering sp...

Middle Upcott, Stowford

4 Bedroom House | £700,000

Experience the epitome of country living on the outskirts of Chittlehampton! This sensational four bedroom barn conversi...

Gunswell Lane, South Molton, Devon

4 Bedroom Detached House | £700,000

Rosemullion is a remarkable detached property built in the 1950s, located in the highly sought-after area of Gunswell La...

East Street, North Molton, South Molton

4 Bedroom Detached House | £700,000

For the first time in its history, Moult House is being offered to the open market. This unique, individually designed d...

Webbers South Molton (South Molton)

South Molton, Devon, EX36 3AQ

01769 573181

How much is your home worth?

Use our short form to request a valuation of your property.

Request a Valuation

Mortgage Calculator

Amount Borrowed: £
Total Amount Repayable: £
Total Monthly Payment: £
©2026 The Guild of Property Professionals. All rights reserved. Terms and Conditions | Privacy Policy | Cookie Policy | Complaints Policy | Members Login
The Guild of Property Professionals Trading Address: 121 Park Lane, London W1K 7AG. GPEA Limited. Registered in England & Wales.  Company No: 02819824.  Registered Office Address: 2 St. Stephen's Court, St. Stephen's Road, Bournemouth, Dorset, England, BH2 6LA.  VAT Registration No: 576 8795 61
Book a Property Valuation Update Cookies Preferences