Bridge Road, Southampton, SO19 7GP

Guide Price
£280,000

3 Bedroom Block of Apartments for sale in Southampton

3 3 3
  • Guide Price £280,000 - £300,000
  • Ability to buy equity in the property
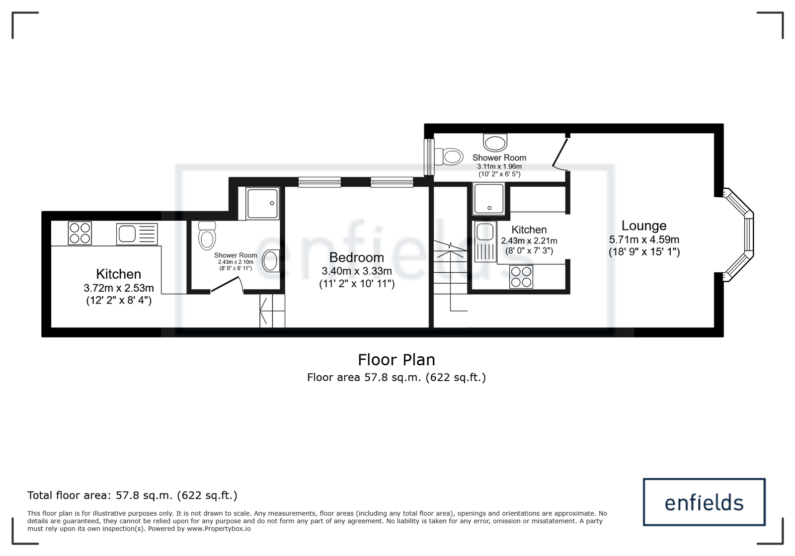
  • Investment opportunity: block of three self-contained studio flats
  • Ground-floor and upper-floor units
  • Modern interiors
  • Excellent transport links
  • Close to local shops, parks, and amenities
  • Ideal for buy-to-let investors
  • Equity purchase option available – ask for details in our Welcome Pack
  • Fully refurbished in 2021

Guide Price £280,000 - £300,000


Investment Opportunity


Enfields are pleased to present this fantastic investment opportunity. A block of three self-contained studio flats located in a sought-after area of Southampton. Whether you're a first-time investor or expanding your portfolio, this property offers immediate rental potential and flexibility.


The property comprises two studios on the ground floor and one studio on the first floor, each with a well-planned layout, modern interiors, and excellent natural light. Conveniently positioned for access to local amenities and transport links, the property is ideal for professional tenants. 


The entire property was fully gutted and refurbished in 2021, with all works carried out in line with current rental legislation and safety standards, ensuring full compliance and minimal maintenance for years to come.


A unique feature of this opportunity is the ability to buy equity in the property. For more information and full details, please request our Welcome Pack.

Important Information

  • This Council Tax band for this property is: A

Property Ref: 280_772584

Share:

Similar Properties

Grove Road, Southampton, SO15 3GH

3 Bedroom Terraced House | Guide Price £275,000

A spacious three-bedroom terraced house in Shirley offering two reception rooms, a private garden, and excellent local a...

The Wicket, Hythe, Southampton, SO45 5AU

2 Bedroom Terraced House | Guide Price £270,000

Enfields are pleased to bring to the market this two double bedroom terraced house situated in a sought after location a...

St. Winifreds Road, Southampton, SO16 6HP

3 Bedroom Terraced House | Guide Price £270,000

A three-bedroom terraced house in Shirley, tucked away in a quiet cul-de-sac, offered with no forward chain and requirin...

Harcourt Road, Southampton, SO18 1GP

2 Bedroom Terraced House | Guide Price £300,000

Brook Cottage is a stylish, modern two-bedroom terraced home offering spacious open-plan living and two en-suite bedroom...

Howards Grove, Southampton, SO15 5PU

3 Bedroom End of Terrace House | Guide Price £300,000

Guide Price: £300,000 A spacious and well-presented three-bedroom end-of-terrace home, offering generous living areas, a...

Orchard Close, Fawley, Southampton, SO45 1EZ

3 Bedroom Semi-Detached House | Guide Price £300,000

GUIDE PRICE £300,000-£325,000 NO FORWARD CHAIN A spacious three-bedroom semi-detached home in a quiet Fawley cul-de-sac...

Enfields Hythe (Hythe)

3 Marsh Parade, Hythe, Hampshire, SO45 6AN

02380 849210

How much is your home worth?

Use our short form to request a valuation of your property.

Request a Valuation

Mortgage Calculator

Amount Borrowed: £
Total Amount Repayable: £
Total Monthly Payment: £
©2026 The Guild of Property Professionals. All rights reserved. Terms and Conditions | Privacy Policy | Cookie Policy | Complaints Policy | Members Login
The Guild of Property Professionals Trading Address: 121 Park Lane, London W1K 7AG. GPEA Limited. Registered in England & Wales.  Company No: 02819824.  Registered Office Address: 2 St. Stephen's Court, St. Stephen's Road, Bournemouth, Dorset, England, BH2 6LA.  VAT Registration No: 576 8795 61
Book a Property Valuation Update Cookies Preferences