Bridge Road, Southampton, SO19 7GP

Guide Price
£400,000

3 Bedroom Block of Apartments for sale in Southampton

3 3 3
  • Sold as freehold
  • Investment opportunity: block of three self-contained studio flats
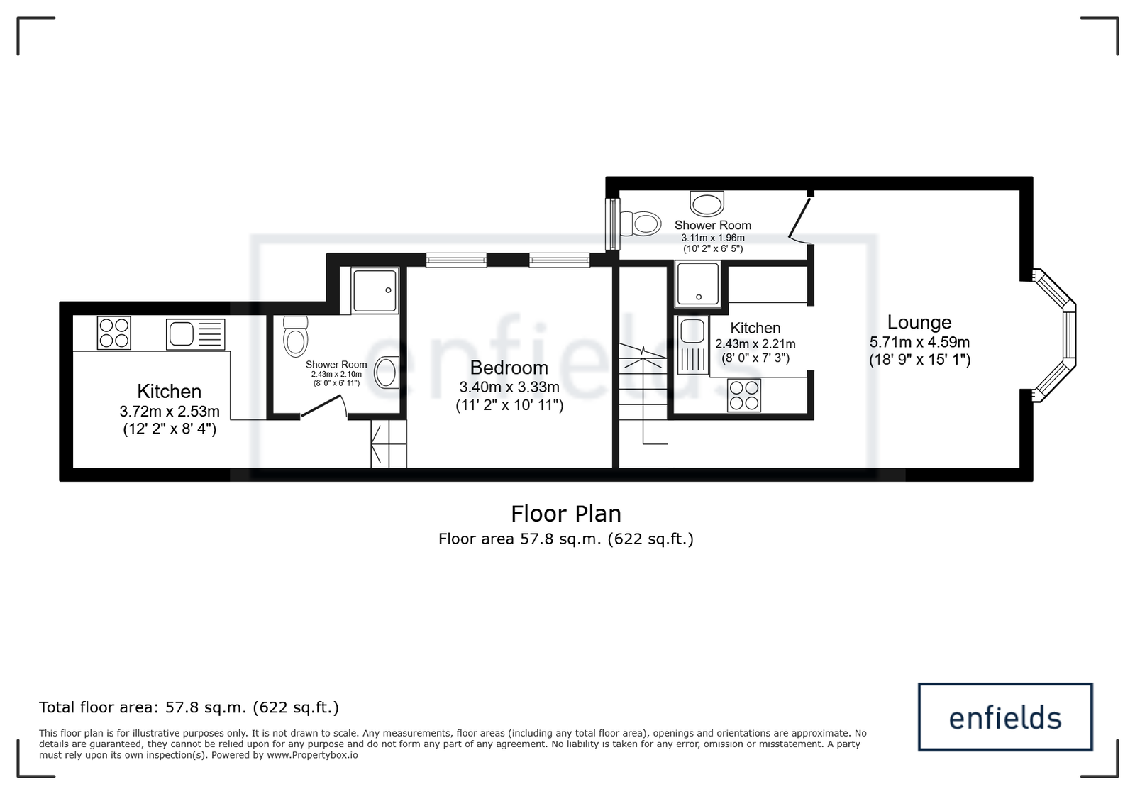
  • Ground-floor and upper-floor units
  • Commercial unit
  • Refurbished in 2021
  • Modern interiors
  • Excellent transport links
  • Equity purchase option available – ask for details in our Welcome Pack
  • Close to local shops, parks, and amenities
  • Ideal for buy-to-let investors

Guide Price: £400,000.


Investment Opportunity



Enfields are pleased to present this fantastic freehold investment opportunity, comprising a commercial unit along with three self-contained studio flats in a sought-after area of Southampton. Whether you're a first-time investor or looking to expand your portfolio, this property offers immediate rental income, long-term flexibility, and strong overall yield potential.


The residential element includes two studio flats on the ground floor and one studio on the first floor, each benefiting from a well-planned layout, modern interiors, and excellent natural light. Positioned conveniently close to local amenities and transport links, the property is highly appealing to professional tenants.


The entire building was fully gutted and refurbished in 2021, with all works carried out in line with current rental legislation and safety standards. This ensures full compliance and significantly reduces ongoing maintenance requirements for years to come.


A further advantage of this opportunity is the inclusion of the ground-floor commercial unit, providing an additional income stream and strengthening the overall investment profile of the property.


Uniquely, buyers also have the option to purchase equity in the property. For more information and full details, please request our Welcome Pack.

Important Information

  • This is a Freehold property.

Property Ref: 283_1261789

Share:

Similar Properties

Hillview Road, Hythe, SO45

4 Bedroom Detached House | Guide Price £400,000

Being Sold via Secure Sale online bidding. Terms & Conditions apply. Starting Bid £400,000 Enfields are pleased to offer...

Coates Road, Southampton, SO19 0HN

4 Bedroom Bungalow | Guide Price £400,000

A spacious and immaculate four-bedroom chalet bungalow set on a quiet road in Southampton, offering versatile living acr...

Woodlands Close, Southampton, SO31

3 Bedroom Semi-Detached House | £395,000

3-bedroom semi-detached house in Sarisbury Green, featuring a lounge, spacious kitchen/diner, downstairs cloakroom, and...

Bridge Road, Southampton, SO19 7GQ

4 Bedroom Semi-Detached House | Guide Price £410,000

Guide Price: £410,000 A beautifully refurbished four double-bedrooms, two-bathroom semi-detached home offering spacious...

Solent Drive, Hythe, SO45

3 Bedroom Bungalow | Guide Price £425,000

Enfields are pleased to bring to the market this three bedroom detached bungalow with private rear garden offering stunn...

Redhill Way, Southampton, SO16 7NA

3 Bedroom Detached House | Offers Over £425,000

A detached two/three bedroom home in a quiet Bassett cul-de-sac, offering seclusion, generous parking, and a well-kept g...

Enfields - Southampton Sales (Southampton)

Ocean Way, Southampton, Hampshire, SO15 2AE

02380 828082

How much is your home worth?

Use our short form to request a valuation of your property.

Request a Valuation

Mortgage Calculator

Amount Borrowed: £
Total Amount Repayable: £
Total Monthly Payment: £
©2026 The Guild of Property Professionals. All rights reserved. Terms and Conditions | Privacy Policy | Cookie Policy | Complaints Policy | Members Login
The Guild of Property Professionals Trading Address: 121 Park Lane, London W1K 7AG. GPEA Limited. Registered in England & Wales.  Company No: 02819824.  Registered Office Address: 2 St. Stephen's Court, St. Stephen's Road, Bournemouth, Dorset, England, BH2 6LA.  VAT Registration No: 576 8795 61
Book a Property Valuation Update Cookies Preferences